Muirfield, Luton, Bedfordshire, LU2
By Giggs & Bell
£ 290,000
Reviews
3 out of 5 stars
Giggs & Bell says ..
This modern two bedroom mid terrace property situated in the highly popular Bushmead area…
Property Oracle says ..
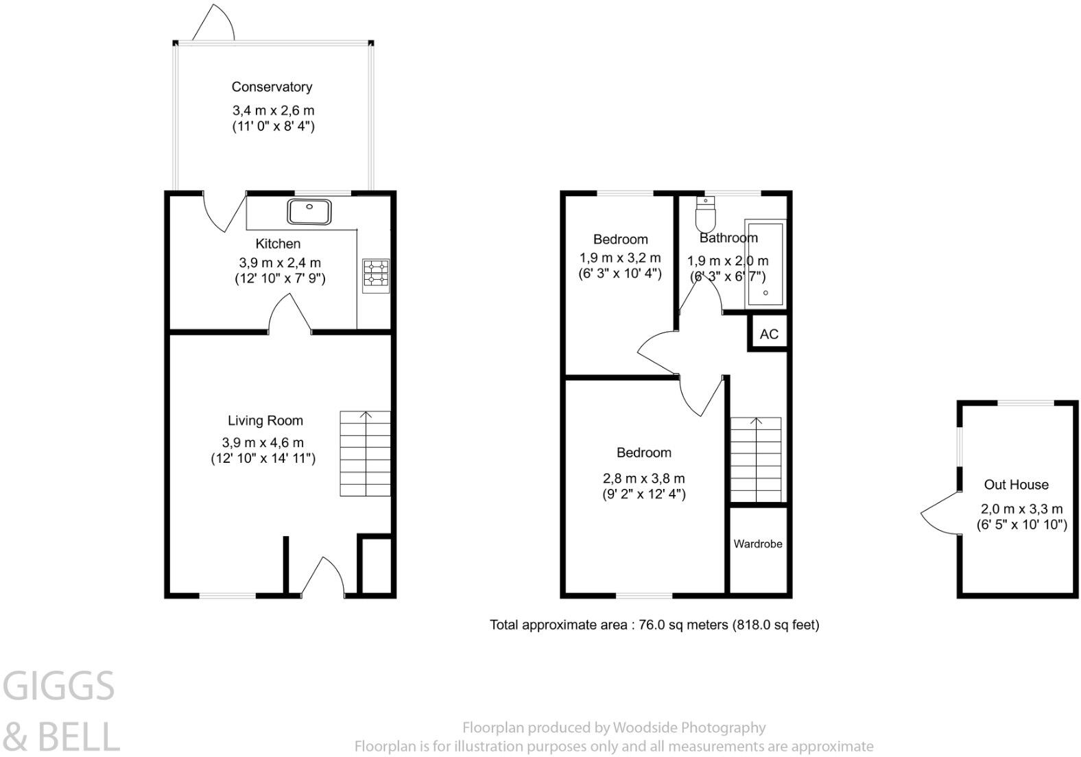
The property is a 2 bedroom, 1 bathroom terraced house located in Luton, Bedfordshire. It is listed at £290,000 and has a plot size of 818 sqft. The property appears to be in good condition, with a modern kitchen and bathroom. There is a small garden and a conservatory. The average house price in the area is £454,920, significantly higher than the listed price of this property. However, the average size of properties in the area is 1229 sqft, considerably larger than this property at 205.94 sqft. The average price per sqft in the area is £370. This property is smaller than average and therefore the price per sqft is likely higher. Considering the smaller size and lower price compared to the area average, the property may represent good value for money, especially considering its apparent good condition and inclusion of a conservatory and garden. The location is close to several schools, including Bushmead Primary School (Good Ofsted rating) and Luton Sixth Form College (Good Ofsted rating), making it potentially attractive to families. Transport links are also relatively close, with Luton train station approximately 3km away. Based on the provided information and images, the property appears to be well-maintained and presented. There are no obvious signs of disrepair or the need for renovation. The presence of a small garden and conservatory adds to its appeal. The list price of £290,000 appears relatively low compared to the area average but is consistent with the prices of similar properties on Muirfield. The smaller size of the property compared to the area average needs to be considered when assessing value.
Therefore, we give this property 7 / 10. *Disclaimer: This is our option and does constitute a recommendation or financial advice. Do your own research. *
- Price
- 7
- Condition
- 8
- Location
- 7
- Land
- 6
- Bedrooms
- 2
- Bathrooms
- 1
- Sqft (est)
- 205.94
- Lot (est)
- 818.00
The heatmap indicates the level of crime in the area. The color of the heatmap indicates the crime severity and recency.
Metrics Year-on-Year
- Average area value
- 91,650.00 £Decreased by 73.79 %
- Est sale value
- 26,154.38 £Decreased by 63.61 %
- Average area rental value
- 1,733.00 £/moIncreased by 47.36 %
- Est letting value
- 411.88 £/moIncreased by 100.00 %
- Est rental Yield
- 22.69 %Increased by 461.63 %
- Crime Rate
- 10.00 %Unchanged by 0.00 %
Agent Activity
Giggs & Bell created the listing.
Nearby Schools
| Name | Type | Ofsted | Distance |
|---|---|---|---|
| Bushmead Primary School | Community School | Good | 0.57 KM |
| Luton Sixth Form College | Further Education | Good | 0.86 KM |
| Stopsley High School | Academy Converter | 0.99 KM | |
| Flying Start Central @Stopsley Baptist Church | Children's Centre Linked Site | 1.24 KM | |
| Stopsley Community Primary School | Community School | Good | 1.72 KM |
Images
Nearby Streets
| Name | Average Price | Average Sqft | Distance |
|---|---|---|---|
| Cromer Way | £ 0 | 0 | 0.00 KM |
| Waterhall Lane | £ 0 | 0 | 0.00 KM |
| Barnfield Avenue | £ 467,400 | 0 | 0.00 KM |
| Virginia Close | £ 450,000 | 0 | 0.00 KM |
| Woodfield Grove | £ 550,000 | 0 | 0.00 KM |
Nearby Transport
| Name | NLC | TLC | Distance |
|---|---|---|---|
| Luton | 1536 | LUT | 3.01 KM |
| Luton Airport Parkway | 3645 | LTN | 4.41 KM |
| Leagrave | 1534 | LEA | 5.29 KM |
Nearby Listings
| Address | Price | Type | Score | Distance |
|---|---|---|---|---|
| Muirfield, Bushmead, Luton, Bedfordshire, LU2 7SB | £ 285,000 | BUY | Unknown | 0.00 KM |
| Muirfield, Luton, Bedfordshire, LU2 | £ 290,000 | BUY | 7 / 10 | 0.00 KM |
| Muirfield Luton | £ 250,000 | BUY | 6 / 10 | 0.04 KM |
| Hawkfields, Luton, LU2 | £ 500,000 | BUY | Unknown | 0.05 KM |
| Muirfield, Luton | £ 285,000 | BUY | 7 / 10 | 0.08 KM |
Nearby Properties
| Address | Price | Distance |
|---|---|---|
| 6 Muirfield | £ 163,000 | 0.08 KM |
| 9 Muirfield | £ 207,000 | 0.08 KM |
| 21 Muirfield | £ 155,000 | 0.08 KM |
| 14 Muirfield | £ 260,000 | 0.08 KM |
| 16 Muirfield | £ 285,000 | 0.08 KM |