Riverside Meadow at Newport Park, Topsham Road, Topsham, Exeter, Devon, EX2
By Bruton Solutions
£ 310,000
Reviews
3 out of 5 stars
Bruton Solutions says ..
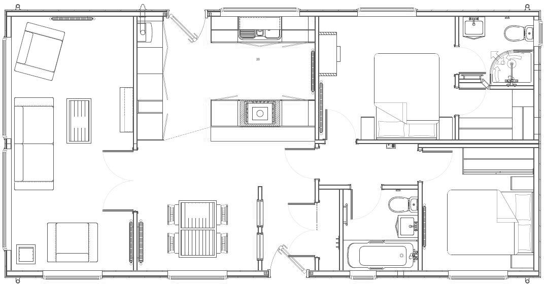
NEW 42' x 20' Prestige Sofia (new model), 2 bedrooms, en-suite, fully furnished. Exclusive residential development of just 20 homes for the over 50's alongside the River Exe. Pets welcome.
Property Oracle says ..
This listing presents a new, fully furnished two-bedroom park home located in the Riverside Meadow development in Topsham, Exeter. Topsham is a charming town situated on the River Exe, offering residents a desirable lifestyle and easy access to Exeter’s amenities and transportation links. The park home itself boasts a modern and well-appointed interior, with high-quality finishes apparent in the provided photographs. The open-plan layout combines the kitchen, living, and dining areas creating a spacious feel. The property presents a turnkey living option and is seemingly ready for immediate occupancy. However, it’s crucial to consider that it’s a park home and is subject to the regulations, fees, and community associated with such developments. The extremely small plot size is an important factor to note as it provides significantly less land than a conventional home. The asking price is comparable to other new park homes in this development, but potential buyers should compare it to properties that are not park homes for an effective valuation.
Therefore, we give this property 6 / 10. *Disclaimer: This is our option and does constitute a recommendation or financial advice. Do your own research. *
- Price
- 7
- Condition
- 9
- Location
- 7
- Land
- 3
- Bedrooms
- 2
- Bathrooms
- 2
- Sqft (est)
- 743.27
The heatmap indicates the level of crime in the area. The color of the heatmap indicates the crime severity and recency.
Metrics Year-on-Year
- Average area value
- 528,231.00 £Increased by 3.23 %
- Est sale value
- 476,436.07 £Increased by 28.71 %
- Average area rental value
- 1,833.00 £/moIncreased by 1.05 %
- Est letting value
- 1,486.54 £/moIncreased by 100.00 %
- Est rental Yield
- 4.16 %Decreased by 2.12 %
- Crime Rate
- 20.00 %Unchanged by 0.00 %
Agent Activity
Bruton Solutions created the listing.
Nearby Schools
| Name | Type | Ofsted | Distance |
|---|---|---|---|
| Trinity Church Of England Voluntary Aided Primary And Nursery School | Voluntary Aided School | 1.19 KM | |
| Countess Wear Exeter | Children's Centre | 1.23 KM | |
| Countess Wear Community School | Community School | Requires improvement | 1.34 KM |
| The Topsham School | Community School | Good | 1.55 KM |
| Infocus School | Non-maintained Special School | Special Measures | 1.81 KM |
Images
Nearby Streets
| Name | Average Price | Average Sqft | Distance |
|---|---|---|---|
| Sleepy Hollow | £ 200,000 | 0 | 0.00 KM |
| Central Avenue | £ 260,000 | 0 | 0.00 KM |
| Riverside Meadow | £ 302,500 | 0 | 0.00 KM |
| The Chase | £ 250,000 | 0 | 0.00 KM |
| Berkeley Park | £ 0 | 0 | 0.00 KM |
Nearby Transport
| Name | NLC | TLC | Distance |
|---|---|---|---|
| Newcourt | 9589 | NCO | 1.67 KM |
| Topsham | 5758 | TOP | 2.01 KM |
| Digby And Sowton | 5753 | DIG | 2.51 KM |
| Polsloe Bridge | 3422 | POL | 4.85 KM |
| Exton | 5760 | EXN | 4.94 KM |
Nearby Listings
| Address | Price | Type | Score | Distance |
|---|---|---|---|---|
| Riverside Meadow at Newport Park, Topsham Road, Topsham, Exeter, Devon, EX2 | £ 310,000 | BUY | 6 / 10 | 0.00 KM |
| Eastern Avenue, Newport Park, Exeter | £ 190,000 | BUY | 7 / 10 | 0.06 KM |
| Riverside Meadow at Newport Park, Topsham Road, Exeter, Devon, EX2 | £ 310,000 | BUY | 7 / 10 | 0.09 KM |
| Dart Avenue, Exeter, EX2 7DR | £ 530,000 | BUY | Unknown | 0.09 KM |
| Dart Avenue, Exeter, EX2 7DR | £ 410,000 | BUY | Unknown | 0.09 KM |
Nearby Properties
| Address | Price | Distance |
|---|---|---|
| 5 Dart Avenue | £ 385,000 | 0.21 KM |
| 8 Dart Avenue | £ 329,950 | 0.24 KM |
| 544 Topsham Road | £ 83,000 | 0.32 KM |
| 550 Topsham Road | £ 179,000 | 0.32 KM |
| 546 Topsham Road | £ 180,500 | 0.32 KM |