Jackson Close, Devizes, Wiltshire, SN10
JO

Jackson Close, Devizes, Wiltshire, SN10

By Jones Robinson Estate Agents

£ 475,000

Reviews

3 out of 5 stars

Jones Robinson Estate Agents says ..

**Virtual tour available** Discover the perfect blend of style, comfort, and convenience in this exceptional detached home, quietly positioned at the end of a highly desirable cul-de-sac. Thoughtfully and comprehensively renovated by the current owner, this three-bedroom home offers complete...

Property Oracle says ..

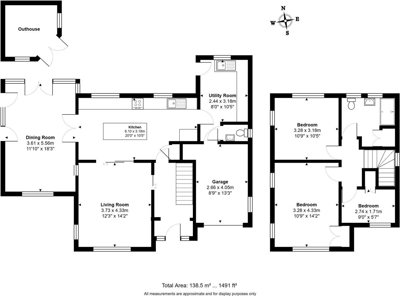
This is a detached property in Devizes, Wiltshire, listed by Jones Robinson Estate Agents. It features three bedrooms, one bathroom, and a square footage of 1,490.80. The property includes a garage and a well-maintained garden with a patio and shed. Nearby schools include Southbroom St James Academy and Nursteed Community Primary School. The property is in good condition, with a modern kitchen and bathroom. The listing price is £475,000, which is above the average for the area but potentially justified by the property’s size and features.

Therefore, we give this property 7 / 10. *Disclaimer: This is our option and does constitute a recommendation or financial advice. Do your own research. *

Price
6
Condition
8
Location
7
Land
7
Bedrooms
3
Bathrooms
1
Sqft (est)
1,490.80

The heatmap indicates the level of crime in the area. The color of the heatmap indicates the crime severity and recency.

Metrics Year-on-Year

Average area value
378,288.00 £
Increased by 10.33 %
from 342,876.00 £
Est sale value
663,406.00 £
Increased by 106.02 %
from 322,012.80 £
Average area rental value
929.00 £/mo
Increased by 2.20 %
from 909.00 £/mo
Est letting value
1,490.80 £/mo
from 0.00 £/mo
Est rental Yield
2.95 %
Decreased by 7.23 %
from 3.18 %
Crime Rate
7.00 %
Unchanged by 0.00 %
from 7.00 %

Agent Activity

  • Jones Robinson Estate Agents created the listing.

Nearby Schools

NameTypeOfstedDistance
Southbroom St James AcademyAcademy Sponsor LedGood0.21 KM
Devizes SchoolAcademy ConverterGood0.87 KM
Nursteed Community Primary SchoolCommunity SchoolGood0.93 KM
Devizes South Community Children'S CentreChildren's Centre1.03 KM
Southbroom Infants' SchoolAcademy ConverterGood1.07 KM

Images

Picture No. 33 Picture No. 09 Picture No. 17 Picture No. 12 Picture No. 07 Picture No. 10 Picture No. 06 Picture No. 02 Picture No. 41 Picture No. 42 Picture No. 43 Picture No. 14 Picture No. 13 Picture No. 19 Picture No. 21 Picture No. 16 Picture No. 18 Picture No. 36 Picture No. 40 Picture No. 38 Picture No. 37 Picture No. 20 Picture No. 22 Picture No. 32 Picture No. 30 Picture No. 24

Nearby Streets

NameAverage PriceAverage SqftDistance
Gables Close £ 000.00 KM
Kingsley Road £ 237,50000.00 KM
Marshall Road £ 000.00 KM
Freeman Road £ 250,00000.00 KM
London Road £ 000.00 KM

Nearby Listings

AddressPriceTypeScoreDistance
Jackson Close, Devizes, Wiltshire, SN10 £ 475,000BUY7 / 100.00 KM
Jackson Close, Devizes, Wiltshire, SN10 3AP £ 490,000BUYUnknown0.00 KM
Longcroft Road, Devizes £ 395,000BUY7 / 100.05 KM
Devizes, Wiltshire, SN10 3AY £ 375,000BUY6 / 100.07 KM
Nursteed Park, Devizes, SN10 £ 300,000BUY7 / 100.14 KM

Nearby Properties

AddressPriceDistance
25 Eastleigh Road £ 169,9600.12 KM
23 Eastleigh Road £ 170,0000.12 KM
4 Longcroft Crescent £ 340,5000.16 KM
7 Longcroft Crescent £ 227,5000.16 KM
11 Longcroft Crescent £ 356,5000.16 KM