TH
CHULMLEIGH
By The Keenor Estate Agent
£ 425,000
The Keenor Estate Agent says ..
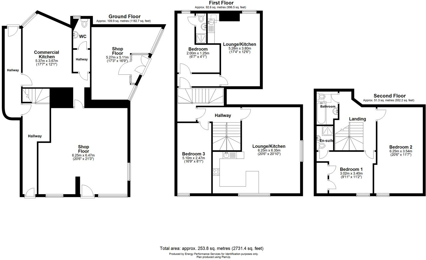
A FREEHOLD MIXED COMMERCIAL/RESIDENTIAL BUILDING currently run as a successful Delicatessen/Cafe situated in the centre of Chulmleigh including a SELF CONTAINED THREE BEDROOM MAISONETTE and a further SELF CONTAINED ONE BEDROOM FLAT, plus a FURTHER SHOP suitable for expansion, with rear COURTYARD.
- Bedrooms
- 4
- Bathrooms
- 2
The heatmap indicates the level of crime in the area. The color of the heatmap indicates the crime severity and recency.
Metrics Year-on-Year
- Average area value
- 661,000.00 £Increased by 29.29 %
- Average area rental value
- 2,410.00 £/moIncreased by 120.90 %
- Est rental Yield
- 4.38 %Increased by 71.09 %
- Crime Rate
- 141.00 %Unchanged by 0.00 %
from 511,241.00 £
from 1,091.00 £/mo
from 2.56 %
from 141.00 %
Agent Activity
The Keenor Estate Agent created the listing.
Nearby Schools
| Name | Type | Ofsted | Distance |
|---|---|---|---|
| Chulmleigh Primary School | Academy Converter | Requires improvement | 0.50 KM |
| Chulmleigh Community College | Academy Converter | Good | 0.51 KM |
| Kings Nympton Community Primary School | Foundation School | Good | 5.12 KM |
| Lapford Community Primary School | Academy Converter | Good | 9.39 KM |
Images
Nearby Streets
| Name | Average Price | Average Sqft | Distance |
|---|---|---|---|
| Crossways | £ 0 | 0 | 0.00 KM |
Nearby Transport
| Name | NLC | TLC | Distance |
|---|---|---|---|
| Eggesford | 5822 | EGG | 2.82 KM |
| Kings Nympton | 5823 | KGN | 4.85 KM |
| Lapford | 5824 | LAP | 8.88 KM |
Nearby Listings
| Address | Price | Type | Score | Distance |
|---|---|---|---|---|
| Chulmleigh | £ 225,000 | BUY | 5 / 10 | 0.00 KM |
| CHULMLEIGH | £ 425,000 | BUY | Unknown | 0.00 KM |
| CHULMLEIGH | £ 150,000 | BUY | 5 / 10 | 0.03 KM |
| CHULMLEIGH | £ 315,000 | BUY | 5 / 10 | 0.05 KM |
| CHULMLEIGH | £ 100,000 | BUY | Unknown | 0.06 KM |
Nearby Properties
| Address | Price | Distance |
|---|---|---|
| Rainbow Cottage | £ 93,000 | 0.01 KM |
| Tossels House | £ 247,500 | 0.01 KM |
| The Kings Arms | £ 173,000 | 0.01 KM |
| Bonds Corner House | £ 170,000 | 0.01 KM |
| Kingscot | £ 202,000 | 0.01 KM |