Yopa says ..
Extensively renovated 3/4 bedroom semi-detached home in Nantyglo, offering excellent transport links and close proximity to local schools and amenities. Ideal for families or commuters.
Property Oracle says ..
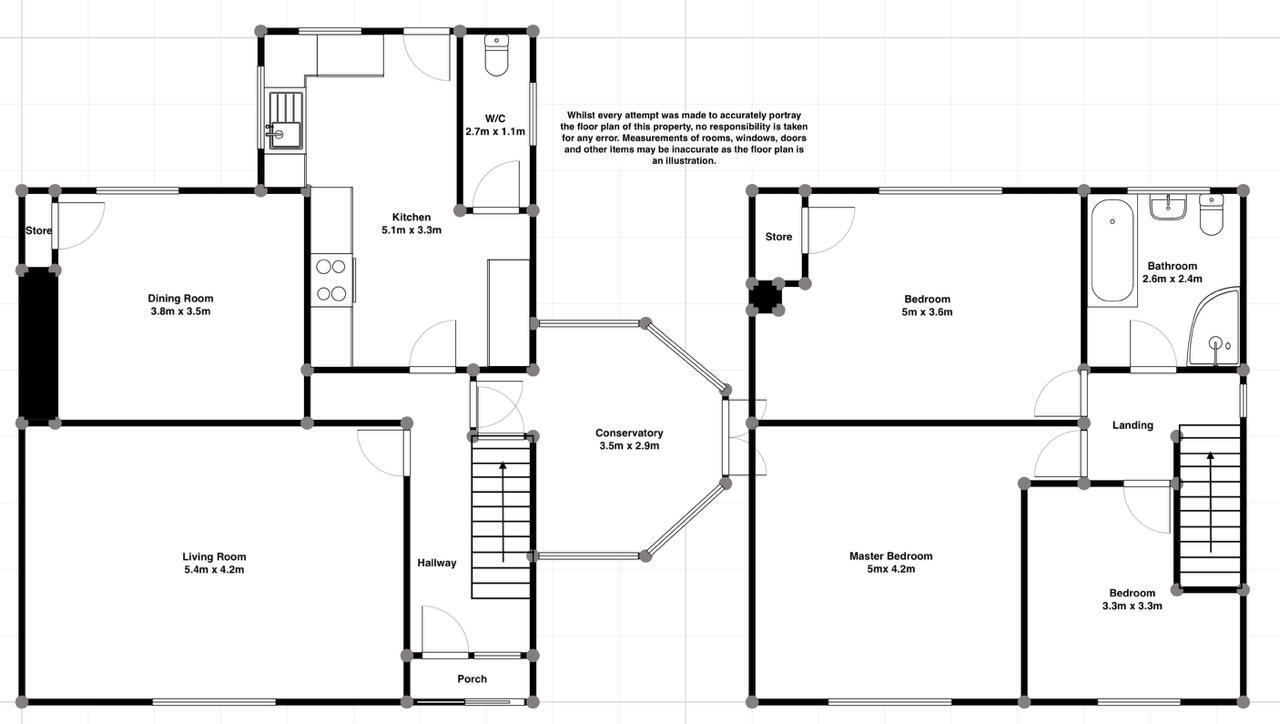
This is a semi-detached property located on Queen Street, Nantyglo, Ebbw Vale. The house has three bedrooms and two bathrooms. The interior has been modernised, particularly the kitchen. The property benefits from a garden with a greenhouse and a garage. The location is residential, with schools nearby, but not particularly close to major amenities. The listing price is £230,000.
Therefore, we give this property 6 / 10. *Disclaimer: This is our option and does constitute a recommendation or financial advice. Do your own research. *
- Price
- 7
- Condition
- 7
- Location
- 6
- Land
- 7
- Bedrooms
- 3
- Bathrooms
- 2
- Sqft (est)
- 391.81
The heatmap indicates the level of crime in the area. The color of the heatmap indicates the crime severity and recency.
Metrics Year-on-Year
- Average area value
- 300,000.00 £Decreased by 22.28 %
- Est sale value
- 165,735.63 £Decreased by 3.86 %
- Average area rental value
- 1,073.00 £/moDecreased by 13.47 %
- Est letting value
- 391.81 £/moUnchanged by 0.00 %
- Est rental Yield
- 4.29 %Increased by 11.43 %
- Crime Rate
- 10.00 %Unchanged by 0.00 %
Agent Activity
Yopa created the listing.
Nearby Schools
| Name | Type | Ofsted | Distance |
|---|---|---|---|
| Coed -Y- Garn Primary School | Welsh Establishment | 0.20 KM | |
| Ystruth Primary | Welsh Establishment | 1.72 KM | |
| Blaen-Y-Cwm C.P. School | Welsh Establishment | 2.08 KM | |
| St Illtyd'S | Welsh Establishment | 2.12 KM | |
| St Mary'S Roman Catholic - Brynmawr | Welsh Establishment | 2.27 KM |
Images
Nearby Streets
| Name | Average Price | Average Sqft | Distance |
|---|---|---|---|
| Coalbrook Valecourt | £ 159,995 | 0 | 0.00 KM |
| Attlee Road | £ 0 | 0 | 0.00 KM |
| Highfield Cottages | £ 0 | 0 | 0.00 KM |
| Attlee Road | £ 100,000 | 0 | 0.00 KM |
| Caddick's Row | £ 0 | 0 | 0.00 KM |
Nearby Transport
| Name | NLC | TLC | Distance |
|---|---|---|---|
| Ebbw Vale Parkway | 9915 | EBV | 4.09 KM |
| Ebbw Vale Town | 3628 | EBB | 4.10 KM |
| Llanhilleth | 9916 | LTH | 9.24 KM |
Nearby Listings
| Address | Price | Type | Score | Distance |
|---|---|---|---|---|
| Queen Street, Ebbw Vale, NP23 | £ 230,000 | BUY | 6 / 10 | 0.00 KM |
| Queen Street, Nantyglo | £ 160,000 | BUY | 6 / 10 | 0.03 KM |
| Queen Street, Nantyglo, Ebbw Vale | £ 220,000 | BUY | 6 / 10 | 0.07 KM |
| Bethel Place, Ebbw Vale | £ 270,000 | BUY | 7 / 10 | 0.09 KM |
| Queen Street, Nantyglo | £ 110,000 | BUY | Unknown | 0.19 KM |
Nearby Properties
| Address | Price | Distance |
|---|---|---|
| 122a Queen Street | £ 100,000 | 0.01 KM |
| 118 Queen Street | £ 68,000 | 0.01 KM |
| 1 Queen Street | £ 32,000 | 0.05 KM |
| 116 Queen Street | £ 114,950 | 0.05 KM |
| 141 Queen Street | £ 50,000 | 0.05 KM |