Bromley Avenue, Monkseaton, Whiltey Bay, NE25 8TW
By J.G Sawyers & Sons
£ 490,000
Reviews
3 out of 5 stars
J.G Sawyers & Sons says ..
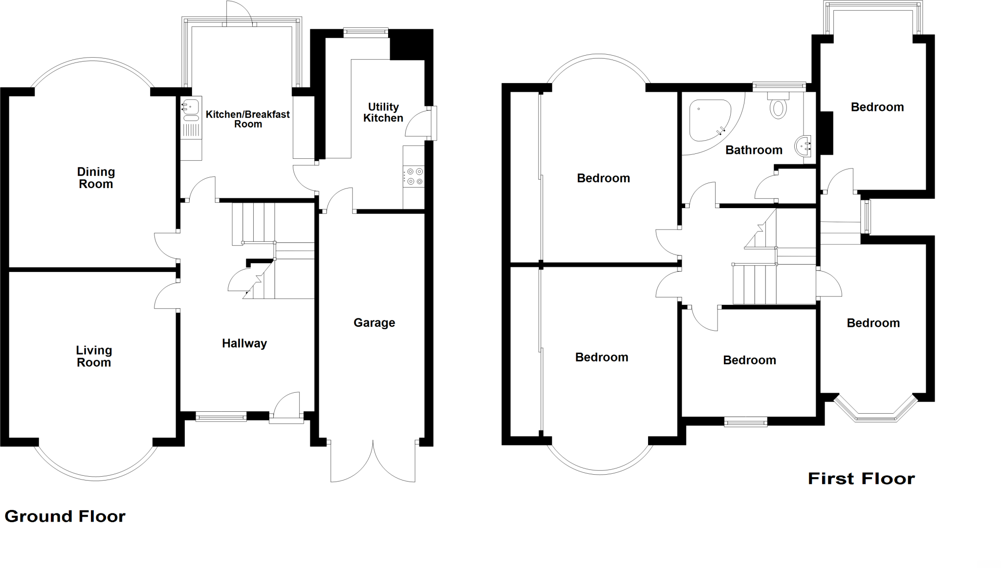
SUPERBLY SITUATED AND MOST ATTRACTIVE 5 BEDROOMED DETACHED HOUSE OF CHARACTER which we understand was built in 1936 and has the advantage of a pleasant open aspect from the front overlooking Bromley field.
Property Oracle says ..
This property is a 5-bedroom detached house located in Monkseaton, Whitley Bay. The property benefits from a good-sized garden and appears to be in generally good condition, although some modernisation may be desirable. The location is convenient, with several schools within walking distance. However, the provided data does not include information on nearby transportation links, which could impact the overall location score. The list price of £490,000 is slightly below the average price for the area (£525,346), but the average price per square foot is higher than the implied price per square foot for this property. This suggests that the list price could be considered reasonable, especially considering the number of bedrooms and the presence of a garden. More information on the property size would be needed to make a more definitive conclusion on the value.
Therefore, we give this property 6 / 10. *Disclaimer: This is our option and does constitute a recommendation or financial advice. Do your own research. *
- Price
- 6
- Condition
- 7
- Location
- 7
- Land
- 7
- Bedrooms
- 5
- Bathrooms
- 1
- Sqft (est)
- 1,400.00
The heatmap indicates the level of crime in the area. The color of the heatmap indicates the crime severity and recency.
Metrics Year-on-Year
- Average area value
- 911,990.00 £Increased by 52.54 %
- Est sale value
- 669,200.00 £Decreased by 4.59 %
- Average area rental value
- 1,200.00 £/moDecreased by 18.81 %
- Est letting value
- 0.00 £/moDecreased by 100.00 %
- Est rental Yield
- 1.58 %Decreased by 46.80 %
- Crime Rate
- 1.00 %Unchanged by 0.00 %
Agent Activity
J.G Sawyers & Sons created the listing.
Nearby Schools
| Name | Type | Ofsted | Distance |
|---|---|---|---|
| Star Of The Sea Catholic Primary School, Whitley Bay | Academy Converter | 0.28 KM | |
| Appletree Gardens First School | Foundation School | Good | 0.34 KM |
| Monkseaton High School | Foundation School | Good | 0.52 KM |
| Monkseaton Middle School | Foundation School | Requires improvement | 0.55 KM |
| Woodlawn School | Foundation Special School | Good | 0.70 KM |
Images
Nearby Streets
| Name | Average Price | Average Sqft | Distance |
|---|---|---|---|
| Cresswell Close | £ 0 | 0 | 0.00 KM |
| Crawford Place | £ 0 | 0 | 0.00 KM |
| Meadow Road | £ 329,950 | 0 | 0.00 KM |
| Holmwood Avenue | £ 381,225 | 0 | 0.00 KM |
| St Georges Crescent | £ 795,000 | 0 | 0.00 KM |
Nearby Listings
| Address | Price | Type | Score | Distance |
|---|---|---|---|---|
| Bromley Avenue, Monkseaton, Whiltey Bay, NE25 8TW | £ 490,000 | BUY | 6 / 10 | 0.00 KM |
| Bromley Avenue, Monkseaton | £ 365,000 | BUY | 7 / 10 | 0.04 KM |
| Seatonville Grove, Whitley Bay, NE25 | £ 335,000 | BUY | 7 / 10 | 0.05 KM |
| Seatonville Crescent, West Monkseaton, Whitley Bay, NE25 8TQ | £ 350,000 | BUY | 7 / 10 | 0.10 KM |
| Seatonville Road, West Monkseaton | £ 400,000 | BUY | Unknown | 0.11 KM |
Nearby Properties
| Address | Price | Distance |
|---|---|---|
| 73 Bromley Avenue | £ 210,000 | 0.02 KM |
| 56 Seatonville Road | £ 240,000 | 0.09 KM |
| 44 Seatonville Road | £ 306,650 | 0.09 KM |
| 60 Seatonville Road | £ 92,500 | 0.09 KM |
| 68 Seatonville Road | £ 183,000 | 0.09 KM |