Munford Drive, Swanscombe, Kent, DA10
By Anthony Martin
£ 350,000
Reviews
3 out of 5 stars
Anthony Martin says ..
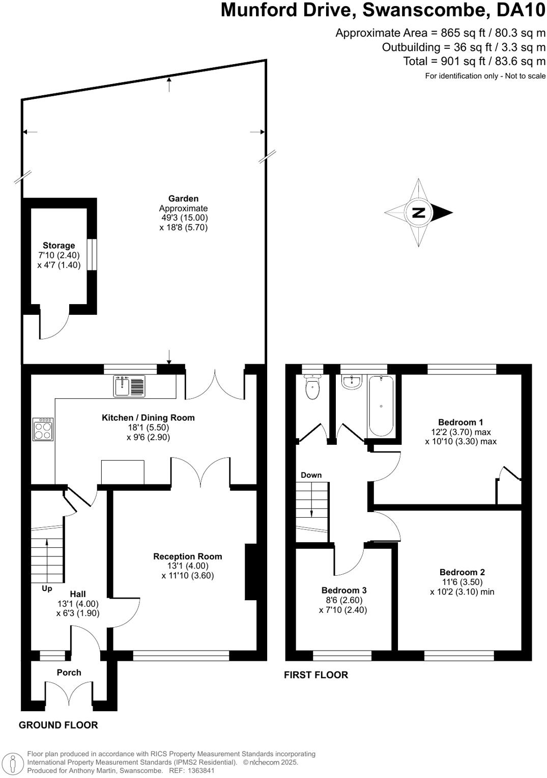
A beautifully presented three-bedroom family home in Munford Drive, Swanscombe, offering bright interiors and a large open-plan kitchen / diner, modern bathroom, and well-kept rear garden with decking and storage. Perfectly positioned for schools, transport, and local amenities, this stylish...
Property Oracle says ..
This three-bedroom terraced house on Munford Drive, Swanscombe, presents a solid opportunity for potential buyers. The property features a garden with decked and artificial lawn areas, offering a functional outdoor space. While the interior shows signs of needing renovation, the house is situated in a location with good access to local schools and transportation, making it suitable for families and commuters. The price is slightly above the local average per square foot but reflects the property’s features and location.
Therefore, we give this property 6 / 10. *Disclaimer: This is our option and does constitute a recommendation or financial advice. Do your own research. *
- Price
- 7
- Condition
- 5
- Location
- 6
- Land
- 7
- Bedrooms
- 3
- Bathrooms
- 1
- Sqft (est)
- 761.60
The heatmap indicates the level of crime in the area. The color of the heatmap indicates the crime severity and recency.
Metrics Year-on-Year
- Average area value
- 680,617.00 £Decreased by 16.07 %
- Est sale value
- 341,196.80 £Decreased by 14.18 %
- Average area rental value
- 1,914.00 £/moIncreased by 14.68 %
- Est letting value
- 761.60 £/moUnchanged by 0.00 %
- Est rental Yield
- 3.37 %Increased by 36.44 %
- Crime Rate
- 12.00 %Unchanged by 0.00 %
Agent Activity
Anthony Martin created the listing.
Nearby Schools
| Name | Type | Ofsted | Distance |
|---|---|---|---|
| Swanscombe Children'S Centre | Children's Centre | 0.23 KM | |
| Manor Community Primary School | Academy Converter | Good | 0.23 KM |
| The Ebbsfleet Academy | Academy Sponsor Led | Good | 0.56 KM |
| Cherry Orchard Primary Academy | Academy Sponsor Led | 0.65 KM | |
| The Craylands School | Community School | Good | 0.93 KM |
Images
Nearby Streets
| Name | Average Price | Average Sqft | Distance |
|---|---|---|---|
| St Peter's Close | £ 0 | 0 | 0.00 KM |
| Rectory Road | £ 0 | 0 | 0.00 KM |
| Castle Hill Road | £ 450,000 | 0 | 0.00 KM |
| Park Road | £ 0 | 0 | 0.00 KM |
| Vernon Road | £ 0 | 0 | 0.00 KM |
Nearby Transport
| Name | NLC | TLC | Distance |
|---|---|---|---|
| Swanscombe | 5156 | SWM | 0.96 KM |
| Ebbsfleet International | 5566 | EBD | 1.48 KM |
| Northfleet | 5120 | NFL | 1.92 KM |
| Greenhithe For Bluewater | 5138 | GNH | 3.22 KM |
| Grays | 7443 | GRY | 4.26 KM |
Nearby Listings
| Address | Price | Type | Score | Distance |
|---|---|---|---|---|
| Munford Drive, Swanscombe, Kent, DA10 | £ 350,000 | BUY | 6 / 10 | 0.00 KM |
| Betsham Road, Swanscombe, Kent, DA10 | £ 260,000 | BUY | 7 / 10 | 0.10 KM |
| Betsham Road, Swanscombe, Kent, DA10 | £ 325,000 | BUY | 6 / 10 | 0.10 KM |
| Betsham Road, SWANSCOMBE, Kent, DA10 | £ 550,000 | BUY | 7 / 10 | 0.11 KM |
| Keary Road, Swanscombe | £ 375,000 | BUY | 7 / 10 | 0.12 KM |
Nearby Properties
| Address | Price | Distance |
|---|---|---|
| 52 Munford Drive | £ 135,000 | 0.04 KM |
| 3 Munford Drive | £ 148,000 | 0.04 KM |
| 9 Munford Drive | £ 315,000 | 0.04 KM |
| 11 Munford Drive | £ 320,000 | 0.05 KM |
| 54 Munford Drive | £ 179,995 | 0.05 KM |