Chamberlains says ..
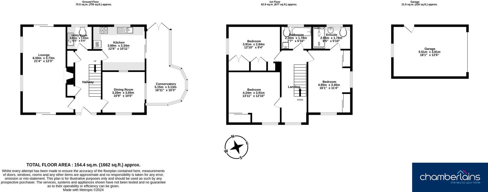
This Detached, Executive Style House is Located in the Brimley Area of Bovey Tracey. It has Three Double Bedrooms, one with En-Suite, Two Reception Rooms and Garage with Driveway Parking.
Property Oracle says ..
This property is a 3 bedroom, 2 bathroom detached house located in Bovey Tracey, Devon. The property benefits from a good size garden and is in good condition throughout. The list price of £545,000 seems reasonable considering the average price in the area is £402,158 and the average price per sqft is £206.00. However, more information on the size of nearby properties would help to further refine this analysis. The property is close to several schools, with Bovey Tracey Primary School being the closest at 1.33km. The property appears to be well maintained and presented, suggesting it would appeal to families seeking a move to a desirable area.
Therefore, we give this property 7 / 10. *Disclaimer: This is our option and does constitute a recommendation or financial advice. Do your own research. *
- Price
- 7
- Condition
- 8
- Location
- 7
- Land
- 7
- Bedrooms
- 3
- Bathrooms
- 2
- Sqft (est)
- 1,323.96
- Lot (est)
- 1,661.95
The heatmap indicates the level of crime in the area. The color of the heatmap indicates the crime severity and recency.
Metrics Year-on-Year
- Average area value
- 372,222.00 £Decreased by 5.24 %
- Est sale value
- 741,417.60 £Increased by 54.70 %
- Average area rental value
- 1,495.00 £/moIncreased by 30.11 %
- Est letting value
- 2,647.92 £/moIncreased by 100.00 %
- Est rental Yield
- 4.82 %Increased by 37.32 %
- Crime Rate
- 44.00 %Unchanged by 0.00 %
Agent Activity
Chamberlains created the listing.
Nearby Schools
| Name | Type | Ofsted | Distance |
|---|---|---|---|
| Bovey Tracey Primary School | Community School | Requires improvement | 1.33 KM |
| The Greater Horseshoe School | Other Independent Special School | Good | 3.14 KM |
| St Catherine'S Cofe Primary School | Voluntary Aided School | Good | 3.27 KM |
| Moors Edge - Heathfield & District Children'S Centre | Children's Centre | 3.27 KM | |
| Blackpool Church Of England Primary School | Academy Converter | Outstanding | 3.28 KM |
Images
Nearby Streets
| Name | Average Price | Average Sqft | Distance |
|---|---|---|---|
| Moor Lane | £ 0 | 0 | 0.00 KM |
| Kiln Road | £ 345,000 | 0 | 0.00 KM |
| Salder Green | £ 0 | 0 | 0.00 KM |
| Heathfield Close | £ 0 | 0 | 0.00 KM |
| The Conifers | £ 210,000 | 0 | 0.00 KM |
Nearby Listings
| Address | Price | Type | Score | Distance |
|---|---|---|---|---|
| Redwoods, Bovey Tracey, TQ13 | £ 545,000 | BUY | 7 / 10 | 0.00 KM |
| Pottery Road, Bovey Tracey, Newton Abbot | £ 450,000 | BUY | 6 / 10 | 0.16 KM |
| Pottery Road, Bovey Tracey | £ 429,950 | BUY | 7 / 10 | 0.18 KM |
| Pottery Road, Bovey Tracey | £ 450,000 | BUY | Unknown | 0.21 KM |
| Thorns Cross, Bovey Tracey, Newton Abbot, Devon, TQ13 | £ 1,500,000 | BUY | Unknown | 0.21 KM |
Nearby Properties
| Address | Price | Distance |
|---|---|---|
| 11 Ashburton Road | £ 235,000 | 0.01 KM |
| 17 Ashburton Road | £ 195,000 | 0.01 KM |
| 31 Ashburton Road | £ 392,000 | 0.01 KM |
| 19 Ashburton Road | £ 320,000 | 0.01 KM |
| Clovelly | £ 535,000 | 0.01 KM |