NE
Stanton Road, Stapenhill, Burton-on-Trent, DE15
By Newton Fallowell
£ 200,000
Newton Fallowell says ..
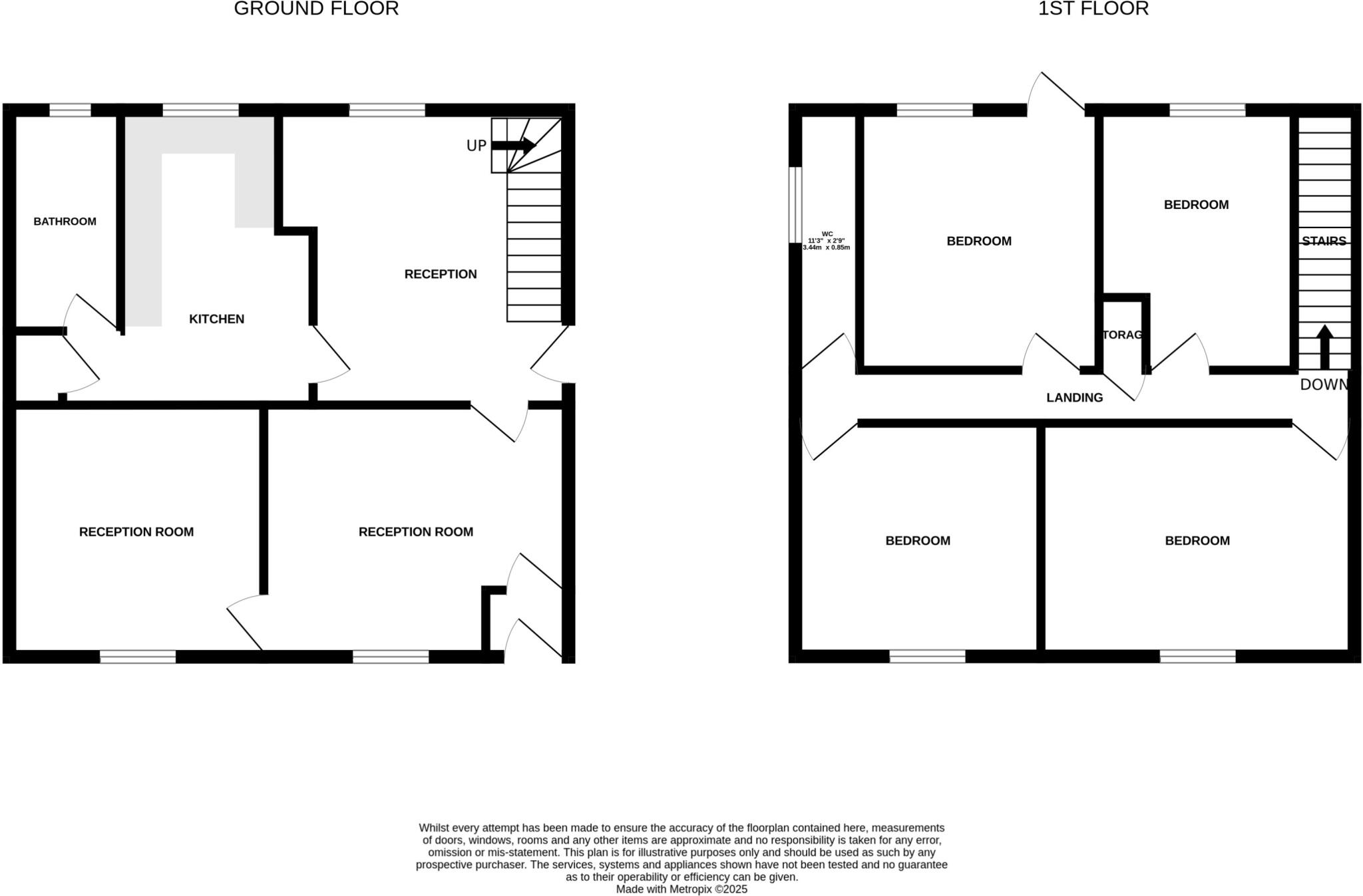
A generous detached property with the benefit of off road parking in close proximity to local facilities and the town centre.Offered for sale with vacant possession, the property comprises, two reception rooms, large kitchen, bathroom and 4 good bedrooms. there is a garden to the rear a...
- Bedrooms
- 4
- Bathrooms
- 1
The heatmap indicates the level of crime in the area. The color of the heatmap indicates the crime severity and recency.
Metrics Year-on-Year
- Average area value
- 260,000.00 £Decreased by 16.66 %
- Average area rental value
- 1,150.00 £/moIncreased by 58.62 %
- Est rental Yield
- 5.31 %Increased by 90.32 %
- Crime Rate
- 7.00 %Unchanged by 0.00 %
from 311,967.00 £
from 725.00 £/mo
from 2.79 %
from 7.00 %
Agent Activity
Newton Fallowell created the listing.
Nearby Schools
| Name | Type | Ofsted | Distance |
|---|---|---|---|
| The Violet Way Academy | Academy Converter | Outstanding | 0.33 KM |
| Paulet High School | Academy Converter | 0.60 KM | |
| Edge Hill Academy | Academy Converter | 0.61 KM | |
| Blessed Robert Sutton Catholic Voluntary Academy | Academy Converter | 0.93 KM | |
| Burton And South Derbyshire College | Further Education | Good | 1.43 KM |
Images
Nearby Streets
| Name | Average Price | Average Sqft | Distance |
|---|---|---|---|
| Saint Peters Court | £ 0 | 0 | 0.00 KM |
| The Dingle | £ 0 | 0 | 0.00 KM |
| Chestnut Road | £ 0 | 0 | 0.00 KM |
| Violet Way | £ 0 | 0 | 0.00 KM |
| Windsor Drive | £ 0 | 0 | 0.00 KM |
Nearby Transport
| Name | NLC | TLC | Distance |
|---|---|---|---|
| Burton-On-Trent | 1658 | BUT | 2.85 KM |
| Willington | 1905 | WIL | 9.19 KM |
Nearby Listings
| Address | Price | Type | Score | Distance |
|---|---|---|---|---|
| Stanton Road, Stapenhill, DE15 | £ 150,000 | BUY | 6 / 10 | 0.00 KM |
| Stanton Road, Stapenhill, Burton-on-Trent, DE15 | £ 110,000 | BUY | 5 / 10 | 0.00 KM |
| Stanton Road, Stapenhill, Burton-on-Trent, DE15 | £ 190,000 | BUY | 6 / 10 | 0.00 KM |
| Stanton Road, Stapenhill, Burton-on-Trent, DE15 | £ 200,000 | BUY | Unknown | 0.00 KM |
| Stanton Road, Burton-On-Trent | £ 175,000 | BUY | Unknown | 0.09 KM |
Nearby Properties
| Address | Price | Distance |
|---|---|---|
| 24 Stanton Road | £ 110,000 | 0.00 KM |
| 495 Stanton Road | £ 5,000 | 0.00 KM |
| 524 Stanton Road | £ 133,000 | 0.00 KM |
| 4 Stanton Road | £ 102,500 | 0.00 KM |
| 528 Stanton Road | £ 99,000 | 0.00 KM |