Roman Court, 88 Roman Way, N7
By Chestertons Estate Agents
£ 750,000
Reviews
3 out of 5 stars
Chestertons Estate Agents says ..
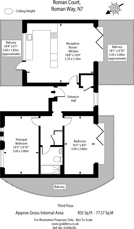
A bright and extremely spacious 2 double bedroom apartment located on the top floor of a modern secure purpose built block, ideally situated for access to Caledonian Road Underground.
Property Oracle says ..
This 2-bedroom apartment at Roman Court, 88 Roman Way, N7 8UQ, Islington, is a modern property presented in excellent condition. The high-quality refurbishment is evident in the photos, showcasing a contemporary and stylish interior with a modern kitchen and bathroom. A key feature is the private outdoor space, although it’s relatively small, providing a pleasant area for relaxation. The property’s location near Caledonian Road station offers convenient access to central London. Several good schools are also located nearby. However, the limited information regarding comparable properties in terms of accurate square footage makes a precise per-square-foot evaluation difficult. The location itself is advantageous for transport and amenities but may not be considered the most desirable area of Islington by all buyers. The £750,000 price point appears reasonable within the context of the current Islington market and the property’s modern and updated state, however, a deeper analysis of precise property sizes in the surrounding area is needed to conclusively ascertain the property’s value. Overall, this property offers a good combination of style, convenience and location, making it suitable for professionals or couples seeking a stylish and easy-to-maintain property in the N7 postcode.
Therefore, we give this property 6 / 10. *Disclaimer: This is our option and does constitute a recommendation or financial advice. Do your own research. *
- Price
- 7
- Condition
- 9
- Location
- 7
- Land
- 4
- Bedrooms
- 2
- Bathrooms
- 1
- Sqft (est)
- 834.96
The heatmap indicates the level of crime in the area. The color of the heatmap indicates the crime severity and recency.
Metrics Year-on-Year
- Average area value
- 1,119,000.00 £Increased by 54.70 %
- Est sale value
- 1,559,705.28 £Increased by 148.07 %
- Average area rental value
- 2,309.00 £/moIncreased by 1.09 %
- Est letting value
- 2,504.88 £/moIncreased by 50.00 %
- Est rental Yield
- 2.48 %Decreased by 34.56 %
- Crime Rate
- 7.00 %Unchanged by 0.00 %
Agent Activity
Chestertons Estate Agents created the listing.
Nearby Schools
| Name | Type | Ofsted | Distance |
|---|---|---|---|
| Dania School | Other Independent School | 0.40 KM | |
| Sacred Heart Catholic Primary School | Voluntary Aided School | Good | 0.52 KM |
| Robert Blair School | Community School | Good | 0.58 KM |
| New River College Secondary | Pupil Referral Unit | Good | 0.68 KM |
| Paradise Park Children'S Centre | Children's Centre | 0.70 KM |
Images
Nearby Streets
| Name | Average Price | Average Sqft | Distance |
|---|---|---|---|
| Mackenzie Road | £ 693,571 | 0 | 0.00 KM |
| Copenhagen Tunnel | £ 0 | 0 | 0.00 KM |
| Brewery Road | £ 0 | 0 | 0.00 KM |
| Frederica Street | £ 0 | 0 | 0.00 KM |
| King's Court | £ 0 | 0 | 0.00 KM |
Nearby Transport
| Name | NLC | TLC | Distance |
|---|---|---|---|
| Caledonian Road And Barnsbury | 1439 | CIR | 0.51 KM |
| Drayton Park | 6000 | DYP | 1.43 KM |
| Highbury And Islington | 6009 | HHY | 1.51 KM |
| King'S Cross | 6121 | KGX | 1.96 KM |
| St Pancras | 1555 | STP | 2.01 KM |
Nearby Listings
| Address | Price | Type | Score | Distance |
|---|---|---|---|---|
| Roman Court, 88 Roman Way, N7 | £ 750,000 | BUY | 6 / 10 | 0.00 KM |
| Caledonian Road, Islington, London, N7 | £ 1,300,000 | BUY | 5 / 10 | 0.05 KM |
| Caledonian Road, Islington | £ 590,000 | BUY | 7 / 10 | 0.07 KM |
| Caledonian Road, Holloway | £ 650,000 | BUY | 7 / 10 | 0.07 KM |
| Caledonian Road, Islington | £ 500,000 | BUY | 7 / 10 | 0.07 KM |
Nearby Properties
| Address | Price | Distance |
|---|---|---|
| 9 Mackenzie Road | £ 299,000 | 0.06 KM |
| 7 Mackenzie Road | £ 725,000 | 0.06 KM |
| 436b Caledonian Road | £ 283,000 | 0.07 KM |
| 458 Caledonian Road | £ 400,000 | 0.07 KM |
| 462 Caledonian Road | £ 473,000 | 0.07 KM |