Goodfellows says ..
An exciting opportunity to acquire a lovely family home, situated in a highly sought after residential location. Ideal for the growing family, with a selection of schooling for all ages in both the public and private sector. The property is presented to a very good standard and the ...
Property Oracle says ..
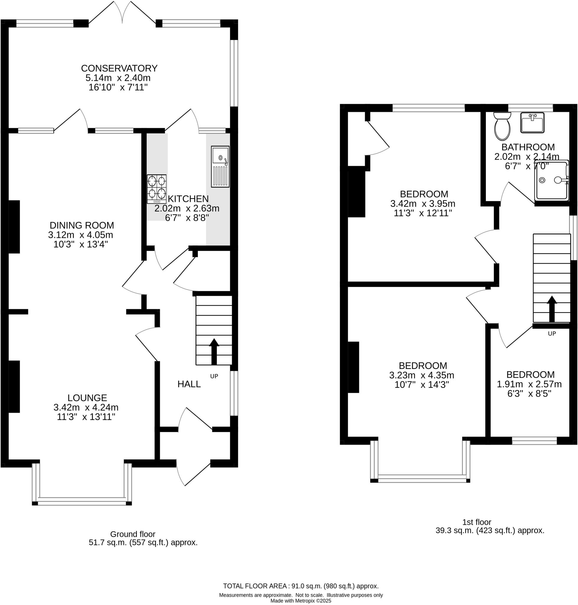
This three-bedroom semi-detached property on Tonfield Road, Sutton, is located in the Stonecot area. The property benefits from being close to several schools, including Glenthorne High School (Outstanding Ofsted rating) which is approximately 0.68km away. Transport links are also convenient with St Helier station approximately 1.22km away. The property itself appears well-maintained from the images provided, with a modern kitchen and conservatory extension. There is a good-sized garden with patio area and sheds. The list price of £600,000 is slightly higher than the average price for the area (£551,806), but considering the property’s condition, location, and garden, it could be considered reasonable. The average price per sqft in the area is £475, and this property is smaller than average at 883.72 sqft, which may account for some of the price difference. However, comparable properties in the area are listed at similar or higher prices, suggesting the asking price is within the market range.
Therefore, we give this property 7 / 10. *Disclaimer: This is our option and does constitute a recommendation or financial advice. Do your own research. *
- Price
- 7
- Condition
- 8
- Location
- 8
- Land
- 7
- Bedrooms
- 3
- Bathrooms
- 1
- Sqft (est)
- 883.72
- Lot (est)
- 979.52
The heatmap indicates the level of crime in the area. The color of the heatmap indicates the crime severity and recency.
Metrics Year-on-Year
- Average area value
- 584,167.00 £Increased by 7.05 %
- Est sale value
- 570,883.12 £Increased by 10.81 %
- Average area rental value
- 2,325.00 £/moIncreased by 3.33 %
- Est letting value
- 1,767.44 £/moUnchanged by 0.00 %
- Est rental Yield
- 4.78 %Decreased by 3.43 %
- Crime Rate
- 2.00 %Unchanged by 0.00 %
Agent Activity
Goodfellows created the listing.
Nearby Schools
| Name | Type | Ofsted | Distance |
|---|---|---|---|
| Glenthorne High School | Academy Converter | Outstanding | 0.68 KM |
| Abbey Primary School | Academy Converter | 0.97 KM | |
| Brookfield Primary Academy | Academy Converter | Good | 0.97 KM |
| Westbourne Primary School | Academy Converter | 1.16 KM | |
| Morden Primary School | Community School | Good | 1.20 KM |
Images
Nearby Streets
| Name | Average Price | Average Sqft | Distance |
|---|---|---|---|
| Poplar Road | £ 606,250 | 0 | 0.00 KM |
| Elm Road West | £ 0 | 0 | 0.00 KM |
| Wentworth Close | £ 615,000 | 0 | 0.00 KM |
| Anderson Close | £ 0 | 0 | 0.00 KM |
| Beeches Road | £ 465,438 | 0 | 0.00 KM |
Nearby Transport
| Name | NLC | TLC | Distance |
|---|---|---|---|
| St Helier | 5290 | SIH | 1.22 KM |
| Sutton Common | 5436 | SUC | 1.48 KM |
| Morden South | 5291 | MDS | 1.71 KM |
| West Sutton | 5293 | WSU | 1.89 KM |
| South Merton | 5292 | SMO | 2.27 KM |
Nearby Listings
| Address | Price | Type | Score | Distance |
|---|---|---|---|---|
| Tonfield Road, Sutton, SM3 | £ 600,000 | BUY | 7 / 10 | 0.00 KM |
| Tonfield Road, Sutton, Surrey, SM3 | £ 600,000 | BUY | 6 / 10 | 0.04 KM |
| Tonfield Road, Sutton, Surrey, SM3 9JP | £ 600,000 | BUY | 6 / 10 | 0.04 KM |
| Tonfield Road, Sutton, SM3 | £ 625,000 | BUY | 6 / 10 | 0.08 KM |
| Tonfield Road, Sutton | £ 650,000 | BUY | Unknown | 0.08 KM |
Nearby Properties
| Address | Price | Distance |
|---|---|---|
| 42 Tonfield Road | £ 318,000 | 0.04 KM |
| 9 Tonfield Road | £ 430,000 | 0.04 KM |
| 27 Tonfield Road | £ 233,000 | 0.04 KM |
| 51 Tonfield Road | £ 595,000 | 0.04 KM |
| 49 Tonfield Road | £ 339,000 | 0.04 KM |