Hunters says ..
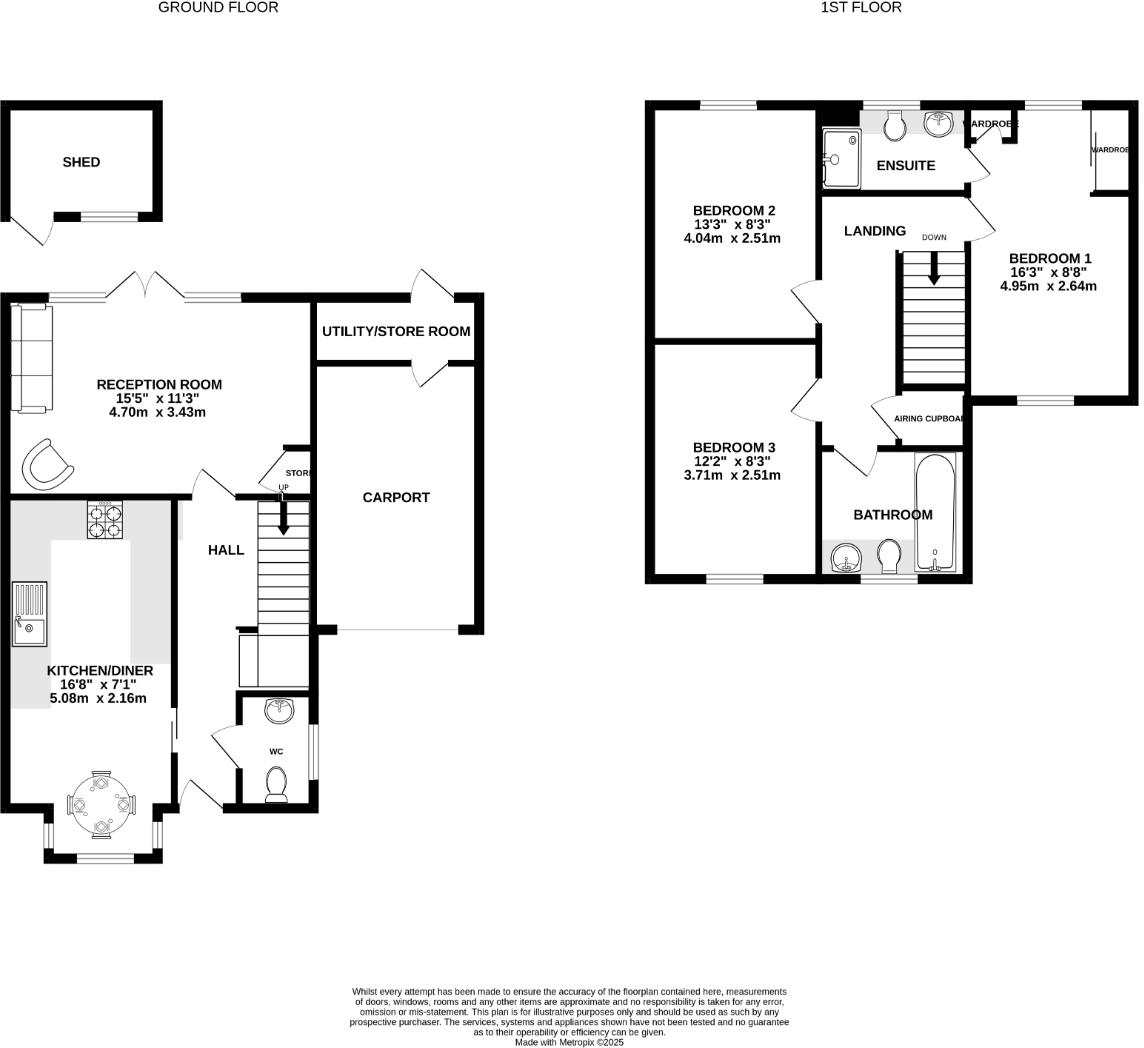
Nestled in the desirable Finberry Village, this charming semi-detached house on Goldfinch Drive offers a perfect blend of modern living and convenience. Built in 2016, this well-presented property boasts three spacious, double bedrooms, & off street parking, making it an ideal home for a growing ...
Property Oracle says ..
Therefore, we give this property 6 / 10. *Disclaimer: This is our option and does constitute a recommendation or financial advice. Do your own research. *
- Price
- 5
- Condition
- 8
- Location
- 7
- Land
- 7
- Bedrooms
- 3
- Bathrooms
- 2
- Sqft (est)
- 641.36
The heatmap indicates the level of crime in the area. The color of the heatmap indicates the crime severity and recency.
Metrics Year-on-Year
- Average area value
- 257,097.00 £Decreased by 8.25 %
- Est sale value
- 211,648.80 £Increased by 14.98 %
- Average area rental value
- 956.00 £/moIncreased by 1.92 %
- Est letting value
- 641.36 £/mo
- Est rental Yield
- 4.46 %Increased by 10.95 %
- Crime Rate
- 17.00 %Unchanged by 0.00 %
from 280,201.00 £
from 184,070.32 £
from 938.00 £/mo
from 0.00 £/mo
from 4.02 %
from 17.00 %
Agent Activity
Hunters created the listing.
Nearby Schools
| Name | Type | Ofsted | Distance |
|---|---|---|---|
| Finberry Primary School | Academy Sponsor Led | Good | 0.74 KM |
| Waterside Children'S Centre | Children's Centre | 2.01 KM | |
| Willesborough Junior School | Foundation School | Good | 2.29 KM |
| Willesborough Infant School | Foundation School | Good | 2.40 KM |
| Furley Park Primary Academy | Academy Converter | Good | 2.41 KM |
Images
Nearby Streets
| Name | Average Price | Average Sqft | Distance |
|---|---|---|---|
| Linnet Drive | £ 0 | 0 | 0.00 KM |
| Rutledge Avenue | £ 0 | 0 | 0.00 KM |
| The Courtyard | £ 230,000 | 0 | 0.00 KM |
| Paddock Close | £ 0 | 0 | 0.00 KM |
| Farmstead Road | £ 0 | 0 | 0.00 KM |
Nearby Transport
| Name | NLC | TLC | Distance |
|---|---|---|---|
| Ashford International | 5004 | AFK | 3.41 KM |
| Ham Street | 5037 | HMT | 7.21 KM |
| Wye | 5031 | WYE | 8.25 KM |
Nearby Listings
| Address | Price | Type | Score | Distance |
|---|---|---|---|---|
| Goldfinch Drive, Finberry | £ 375,000 | BUY | 6 / 10 | 0.00 KM |
| Brambling Avenue, Finberry, TN25 | £ 365,000 | BUY | 7 / 10 | 0.05 KM |
| Goldfinch Drive, Finberry, TN25 | £ 500,000 | BUY | 7 / 10 | 0.10 KM |
| Brambling Avenue, Finberry, TN25 7FB | £ 325,000 | BUY | Unknown | 0.12 KM |
| Goldfinch Drive, Finberry, TN25 | £ 395,000 | BUY | 8 / 10 | 0.14 KM |
Nearby Properties
| Address | Price | Distance |
|---|---|---|
| 1 Goldfinch Drive | £ 230,000 | 0.05 KM |
| 18 Goldfinch Drive | £ 280,000 | 0.05 KM |
| 33 Goldfinch Drive | £ 332,500 | 0.05 KM |
| 24 Goldfinch Drive | £ 391,000 | 0.05 KM |
| 14 Goldfinch Drive | £ 372,500 | 0.05 KM |