Bettermove says ..
A SPACIOUS TWO BEDROOM FLAT in Havant, available TENANTED for IMMEDIATE investment and CHAIN FREE. Call to enquire!Bettermove are proud to present this 2 bedroom flat in Havant, available with no forward chain.This is currently a tenanted property and will be sold with tenants in...
Property Oracle says ..
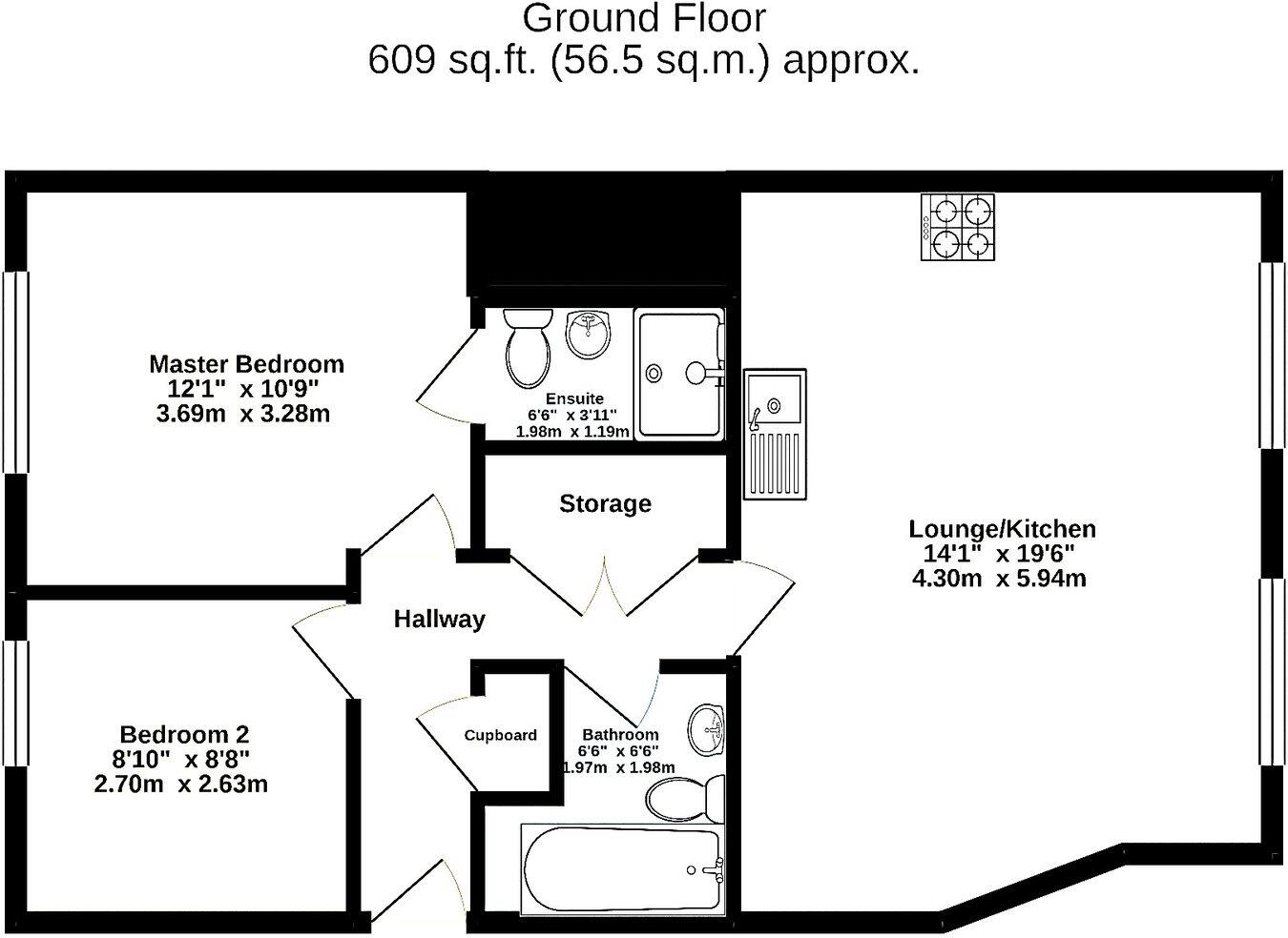
This is a modern two-bedroom flat located on East Street in Havant. The property is in good condition, with a modern interior and updated fixtures. The location is central and convenient, with easy access to local amenities, schools, and transport links. The flat includes two bathrooms and has a total square footage of 609. While the property does not include any land, its central location and good condition make it an attractive option for buyers looking for a modern and convenient living space in Havant. The price is reasonable for the area and condition of the property. The flat would be ideal for a small family or a couple.
Therefore, we give this property 5 / 10. *Disclaimer: This is our option and does constitute a recommendation or financial advice. Do your own research. *
- Price
- 7
- Condition
- 8
- Location
- 7
- Land
- 1
- Bedrooms
- 2
- Bathrooms
- 2
- Sqft (est)
- 609.00
The heatmap indicates the level of crime in the area. The color of the heatmap indicates the crime severity and recency.
Metrics Year-on-Year
- Average area value
- 354,000.00 £Decreased by 21.23 %
- Est sale value
- 214,977.00 £Decreased by 9.49 %
- Average area rental value
- 1,321.00 £/moIncreased by 24.62 %
- Est letting value
- 609.00 £/mo
- Est rental Yield
- 4.48 %Increased by 58.30 %
- Crime Rate
- 13.00 %Unchanged by 0.00 %
Agent Activity
Bettermove created the listing.
Nearby Schools
| Name | Type | Ofsted | Distance |
|---|---|---|---|
| Fairfield Infant School | Community School | Good | 0.26 KM |
| Bosmere Junior School | Community School | Good | 0.42 KM |
| Warblington School | Community School | Good | 1.19 KM |
| Trosnant Junior School | Community School | Good | 1.28 KM |
| Trosnant Infant School | Community School | Good | 1.28 KM |
Images
Nearby Streets
| Name | Average Price | Average Sqft | Distance |
|---|---|---|---|
| Prince George Street | £ 0 | 0 | 0.00 KM |
| Winifred Court | £ 0 | 0 | 0.00 KM |
| Prince George Street Car Park | £ 0 | 0 | 0.00 KM |
| Park Road South | £ 120,000 | 0 | 0.00 KM |
| Russell Road | £ 0 | 0 | 0.00 KM |
Nearby Transport
| Name | NLC | TLC | Distance |
|---|---|---|---|
| Havant | 5532 | HAV | 0.41 KM |
| Warblington | 5264 | WBL | 1.43 KM |
| Bedhampton | 5538 | BDH | 1.79 KM |
| Emsworth | 5257 | EMS | 4.58 KM |
| Rowlands Castle | 5658 | RLN | 5.19 KM |
Nearby Listings
| Address | Price | Type | Score | Distance |
|---|---|---|---|---|
| East Street, Havant, PO9 | £ 208,000 | BUY | 5 / 10 | 0.00 KM |
| Twittens Way, Havant | £ 200,000 | BUY | 6 / 10 | 0.04 KM |
| 21 East Street, Havant | £ 147,500 | BUY | 5 / 10 | 0.04 KM |
| East Street, Havant, Hampshire, PO9 | £ 325,000 | BUY | Unknown | 0.04 KM |
| Empire Court, East Street, Havant | £ 225,000 | BUY | Unknown | 0.07 KM |
Nearby Properties
| Address | Price | Distance |
|---|---|---|
| 9 East Street | £ 975,000 | 0.02 KM |
| 13 East Street | £ 295,000 | 0.02 KM |
| 7 East Street | £ 346,000 | 0.02 KM |
| 31 East Street | £ 80,000 | 0.02 KM |
| 15 Twittens Way | £ 326,000 | 0.04 KM |