Clos Carrog, Llanrhystud, SY23
By Morgan & Davies
£ 385,000
Reviews
3 out of 5 stars
Morgan & Davies says ..
A brand new 4 bed detached family home. Sought after development. Llanrhystud. Near Aberaeron/Aberystwyth - West Wales.
Property Oracle says ..
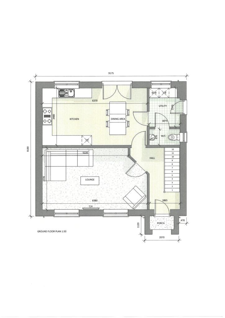
This is a detached property in Llanrhystud, Ceredigion, listed for £385,000. It features 4 bedrooms and 2 bathrooms. The property appears to be in good condition, possibly a modern construction. It includes a garden, offering outdoor space. The location is in a village setting, close to local schools but further from larger towns. The price is competitive compared to the average in the area. Overall, it seems like a well-maintained family home in a quieter location.
Therefore, we give this property 7 / 10. *Disclaimer: This is our option and does constitute a recommendation or financial advice. Do your own research. *
- Price
- 7
- Condition
- 8
- Location
- 7
- Land
- 6
- Bedrooms
- 4
- Bathrooms
- 2
The heatmap indicates the level of crime in the area. The color of the heatmap indicates the crime severity and recency.
Metrics Year-on-Year
- Average area value
- 398,765.00 £Decreased by 0.35 %
- Average area rental value
- 1,263.00 £/moIncreased by 3.52 %
- Est rental Yield
- 3.80 %Increased by 3.83 %
- Crime Rate
- 53.00 %Unchanged by 0.00 %
Agent Activity
Morgan & Davies created the listing.
Nearby Schools
| Name | Type | Ofsted | Distance |
|---|---|---|---|
| Ysgol Gynradd Wirfoddol Myfenydd | Welsh Establishment | 0.30 KM | |
| Ysgol Llannon | Welsh Establishment | 4.73 KM | |
| Ysgol Llangwyryfon | Welsh Establishment | 9.51 KM |
Images
Nearby Listings
| Address | Price | Type | Score | Distance |
|---|---|---|---|---|
| Clos Carrog, Llanrhystud, SY23 | £ 385,000 | BUY | 7 / 10 | 0.00 KM |
| Clos Carrog, Llanrhystud, SY23 | £ 455,000 | BUY | 7 / 10 | 0.02 KM |
| Clos Carrog, Llanrhystud, SY23 | £ 425,000 | BUY | 7 / 10 | 0.05 KM |
| Heol Islwyn, Llanrhystud, Ceredigion, SY23 | £ 240,000 | BUY | 6 / 10 | 0.21 KM |
| Heol Islwyn, Llanrhystud | £ 240,000 | BUY | 7 / 10 | 0.21 KM |
Nearby Properties
| Address | Price | Distance |
|---|---|---|
| 1 Maes Wyre | £ 325,000 | 0.16 KM |
| 7 Maes Wyre | £ 310,000 | 0.16 KM |
| 4 Moelivor Terrace | £ 141,000 | 0.20 KM |
| 1 Moelivor Terrace | £ 162,000 | 0.20 KM |
| 8 Clos Allt Fach | £ 178,500 | 0.21 KM |