Sheridans says ..
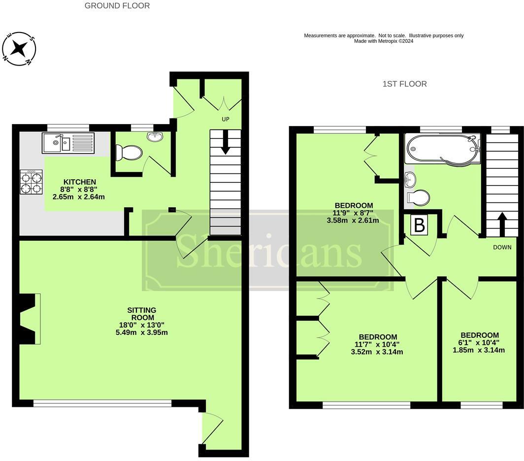
A well presented end of terrace 3 bedroom house with gardens enjoying a south easterly aspect. Built of traditional brick construction beneath a tiled roof, this well maintained family home provides light and airy accommodation, benefitting from several updates in more recent years. The ...
Property Oracle says ..
This three-bedroom end-of-terrace house in Bury St Edmunds, Suffolk, is presented by Sheridans estate agents. Located in the Westgate area, it benefits from relative proximity to several well-regarded schools (Horringer Court Middle School and Westgate Community Primary School) and the Bury St Edmunds train station. The property features a modern kitchen and updated interior aspects visible in the photos. However, other areas of the house suggest there is room for further modernisation depending on the buyer’s preference. The outside space consists of a modestly sized garden, which appears well-maintained, along with a patio area. The overall condition of the house appears reasonable, although a detailed survey is advised prior to purchase. The asking price sits within the range of comparable properties in the locality, though a precise per-square-foot cost comparison is challenging due to the inconsistency in data for nearby listings. Overall, the property offers a comfortable family home in a convenient yet residential location with the potential for further enhancement.
Therefore, we give this property 6 / 10. *Disclaimer: This is our option and does constitute a recommendation or financial advice. Do your own research. *
- Price
- 7
- Condition
- 6
- Location
- 7
- Land
- 4
- Bedrooms
- 3
- Bathrooms
- 1
- Sqft (est)
- 889.85
The heatmap indicates the level of crime in the area. The color of the heatmap indicates the crime severity and recency.
Metrics Year-on-Year
- Average area value
- 222,854.00 £Decreased by 15.77 %
- Est sale value
- 256,276.80 £Decreased by 6.19 %
- Average area rental value
- 1,201.00 £/moIncreased by 7.91 %
- Est letting value
- 889.85 £/moUnchanged by 0.00 %
- Est rental Yield
- 6.47 %Increased by 28.12 %
- Crime Rate
- 1.00 %Unchanged by 0.00 %
Agent Activity
Sheridans marked this listing as sold.
Sheridans created the listing.
Nearby Schools
| Name | Type | Ofsted | Distance |
|---|---|---|---|
| Horringer Court Middle School | Academy Converter | Good | 0.60 KM |
| Westgate Community Primary School And Nursery | Community School | Good | 1.14 KM |
| Abbeygate Sixth Form College | Free Schools 16 To 19 | 1.42 KM | |
| West Suffolk College | Further Education | Good | 1.54 KM |
| Sexton'S Manor Community Primary School | Community School | Good | 1.64 KM |
Images
Nearby Streets
| Name | Average Price | Average Sqft | Distance |
|---|---|---|---|
| Whitby Road | £ 245,000 | 0 | 0.00 KM |
| Langton Road | £ 325,000 | 0 | 0.00 KM |
| Briarwood Avenue | £ 0 | 0 | 0.00 KM |
| Westgarth Gardens | £ 300,000 | 0 | 0.00 KM |
| Chevington Close | £ 350,000 | 0 | 0.00 KM |
Nearby Transport
| Name | NLC | TLC | Distance |
|---|---|---|---|
| Bury St Edmunds | 7008 | BSE | 2.90 KM |
Nearby Listings
| Address | Price | Type | Score | Distance |
|---|---|---|---|---|
| Sherborne Road, Bury St. Edmunds | £ 270,000 | BUY | 6 / 10 | 0.00 KM |
| Sherborne Road, Bury St. Edmunds | £ 240,000 | BUY | 6 / 10 | 0.12 KM |
| Abbotsbury Road, Bury St Edmunds | £ 200,000 | BUY | 7 / 10 | 0.13 KM |
| Sherborne Road, BURY ST. EDMUNDS | £ 230,000 | BUY | 7 / 10 | 0.17 KM |
| Winthrop Road, Bury St. Edmunds, IP33 | £ 375,000 | BUY | Unknown | 0.17 KM |
Nearby Properties
| Address | Price | Distance |
|---|---|---|
| 66 Sherborne Road | £ 242,000 | 0.08 KM |
| 86 Sherborne Road | £ 185,000 | 0.08 KM |
| 70 Sherborne Road | £ 158,000 | 0.08 KM |
| 33 Sherborne Road | £ 245,000 | 0.09 KM |
| 120 Sherborne Road | £ 146,000 | 0.09 KM |