Willow Green, Rufford, L40
By Churcher Estates
£ 325,000
Reviews
3 out of 5 stars
Churcher Estates says ..
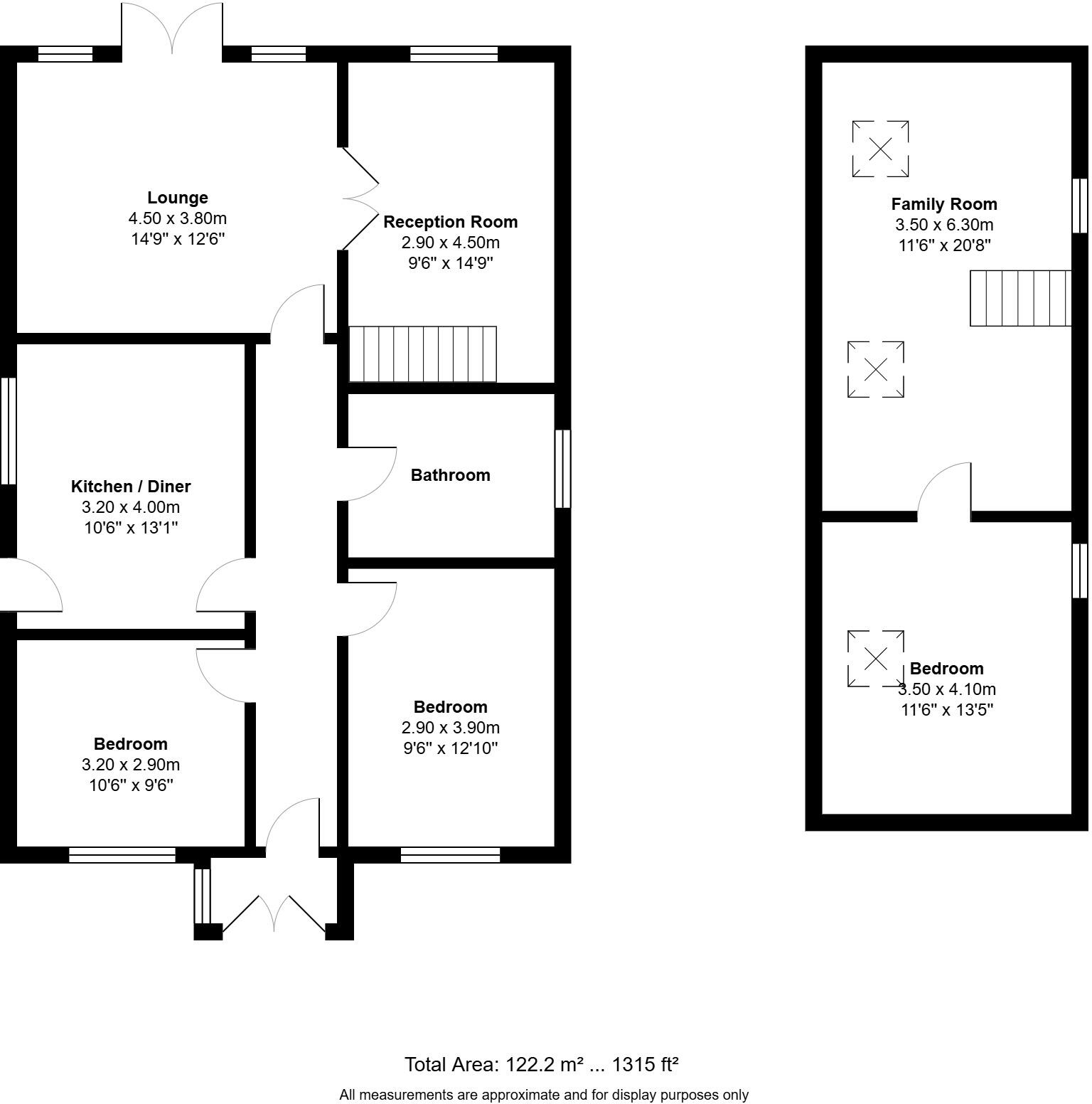
Churcher Estates are proud to present this beautiful three-bedroom detached bungalow in the sought-after area of Rufford. Tucked away in a quiet cul-de-sac, this deceptively spacious home is ideally located within walking distance of Rufford Village, Rufford Primary School, and the local train stati
Property Oracle says ..
This property is a 3-bedroom, 1-bathroom detached house located in Rufford, Lancashire. The asking price of £325,000 is slightly below the average price for the area (£404,387), and the property is slightly larger than the average size (1,018.60 sqft vs 977 sqft). While the provided images show a well-maintained property in good condition, with a garden and what appears to be a garage, further information on the property’s condition is needed for a complete assessment. The location is within reasonable proximity to local schools and train stations, making it a potentially attractive option for families and commuters. However, more detailed information on local amenities and transport links would be beneficial for a more comprehensive analysis. The price seems reasonable given the current market conditions in the area, but additional information on the condition of the property would strengthen this assessment.
Therefore, we give this property 7 / 10. *Disclaimer: This is our option and does constitute a recommendation or financial advice. Do your own research. *
- Price
- 8
- Condition
- 8
- Location
- 7
- Land
- 7
- Bedrooms
- 3
- Bathrooms
- 1
- Sqft (est)
- 1,018.60
- Lot (est)
- 1,315.00
The heatmap indicates the level of crime in the area. The color of the heatmap indicates the crime severity and recency.
Metrics Year-on-Year
- Average area value
- 382,533.00 £Increased by 3.77 %
- Est sale value
- 374,844.80 £Increased by 5.44 %
- Average area rental value
- 1,090.00 £/moDecreased by 17.67 %
- Est letting value
- 1,018.60 £/moUnchanged by 0.00 %
- Est rental Yield
- 3.42 %Decreased by 20.65 %
- Crime Rate
- 80.00 %Unchanged by 0.00 %
Agent Activity
Churcher Estates created the listing.
Nearby Schools
| Name | Type | Ofsted | Distance |
|---|---|---|---|
| Rufford Cofe School | Voluntary Aided School | Good | 0.82 KM |
| The Grove Youth, Community & Children'S Centre | Children's Centre | 3.45 KM | |
| Burscough Bridge St John'S Church Of England Primary School | Voluntary Controlled School | Good | 3.45 KM |
| Burscough Village Primary School | Community School | Good | 3.50 KM |
| Burscough Bridge Methodist School | Voluntary Controlled School | Good | 3.76 KM |
Images
Nearby Streets
| Name | Average Price | Average Sqft | Distance |
|---|---|---|---|
| Holly Lane | £ 750,000 | 0 | 0.00 KM |
| Church Road | £ 0 | 0 | 0.00 KM |
Nearby Transport
| Name | NLC | TLC | Distance |
|---|---|---|---|
| Rufford | 2315 | RUF | 2.00 KM |
| Burscough Bridge | 2279 | BCB | 3.36 KM |
| Burscough Junction | 2280 | BCJ | 4.11 KM |
| Hoscar | 2399 | HSC | 4.41 KM |
| New Lane | 2358 | NLN | 5.14 KM |
Nearby Listings
| Address | Price | Type | Score | Distance |
|---|---|---|---|---|
| Willow Green, Rufford L40 | £ 355,000 | BUY | 7 / 10 | 0.00 KM |
| Willow Green, Rufford, L40 | £ 325,000 | BUY | 7 / 10 | 0.00 KM |
| Prescott Avenue, Ormskirk, L40 | £ 275,000 | BUY | 8 / 10 | 0.06 KM |
| Prescott Avenue, Rufford, L40 1TT | £ 215,000 | BUY | 5 / 10 | 0.06 KM |
| The Hawthornes, Rufford, L40 | £ 450,000 | BUY | 7 / 10 | 0.17 KM |
Nearby Properties
| Address | Price | Distance |
|---|---|---|
| 20 Willow Green | £ 269,500 | 0.00 KM |
| 18 Willow Green | £ 310,000 | 0.00 KM |
| 1 Willow Green | £ 225,000 | 0.00 KM |
| 14 Willow Green | £ 260,000 | 0.00 KM |
| 10 Willow Green | £ 250,000 | 0.00 KM |