RI
Radnor Street, Kingshill, Swindon, SN1
By Richard James
£ 175,000
Reviews
3 out of 5 stars
Richard James says ..
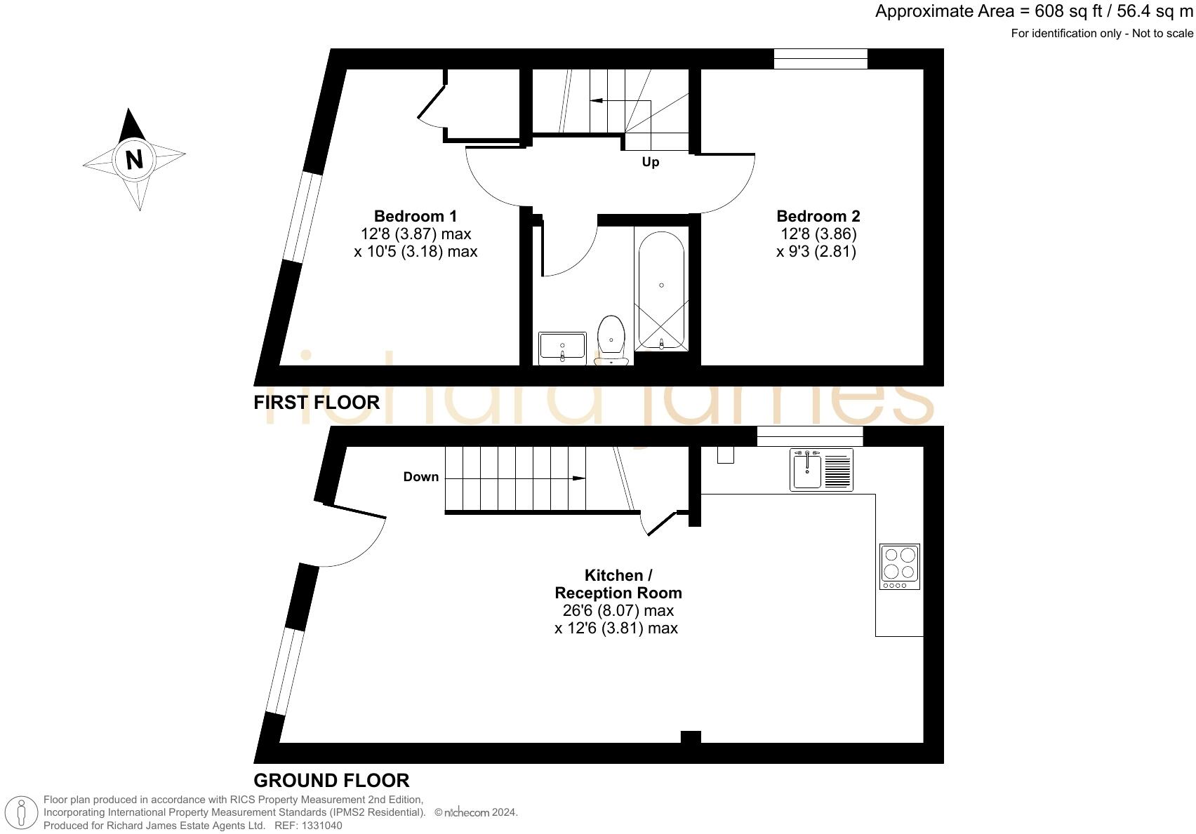
This two double bedroom end-terrace home is ideally located within walking distance of both Old Town and Swindon Town Centre. The ground floor features a spacious open-plan living room and modern fitted kitchen, creating a bright and functional living space. Upstairs offers two well-proportioned ...
Property Oracle says ..
Therefore, we give this property 6 / 10. *Disclaimer: This is our option and does constitute a recommendation or financial advice. Do your own research. *
- Price
- 8
- Condition
- 8
- Location
- 7
- Land
- 1
- Bedrooms
- 2
- Bathrooms
- 1
- Sqft (est)
- 608.00
The heatmap indicates the level of crime in the area. The color of the heatmap indicates the crime severity and recency.
Metrics Year-on-Year
- Average area value
- 238,636.00 £Increased by 2.11 %
- Est sale value
- 189,088.00 £Increased by 16.04 %
- Average area rental value
- 982.00 £/moDecreased by 1.70 %
- Est letting value
- 608.00 £/moUnchanged by 0.00 %
- Est rental Yield
- 4.94 %Decreased by 3.70 %
- Crime Rate
- 8.00 %Unchanged by 0.00 %
from 233,708.00 £
from 162,944.00 £
from 999.00 £/mo
from 608.00 £/mo
from 5.13 %
from 8.00 %
Agent Activity
Richard James created the listing.
Nearby Schools
| Name | Type | Ofsted | Distance |
|---|---|---|---|
| Robert Le Kyng Primary School | Community School | Good | 0.43 KM |
| Utc Swindon | University Technical College | Requires improvement | 0.64 KM |
| The Commonweal School | Academy Converter | Good | 0.97 KM |
| East Wichel Primary School & Nursery | Community School | Good | 1.48 KM |
| King William Street Church Of England Primary School | Academy Converter | Good | 1.50 KM |
Images
Nearby Streets
| Name | Average Price | Average Sqft | Distance |
|---|---|---|---|
| Joseph Street | £ 0 | 0 | 0.00 KM |
| Marlborough Street | £ 0 | 0 | 0.00 KM |
| Canal Cottages | £ 0 | 0 | 0.00 KM |
| Chester Street | £ 240,000 | 0 | 0.00 KM |
| Church Place | £ 0 | 0 | 0.00 KM |
Nearby Transport
| Name | NLC | TLC | Distance |
|---|---|---|---|
| Swindon (Wilts) | 3333 | SWI | 1.38 KM |
Nearby Listings
| Address | Price | Type | Score | Distance |
|---|---|---|---|---|
| Radnor Street, Kingshill, Swindon, SN1 | £ 175,000 | BUY | 6 / 10 | 0.00 KM |
| Radnor Street, Kingshill, Swindon, SN1 | £ 175,000 | BUY | 6 / 10 | 0.00 KM |
| Clifton Street, Old Town, Swindon, SN1 | £ 450,000 | BUY | 5 / 10 | 0.01 KM |
| Radnor Street, Swindon | £ 220,000 | BUY | 5 / 10 | 0.04 KM |
| Clifton Street, Old Town, Swindon, SN1 | £ 140,000 | BUY | Unknown | 0.04 KM |
Nearby Properties
| Address | Price | Distance |
|---|---|---|
| 40 William Street | £ 135,000 | 0.06 KM |
| 31 William Street | £ 227,000 | 0.06 KM |
| 16 William Street | £ 173,236 | 0.06 KM |
| 29 William Street | £ 170,000 | 0.06 KM |
| 21 William Street | £ 165,000 | 0.06 KM |