Ellisons says ..
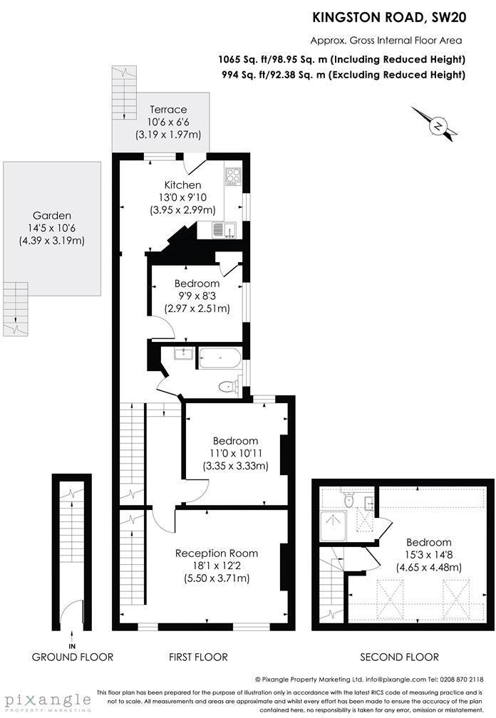
This spacious and neutrally decorated 1,065 sqft, THREE DOUBLE BEDROOM, TWO BATHROOM split-level Victorian Maisonette has generous sized kitchen/dining room, a large reception room and a charming private terrace with steps down to a secluded garden. Perfectly located within the Wimbledon Chase P...
Property Oracle says ..
Therefore, we give this property 7 / 10. *Disclaimer: This is our option and does constitute a recommendation or financial advice. Do your own research. *
- Price
- 8
- Condition
- 6
- Location
- 8
- Land
- 7
- Bedrooms
- 3
- Bathrooms
- 2
- Sqft (est)
- 989.74
The heatmap indicates the level of crime in the area. The color of the heatmap indicates the crime severity and recency.
Metrics Year-on-Year
- Average area value
- 720,667.00 £Decreased by 14.07 %
- Est sale value
- 816,535.50 £Decreased by 3.06 %
- Average area rental value
- 2,732.00 £/moDecreased by 2.11 %
- Est letting value
- 2,969.22 £/moIncreased by 50.00 %
- Est rental Yield
- 4.55 %Increased by 14.04 %
- Crime Rate
- 3.00 %Unchanged by 0.00 %
from 838,635.00 £
from 842,268.74 £
from 2,791.00 £/mo
from 1,979.48 £/mo
from 3.99 %
from 3.00 %
Agent Activity
Ellisons created the listing.
Nearby Schools
| Name | Type | Ofsted | Distance |
|---|---|---|---|
| The Avenue Children'S Centre | Children's Centre Linked Site | 0.56 KM | |
| Wimbledon Chase Primary School | Community School | Outstanding | 0.59 KM |
| Joseph Hood Primary School | Community School | Good | 0.62 KM |
| Wimbledon School Of Art | Miscellaneous | 0.64 KM | |
| Hall School Wimbledon | Other Independent School | Good | 0.64 KM |
Images
Nearby Streets
| Name | Average Price | Average Sqft | Distance |
|---|---|---|---|
| Burlington Gate | £ 0 | 0 | 0.00 KM |
| Merton Mansions | £ 400,000 | 0 | 0.00 KM |
| St Annes Mews | £ 2,500,000 | 0 | 0.00 KM |
| Newton Road | £ 806,429 | 0 | 0.00 KM |
| Hillside | £ 2,350,000 | 0 | 0.00 KM |
Nearby Transport
| Name | NLC | TLC | Distance |
|---|---|---|---|
| Wimbledon Chase | 5612 | WBO | 0.41 KM |
| Raynes Park | 5569 | RAY | 1.41 KM |
| South Merton | 5292 | SMO | 1.62 KM |
| Wimbledon | 5578 | WIM | 1.70 KM |
| Morden South | 5291 | MDS | 2.58 KM |
Nearby Listings
| Address | Price | Type | Score | Distance |
|---|---|---|---|---|
| Kingston Road, Raynes Park | £ 575,000 | BUY | 7 / 10 | 0.00 KM |
| Kingston Road, London | £ 550,000 | BUY | 8 / 10 | 0.04 KM |
| Kingston Road, Wimbledon Chase, SW20 | £ 525,000 | BUY | 7 / 10 | 0.04 KM |
| Kingston Road, London, SW20 | £ 700,000 | BUY | 7 / 10 | 0.05 KM |
| Kingston Road, London | £ 675,000 | BUY | 6 / 10 | 0.05 KM |
Nearby Properties
| Address | Price | Distance |
|---|---|---|
| 442 Kingston Road | £ 925,000 | 0.08 KM |
| 408a Kingston Road | £ 485,000 | 0.08 KM |
| 392 Kingston Road | £ 646,000 | 0.08 KM |
| 410 Kingston Road | £ 470,000 | 0.08 KM |
| 412 Kingston Road | £ 197,000 | 0.08 KM |