Victoria Road, Stowmarket, Suffolk, IP14
By Purbeck & Co
£ 200,000
Reviews
3 out of 5 stars
Purbeck & Co says ..
dhhfggfhfhg
Property Oracle says ..
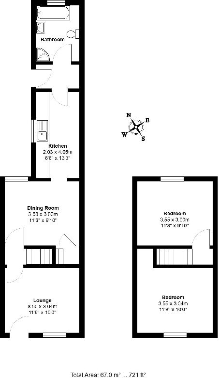
This two-bedroom, two-bathroom property in Stowmarket, Suffolk, offers a convenient location and a reasonably well-maintained interior. The property’s proximity to Stowmarket train station provides easy access to commuting routes. The garden, although not extensively large, adds outdoor space. The images reveal a functional kitchen and bathroom. The interiors are mostly tidy, with carpets and flooring showing some minor wear and some dated wallpaper. However, there is a lack of detail regarding the property’s plot size and the absence of precise comparable properties in the data provided limits a complete evaluation of the overall value. Further information on the property’s specifics, such as energy efficiency rating and any structural aspects, would allow for a more complete assessment. The provided information suggests a functional, well-located property that is competitively priced within the wider Stowmarket housing market.
Therefore, we give this property 6 / 10. *Disclaimer: This is our option and does constitute a recommendation or financial advice. Do your own research. *
- Price
- 7
- Condition
- 6
- Location
- 7
- Land
- 4
- Bedrooms
- 2
- Bathrooms
- 2
- Sqft (est)
- 721.18
The heatmap indicates the level of crime in the area. The color of the heatmap indicates the crime severity and recency.
Metrics Year-on-Year
- Average area value
- 349,167.00 £Increased by 16.59 %
- Est sale value
- 418,284.40 £Increased by 91.42 %
- Average area rental value
- 1,255.00 £/moIncreased by 17.18 %
- Est letting value
- 1,442.36 £/moIncreased by 100.00 %
- Est rental Yield
- 4.31 %Increased by 0.47 %
- Crime Rate
- 7.00 %Unchanged by 0.00 %
Agent Activity
Purbeck & Co created the listing.
Nearby Schools
| Name | Type | Ofsted | Distance |
|---|---|---|---|
| Acorn Cottage The Lodge | Other Independent Special School | Requires improvement | 0.79 KM |
| Gable End | Other Independent Special School | Good | 0.79 KM |
| Cedars Park Community Primary School | Academy Converter | Requires improvement | 1.11 KM |
| Acorns Children'S Centre | Children's Centre | 1.35 KM | |
| Combs Ford Primary School | Academy Converter | 1.45 KM |
Images
Nearby Streets
| Name | Average Price | Average Sqft | Distance |
|---|---|---|---|
| Prentice Road | £ 0 | 0 | 0.00 KM |
| B1113 | £ 0 | 0 | 0.00 KM |
| Crown Street | £ 232,500 | 0 | 0.00 KM |
| Market Place | £ 0 | 0 | 0.00 KM |
| A14 | £ 700,000 | 0 | 0.00 KM |
Nearby Transport
| Name | NLC | TLC | Distance |
|---|---|---|---|
| Stowmarket | 7355 | SMK | 0.31 KM |
| Needham Market | 7354 | NMT | 7.24 KM |
Nearby Listings
| Address | Price | Type | Score | Distance |
|---|---|---|---|---|
| Victoria Road, Stowmarket, Suffolk, IP14 | £ 240,000 | BUY | 7 / 10 | 0.00 KM |
| Victoria Road, STOWMARKET | £ 200,000 | BUY | Unknown | 0.00 KM |
| Victoria Road, Stowmarket | £ 190,000 | BUY | 7 / 10 | 0.00 KM |
| Victoria Road, Stowmarket | £ 280,000 | BUY | 7 / 10 | 0.02 KM |
| Victoria Road, Stowmarket, IP14 | £ 274,000 | BUY | 7 / 10 | 0.06 KM |
Nearby Properties
| Address | Price | Distance |
|---|---|---|
| 49 Victoria Road | £ 113,000 | 0.00 KM |
| 26 Victoria Road | £ 160,000 | 0.00 KM |
| 19 Victoria Road | £ 70,000 | 0.00 KM |
| 60 Victoria Road | £ 119,950 | 0.00 KM |
| 17 Victoria Road | £ 160,000 | 0.00 KM |