Millers Terrace, London, E8
By Element Properties & Co
£ 1,800,000
Reviews
3 out of 5 stars
Element Properties & Co says ..
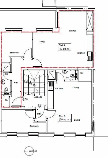
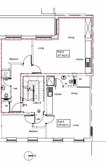
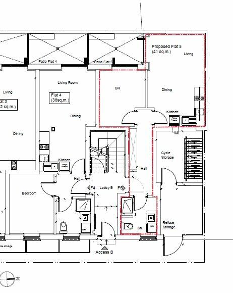
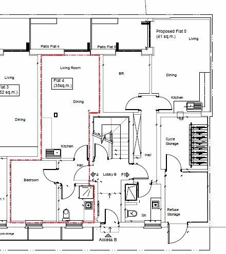
Element Properties & Co. are proud to present this INVESTMENT OPPORTUNITY; comprising of a freehold block consisting of 5 x 1 bedroom apartments, finished to a very high standard. Boasting a total of 212 SQM of internal apartment space (excluding communal areas), the conversion ha...
Property Oracle says ..
This property is listed as a freehold block of five, one-bedroom apartments located in the Shacklewell area of Hackney, East London. The listing emphasizes it as an investment opportunity, highlighting the high-quality finishes of the flats. The location is convenient, with nearby Overground stations providing good transport links and several well-regarded schools within walking distance. The provided photographs showcase a modern and well-maintained exterior and interior, particularly within the apartment units. However, the minimal land associated with the property (limited to small patio areas and planter boxes) should be noted. While the list price of £1,800,000 is significant, its justification as an investment property requires a thorough comparison with similar offerings in the area to determine the value in relation to rental income and potential capital appreciation. The property appears to be a modern conversion project, offering a potentially attractive investment opportunity for buyers interested in a turn-key property investment, in a desirable London location. Further due diligence, including professional surveys, is crucial to verify the structural integrity of the property and its investment potential.
Therefore, we give this property 6 / 10. *Disclaimer: This is our option and does constitute a recommendation or financial advice. Do your own research. *
- Price
- 7
- Condition
- 8
- Location
- 7
- Land
- 2
- Bedrooms
- 5
- Bathrooms
- 5
- Sqft (est)
- 1,187.91
The heatmap indicates the level of crime in the area. The color of the heatmap indicates the crime severity and recency.
Metrics Year-on-Year
- Average area value
- 925,000.00 £Increased by 54.96 %
- Est sale value
- 1,078,622.28 £Increased by 40.12 %
- Average area rental value
- 3,065.00 £/moIncreased by 17.66 %
- Est letting value
- 3,563.73 £/moIncreased by 50.00 %
- Est rental Yield
- 3.98 %Decreased by 24.05 %
- Crime Rate
- 12.00 %Unchanged by 0.00 %
Agent Activity
Element Properties & Co created the listing.
Nearby Schools
| Name | Type | Ofsted | Distance |
|---|---|---|---|
| Halley House School | Free Schools | Good | 0.23 KM |
| Shacklewell Primary School | Community School | Outstanding | 0.26 KM |
| Colvestone Primary School | Community School | Good | 0.29 KM |
| The Petchey Academy | Academy Sponsor Led | Good | 0.30 KM |
| Princess May Primary School | Community School | Good | 0.36 KM |
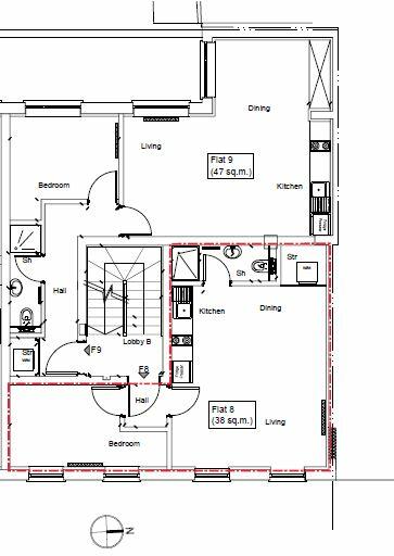
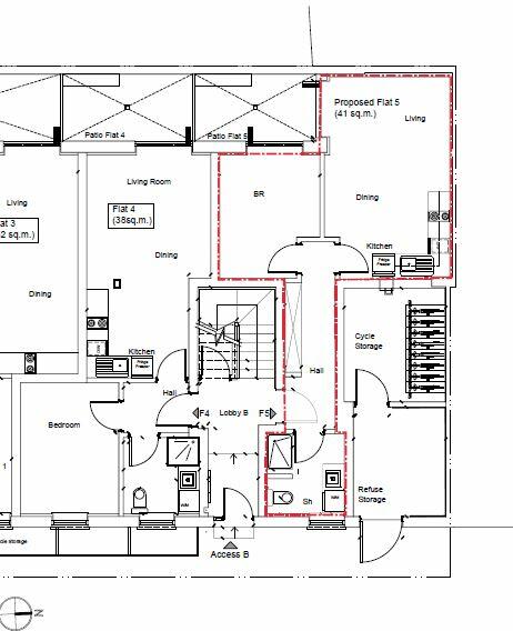
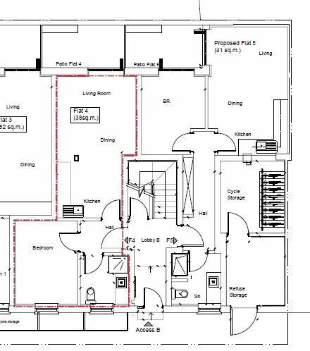
Images
Nearby Streets
| Name | Average Price | Average Sqft | Distance |
|---|---|---|---|
| Truman's Road | £ 0 | 0 | 0.00 KM |
| Shacklewell Lane | £ 0 | 0 | 0.00 KM |
| Birkbeck Road | £ 0 | 0 | 0.00 KM |
| Birkbeck Mews | £ 0 | 0 | 0.00 KM |
| Wordsworth Road | £ 0 | 0 | 0.00 KM |
Nearby Transport
| Name | NLC | TLC | Distance |
|---|---|---|---|
| Dalston Kingsland | 1429 | DLK | 0.41 KM |
| Dalston Junction | 1443 | DLJ | 0.62 KM |
| Rectory Road | 6967 | REC | 1.02 KM |
| Haggerston | 1022 | HGG | 1.45 KM |
| Stoke Newington | 6934 | SKW | 1.52 KM |
Nearby Listings
| Address | Price | Type | Score | Distance |
|---|---|---|---|---|
| Millers Terrace, London, E8 | £ 1,800,000 | BUY | 6 / 10 | 0.00 KM |
| Art Mansions, Millers Terrace, Dalston, London, E8 | £ 350,000 | BUY | 7 / 10 | 0.02 KM |
| Millers Terrace, Dalston | £ 895,000 | BUY | 8 / 10 | 0.04 KM |
| Stoke Newington Road, London, N16 | £ 400,000 | BUY | 6 / 10 | 0.05 KM |
| Dunn Street, London | £ 550,000 | BUY | 7 / 10 | 0.07 KM |
Nearby Properties
| Address | Price | Distance |
|---|---|---|
| 78 Stoke Newington Road | £ 95,000 | 0.09 KM |
| 56a Stoke Newington Road | £ 400,000 | 0.09 KM |
| 2c Dunn Street | £ 410,000 | 0.15 KM |
| 46 Alvington Crescent | £ 750,000 | 0.18 KM |
| 54 Alvington Crescent | £ 285,000 | 0.18 KM |