Fine & Country says ..
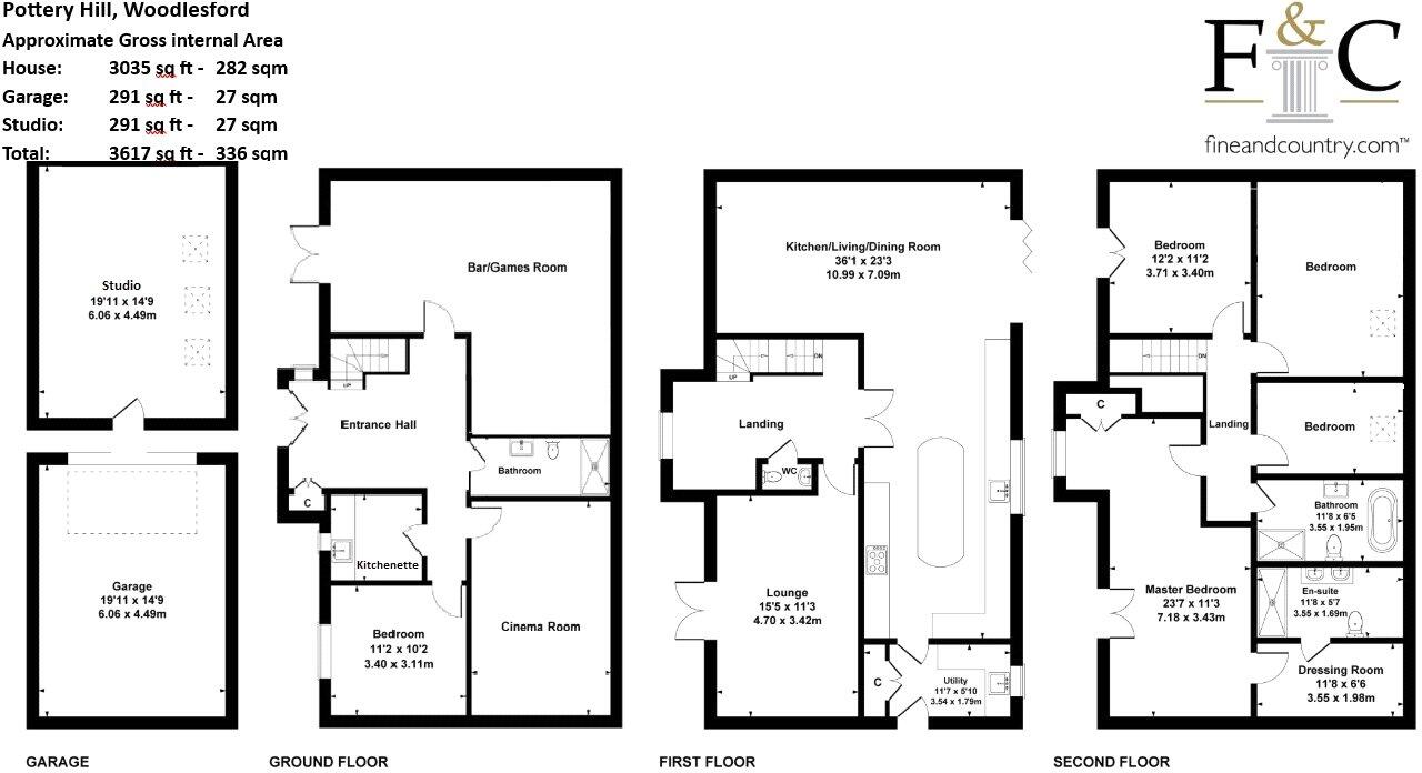
This stunning five bedroom property is set to be finished to the highest standard, offering contemporary style modern day living with spacious accommodation extending to 3,617 sq ft. This wonderful home also has the added advantage of an annex above the garage.
Property Oracle says ..
Therefore, we give this property 7 / 10. *Disclaimer: This is our option and does constitute a recommendation or financial advice. Do your own research. *
- Price
- 9
- Condition
- 9
- Location
- 7
- Land
- 6
- Bedrooms
- 5
- Bathrooms
- 3
- Sqft (est)
- 3,617.00
The heatmap indicates the level of crime in the area. The color of the heatmap indicates the crime severity and recency.
Metrics Year-on-Year
- Average area value
- 488,600.00 £Decreased by 6.01 %
- Est sale value
- 2,275,093.00 £Increased by 9.01 %
- Average area rental value
- 1,814.00 £/moIncreased by 6.02 %
- Est letting value
- 7,234.00 £/moIncreased by 100.00 %
- Est rental Yield
- 4.46 %Increased by 12.91 %
- Crime Rate
- 20.00 %Unchanged by 0.00 %
from 519,839.00 £
from 2,087,009.00 £
from 1,711.00 £/mo
from 3,617.00 £/mo
from 3.95 %
from 20.00 %
Agent Activity
Fine & Country created the listing.
Nearby Schools
| Name | Type | Ofsted | Distance |
|---|---|---|---|
| Woodlesford Primary School | Community School | Requires improvement | 0.39 KM |
| Oulton Primary School | Community School | Requires improvement | 1.55 KM |
| Royds Academy | Academy Sponsor Led | 2.91 KM | |
| Swillington Primary School | Academy Converter | Good | 3.17 KM |
| Rothwell St Mary'S Rc Primary School | Voluntary Aided School | Outstanding | 3.28 KM |
Images
Nearby Streets
| Name | Average Price | Average Sqft | Distance |
|---|---|---|---|
| Bullough Lane | £ 0 | 0 | 0.00 KM |
| Pavilion Gardens | £ 0 | 0 | 0.00 KM |
| Coniston Way | £ 424,998 | 0 | 0.00 KM |
| Rowan Court | £ 0 | 0 | 0.00 KM |
| Chapel Yard | £ 0 | 0 | 0.00 KM |
Nearby Transport
| Name | NLC | TLC | Distance |
|---|---|---|---|
| Woodlesford | 8578 | WDS | 0.33 KM |
| Cross Gates | 8473 | CRG | 5.17 KM |
| Normanton | 8528 | NOR | 6.92 KM |
| Garforth | 8474 | GRF | 8.10 KM |
| Outwood | 8309 | OUT | 8.71 KM |
Nearby Listings
| Address | Price | Type | Score | Distance |
|---|---|---|---|---|
| Pottery Hill, Woodlesford | £ 919,995 | BUY | 7 / 10 | 0.00 KM |
| The Bungalow, Pottery Lane, Woodlesford, Leeds, West Yorkshire | £ 400,000 | BUY | 6 / 10 | 0.05 KM |
| The Locks, Pottery Lane, Woodlesford | £ 270,000 | BUY | 7 / 10 | 0.06 KM |
| The Locks, Woodlesford, Leeds, West Yorkshire | £ 120,000 | BUY | 5 / 10 | 0.06 KM |
| The Locks, Woodlesford, Leeds | £ 165,000 | BUY | 6 / 10 | 0.07 KM |
Nearby Properties
| Address | Price | Distance |
|---|---|---|
| 5 Pottery Lane | £ 265,750 | 0.01 KM |
| 3 Pottery Lane | £ 118,000 | 0.01 KM |
| 58 The Locks | £ 190,000 | 0.10 KM |
| 29 The Locks | £ 160,000 | 0.10 KM |
| 7 The Locks | £ 209,995 | 0.10 KM |