ST
Thornhill Road, Croydon, CR0
By Streets Ahead
£ 250,000
Reviews
3 out of 5 stars
Streets Ahead says ..
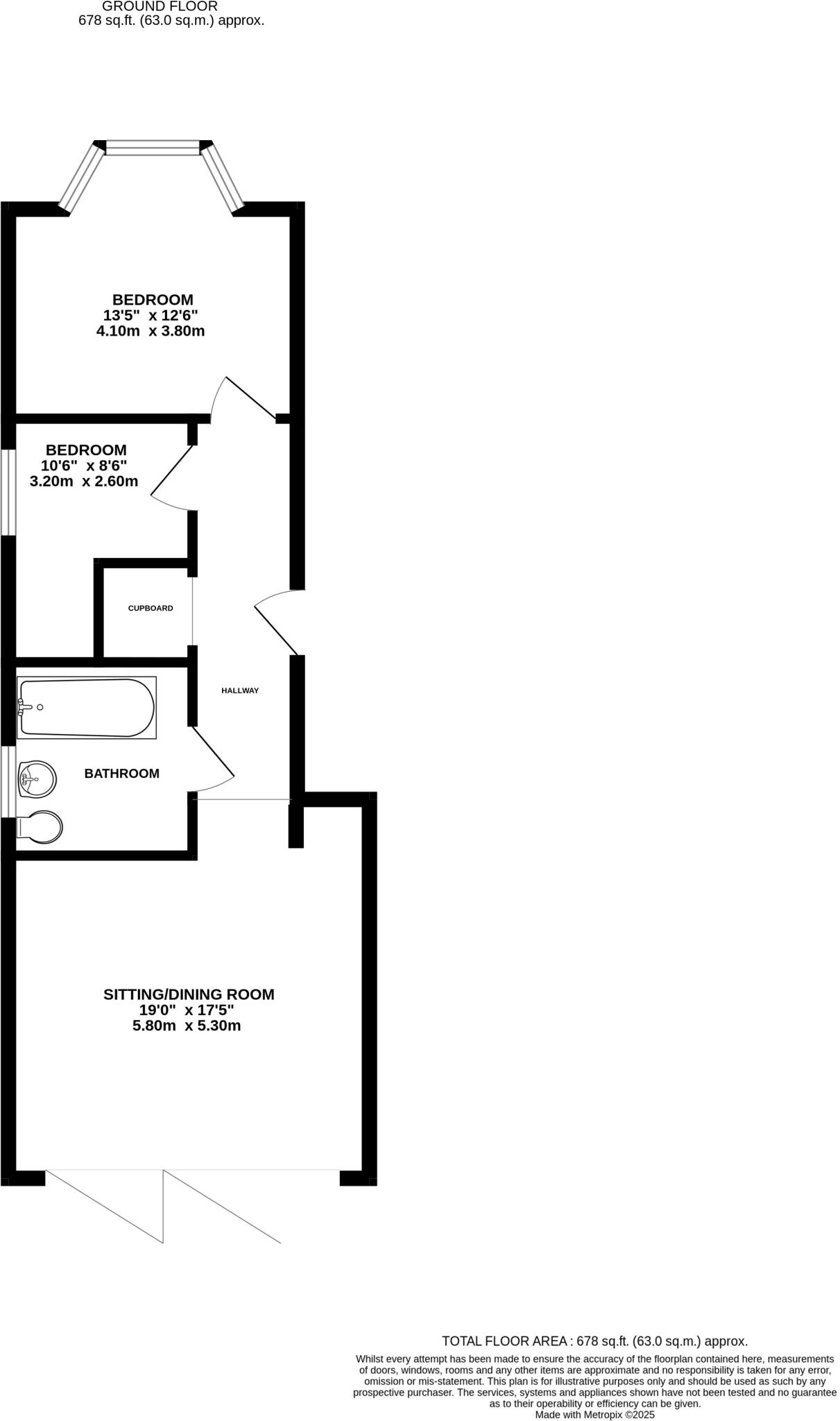
Superb new development of four conversions and four new build apartments aswell as an attached newly built three bedroom family home. Ideally located within easy access of Croydon Town Centre offering schooling, shopping facilities and train and tram links on this quiet side road.
Property Oracle says ..
Therefore, we give this property 6 / 10. *Disclaimer: This is our option and does constitute a recommendation or financial advice. Do your own research. *
- Price
- 7
- Condition
- 8
- Location
- 7
- Land
- 3
- Bedrooms
- 1
- Bathrooms
- 1
The heatmap indicates the level of crime in the area. The color of the heatmap indicates the crime severity and recency.
Metrics Year-on-Year
- Average area value
- 333,333.00 £Decreased by 1.66 %
- Average area rental value
- 1,765.00 £/moIncreased by 9.29 %
- Est rental Yield
- 6.35 %Increased by 11.01 %
- Crime Rate
- 8.00 %Unchanged by 0.00 %
from 338,970.00 £
from 1,615.00 £/mo
from 5.72 %
from 8.00 %
Agent Activity
Streets Ahead created the listing.
Nearby Schools
| Name | Type | Ofsted | Distance |
|---|---|---|---|
| St Mary'S Catholic High School | Voluntary Aided School | Good | 0.46 KM |
| Gingerbread Corner Children'S Centre | Children's Centre Linked Site | 0.61 KM | |
| Chestnut Park Primary School | Academy Sponsor Led | Outstanding | 0.62 KM |
| Harris Invictus Academy Croydon | Free Schools | Outstanding | 0.67 KM |
| St. Mary'S Catholic Junior School | Academy Sponsor Led | Good | 0.68 KM |
Images
Nearby Streets
| Name | Average Price | Average Sqft | Distance |
|---|---|---|---|
| Thornhill Road | £ 0 | 0 | 0.00 KM |
| Stanton Road | £ 0 | 0 | 0.00 KM |
| Rushbridge Close | £ 0 | 0 | 0.00 KM |
| Hartley Road | £ 275,000 | 0 | 0.00 KM |
| Limes Place | £ 0 | 0 | 0.00 KM |
Nearby Transport
| Name | NLC | TLC | Distance |
|---|---|---|---|
| West Croydon | 5411 | WCY | 0.75 KM |
| East Croydon | 5355 | ECR | 1.25 KM |
| Selhurst | 5434 | SRS | 1.50 KM |
| Thornton Heath | 5388 | TTH | 1.59 KM |
| South Croydon | 5410 | SCY | 2.49 KM |
Nearby Listings
| Address | Price | Type | Score | Distance |
|---|---|---|---|---|
| Thornhill Road, Croydon, CR0 | £ 250,000 | BUY | 6 / 10 | 0.00 KM |
| Willis Road, Croydon, CR0 | £ 375,000 | BUY | Unknown | 0.01 KM |
| Thornhill Road, Croydon | £ 475,000 | BUY | 5 / 10 | 0.05 KM |
| Willis Road, Croydon, CR0 | £ 400,000 | BUY | 6 / 10 | 0.06 KM |
| Thornhill Road, Croydon, CR0 | £ 469,950 | BUY | Unknown | 0.07 KM |
Nearby Properties
| Address | Price | Distance |
|---|---|---|
| 9a Thornhill Road | £ 240,000 | 0.01 KM |
| 23b Thornhill Road | £ 74,950 | 0.01 KM |
| 35 Thornhill Road | £ 475,000 | 0.01 KM |
| 5d Thornhill Road | £ 295,000 | 0.01 KM |
| 5c Thornhill Road | £ 215,000 | 0.01 KM |