St. James Street, Narberth
By West Wales Properties
£ 270,000
Reviews
3 out of 5 stars
West Wales Properties says ..
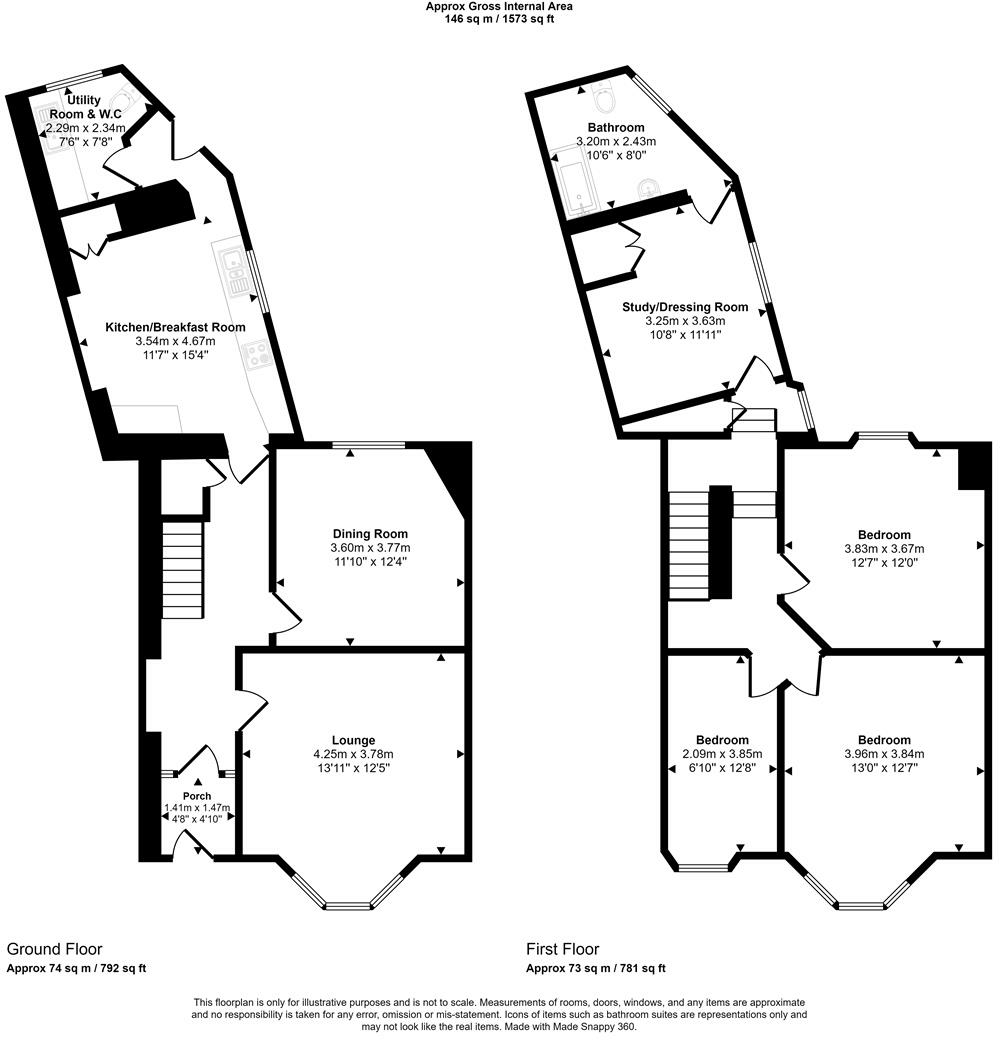
NO FORWARD CHAIN ......... An opportunity to acquire a three/four bedroom house that is beautifully presented, full of charm and character offering flexible living accommodation . Early viewing is highly recommended to appreciate this well appointed home that offers ample family accommodation sit...
Property Oracle says ..
This three-bedroom terraced house in Narberth, Pembrokeshire, offers a charming blend of character and modern conveniences. Situated on St. James Street, it benefits from a central location within the town, providing easy access to shops, restaurants, and amenities. The property boasts a traditional layout, with three bedrooms spread across three floors, creating ample living space for a family.
The property features a kitchen that shows signs of recent modernization, alongside a newly updated bathroom. However, some areas of the property show some signs of age and might benefit from some cosmetic upgrades or minor renovations, such as updating certain flooring. The main living areas, including the living room and dining room are well proportioned and comfortable, showcasing the traditional style of the house. The exterior of the property is quite charming with a vibrant red door, it sits in a row of terraced houses with varied colours, giving the street an appealing and diverse feel.
The garden, while relatively modest in size, is a welcome addition, providing a small outdoor space for relaxation. The lack of detailed square footage information of the house and plot limits a precise comparative market analysis. However, based on the available data from nearby listings, the list price appears to be situated competitively within the local market, but further evaluation of specific property sizes in the area is needed to ascertain a concrete assessment of the property’s value per square foot. Overall, this property presents a good opportunity for those seeking a comfortable family home in a desirable market town setting.
Therefore, we give this property 6 / 10. *Disclaimer: This is our option and does constitute a recommendation or financial advice. Do your own research. *
- Price
- 7
- Condition
- 6
- Location
- 8
- Land
- 3
- Bedrooms
- 3
- Bathrooms
- 1
- Sqft (est)
- 1,573.00
The heatmap indicates the level of crime in the area. The color of the heatmap indicates the crime severity and recency.
Metrics Year-on-Year
- Average area value
- 140,000.00 £Decreased by 43.56 %
- Est sale value
- 501,787.00 £Increased by 26.59 %
- Average area rental value
- 807.00 £/moDecreased by 3.00 %
- Est letting value
- 1,573.00 £/mo
- Est rental Yield
- 6.92 %Increased by 72.14 %
- Crime Rate
- 38.00 %Unchanged by 0.00 %
Agent Activity
West Wales Properties created the listing.
Nearby Schools
| Name | Type | Ofsted | Distance |
|---|---|---|---|
| Landsker Education | Welsh Establishment | 0.48 KM | |
| Narberth Cp School | Welsh Establishment | 0.56 KM | |
| Templeton C.P. School | Welsh Establishment | 2.71 KM | |
| Redhill High School | Welsh Establishment | 5.91 KM | |
| Brynconin Cp | Welsh Establishment | 6.79 KM |
Images
Nearby Streets
| Name | Average Price | Average Sqft | Distance |
|---|---|---|---|
| The Crescent | £ 425,000 | 0 | 0.00 KM |
| Redstone Court | £ 0 | 0 | 0.00 KM |
| Church Street | £ 170,000 | 0 | 0.00 KM |
| Moorfield Road | £ 450,000 | 0 | 0.00 KM |
| Jesse Road | £ 316,667 | 0 | 0.00 KM |
Nearby Transport
| Name | NLC | TLC | Distance |
|---|---|---|---|
| Narberth | 4098 | NAR | 1.38 KM |
| Clunderwen | 4070 | CUW | 4.59 KM |
| Kilgetty | 4083 | KGT | 8.00 KM |
| Saundersfoot | 4108 | SDF | 9.00 KM |
Nearby Listings
| Address | Price | Type | Score | Distance |
|---|---|---|---|---|
| St. James Street, Narberth | £ 260,000 | BUY | 7 / 10 | 0.00 KM |
| St. James Street, Narberth | £ 270,000 | BUY | 6 / 10 | 0.00 KM |
| The Crescent, Narberth | £ 425,000 | BUY | 7 / 10 | 0.07 KM |
| St. James Street, Narberth, Pembrokeshire, SA67 | £ 325,000 | BUY | Unknown | 0.14 KM |
| St. James Street, Narberth, SA67 | £ 265,000 | BUY | Unknown | 0.14 KM |
Nearby Properties
| Address | Price | Distance |
|---|---|---|
| 4 The Crescent | £ 220,000 | 0.07 KM |
| 3 The Crescent | £ 187,500 | 0.07 KM |
| 1 The Crescent | £ 168,000 | 0.07 KM |
| Bryngwyn | £ 215,000 | 0.07 KM |
| 5 The Crescent | £ 183,000 | 0.07 KM |