St Augustines Road, Bessacarr, Doncaster, DN4
By The Property Hive
£ 365,000
Reviews
3 out of 5 stars
The Property Hive says ..
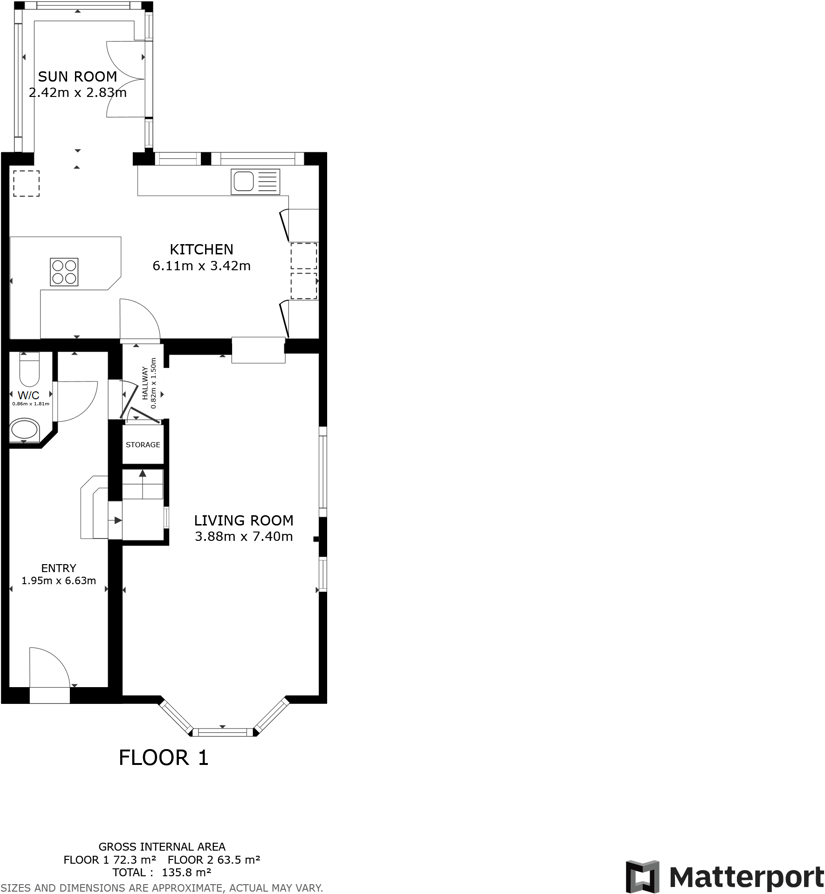
Perfectly located for excellent schools. Within walking distance of Doncaster Racecourse, Lakeside, Doncaster Dome, Herten Triangle and supermarkets. The property benefits from Solar panels which are owned outright. CCTV with 3 cameras covering all external aspects of the property. Underfloor ...
Property Oracle says ..
This four-bedroom, three-bathroom detached property located on St Augustine’s Road, Bessacarr, Doncaster, presents a well-maintained and modernised family home. The property boasts a recently updated kitchen with modern appliances, a sunroom, and multiple updated bathrooms. The property includes a hot tub within a rear garden. The home’s interior is presented in modern decor. The location in Bessacarr offers convenient access to Doncaster town centre, several schools, including primary and secondary schools with good Ofsted ratings and other local amenities. While the exact plot size is not provided, the photographs show a decent-sized garden area. The asking price of £365,000 appears reasonable, reflecting the property’s condition and its position in the Bessacarr area, subject to obtaining more detailed information on comparable properties including accurate square footage. The absence of a precise plot size in the provided information prevents a more precise valuation assessment. Further investigation into comparable properties and an in-person inspection is recommended for potential buyers to verify the property’s condition and make a fully informed decision. The available information about other homes on St Augustines Road suggest it may be a high-demand area. However, further data, such as the actual square footage of the property, and more comparable properties would help to give a more confident property valuation and price per square foot analysis.
Therefore, we give this property 7 / 10. *Disclaimer: This is our option and does constitute a recommendation or financial advice. Do your own research. *
- Price
- 7
- Condition
- 8
- Location
- 7
- Land
- 6
- Bedrooms
- 4
- Bathrooms
- 3
- Sqft (est)
- 1,461.74
The heatmap indicates the level of crime in the area. The color of the heatmap indicates the crime severity and recency.
Metrics Year-on-Year
- Average area value
- 253,662.00 £Increased by 0.21 %
- Est sale value
- 575,925.56 £Increased by 82.41 %
- Average area rental value
- 468.00 £/moDecreased by 50.48 %
- Est letting value
- 0.00 £/mo
- Est rental Yield
- 2.21 %Decreased by 50.67 %
- Crime Rate
- 3.00 %Unchanged by 0.00 %
Agent Activity
The Property Hive created the listing.
Nearby Schools
| Name | Type | Ofsted | Distance |
|---|---|---|---|
| Bessacarr Primary | Academy Converter | 0.82 KM | |
| St Peter'S Catholic Primary School | Voluntary Aided School | Good | 1.39 KM |
| Lakeside Primary Academy | Academy Converter | 1.62 KM | |
| Communication Specialist College - Doncaster | Special Post 16 Institution | Good | 1.71 KM |
| Doncaster School For The Deaf | Non-maintained Special School | Good | 1.71 KM |
Images
Nearby Streets
| Name | Average Price | Average Sqft | Distance |
|---|---|---|---|
| Gliwice Way | £ 0 | 0 | 0.00 KM |
| Sandpiper Drive | £ 0 | 0 | 0.00 KM |
| Lapwing Close | £ 0 | 0 | 0.00 KM |
| Hinburn Close | £ 200,000 | 0 | 0.00 KM |
| Sparrow Close | £ 310,000 | 0 | 0.00 KM |
Nearby Transport
| Name | NLC | TLC | Distance |
|---|---|---|---|
| Doncaster | 6417 | DON | 4.91 KM |
| Kirk Sandall | 6527 | KKS | 6.29 KM |
| Bentley (South Yorkshire) | 8352 | BYK | 6.98 KM |
Nearby Listings
| Address | Price | Type | Score | Distance |
|---|---|---|---|---|
| St Augustines Road, Bessacarr, Doncaster, DN4 | £ 365,000 | BUY | 7 / 10 | 0.00 KM |
| Bridge Road, Bessacarr, Doncaster | £ 300,000 | BUY | 5 / 10 | 0.14 KM |
| Bridge Road, Doncaster | £ 395,000 | BUY | Unknown | 0.17 KM |
| Corbridge Court, Bessacarr, Doncaster | £ 585,000 | BUY | 7 / 10 | 0.22 KM |
| St Augustines Road, Bessacarr, Doncaster, DN4 | £ 435,000 | BUY | 7 / 10 | 0.22 KM |
Nearby Properties
| Address | Price | Distance |
|---|---|---|
| 23 Princes Road | £ 165,000 | 0.12 KM |
| 6 Princes Road | £ 249,950 | 0.12 KM |
| 15 Princes Road | £ 155,000 | 0.12 KM |
| 11 Princes Road | £ 188,000 | 0.12 KM |
| 21 Princes Road | £ 291,000 | 0.12 KM |