Winkworth says ..
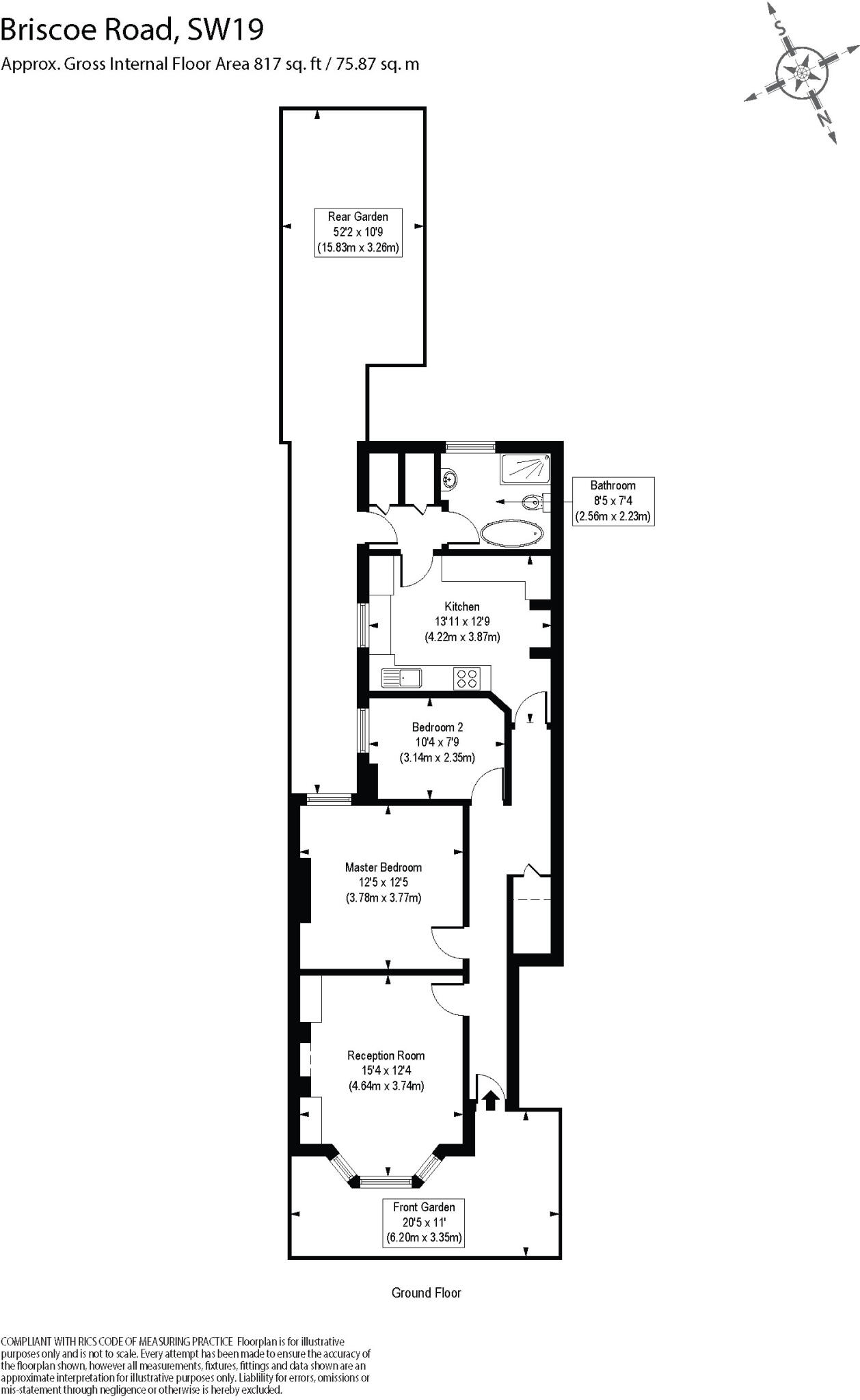
A stunning two-bedroom flat a stone's throw from Colliers Wood underground station with a private garden. The property has been well maintained offering contemporary living throughout; it comprises a large bay fronted reception room with plantation shutters and a working log burner to...
Property Oracle says ..
This is a well-presented two-bedroom apartment in a popular location. The property is in good condition and has a small garden. The price is reasonable for the area. The apartment is located on Briscoe Road in Colliers Wood, Merton, Greater London. It features one bathroom and has a square footage of 816.66. The property is an apartment. Nearby schools include Singlegate Primary School, which has an outstanding Ofsted rating. Transportation options include Haydons Road and Tooting train stations. The property is listed with Winkworth.
Therefore, we give this property 7 / 10. *Disclaimer: This is our option and does constitute a recommendation or financial advice. Do your own research. *
- Price
- 7
- Condition
- 8
- Location
- 7
- Land
- 6
- Bedrooms
- 2
- Bathrooms
- 1
- Sqft (est)
- 816.66
The heatmap indicates the level of crime in the area. The color of the heatmap indicates the crime severity and recency.
Metrics Year-on-Year
- Average area value
- 578,333.00 £Increased by 10.22 %
- Est sale value
- 577,378.62 £Increased by 13.48 %
- Average area rental value
- 2,070.00 £/moIncreased by 12.32 %
- Est letting value
- 1,633.32 £/moUnchanged by 0.00 %
- Est rental Yield
- 4.30 %Increased by 2.14 %
- Crime Rate
- 7.00 %Unchanged by 0.00 %
Agent Activity
Winkworth created the listing.
Nearby Schools
| Name | Type | Ofsted | Distance |
|---|---|---|---|
| Singlegate Primary School | Community School | Outstanding | 0.48 KM |
| St George'S Hospital Medical School | Higher Education Institutions | 0.62 KM | |
| Sellincourt Primary School | Community School | Good | 0.84 KM |
| All Saints' Cofe Primary School | Voluntary Aided School | Good | 0.86 KM |
| Garfield Primary School | Community School | Good | 0.95 KM |
Images
Nearby Streets
| Name | Average Price | Average Sqft | Distance |
|---|---|---|---|
| Douglas Court | £ 0 | 0 | 0.00 KM |
| Holmbury Court | £ 0 | 0 | 0.00 KM |
| Kiln Mews | £ 0 | 0 | 0.00 KM |
| Breakspear Gardens | £ 0 | 0 | 0.00 KM |
| East Road | £ 791,667 | 0 | 0.00 KM |
Nearby Transport
| Name | NLC | TLC | Distance |
|---|---|---|---|
| Haydons Road | 5289 | HYR | 1.48 KM |
| Tooting | 5389 | TOO | 1.64 KM |
| Earlsfield | 5584 | EAD | 2.62 KM |
| Mitcham Eastfields | 5069 | MTC | 2.83 KM |
| Wandsworth Common | 5395 | WSW | 3.04 KM |
Nearby Listings
| Address | Price | Type | Score | Distance |
|---|---|---|---|---|
| Briscoe Road, Colliers Wood | £ 550,000 | BUY | 7 / 10 | 0.00 KM |
| Briscoe Road, London, SW19 | £ 525,000 | BUY | 7 / 10 | 0.00 KM |
| Briscoe Road, London, SW19 | £ 500,000 | BUY | 6 / 10 | 0.01 KM |
| Briscoe Road, Colliers Wood/Tooting Borders | £ 525,000 | BUY | Unknown | 0.01 KM |
| Briscoe Road, London | £ 435,000 | BUY | 6 / 10 | 0.03 KM |
Nearby Properties
| Address | Price | Distance |
|---|---|---|
| 47 Briscoe Road | £ 518,000 | 0.04 KM |
| 39 Briscoe Road | £ 100,000 | 0.04 KM |
| 45 Briscoe Road | £ 205,000 | 0.04 KM |
| 37 Briscoe Road | £ 220,000 | 0.04 KM |
| 63 Briscoe Road | £ 237,000 | 0.04 KM |