Barnard Marcus says ..
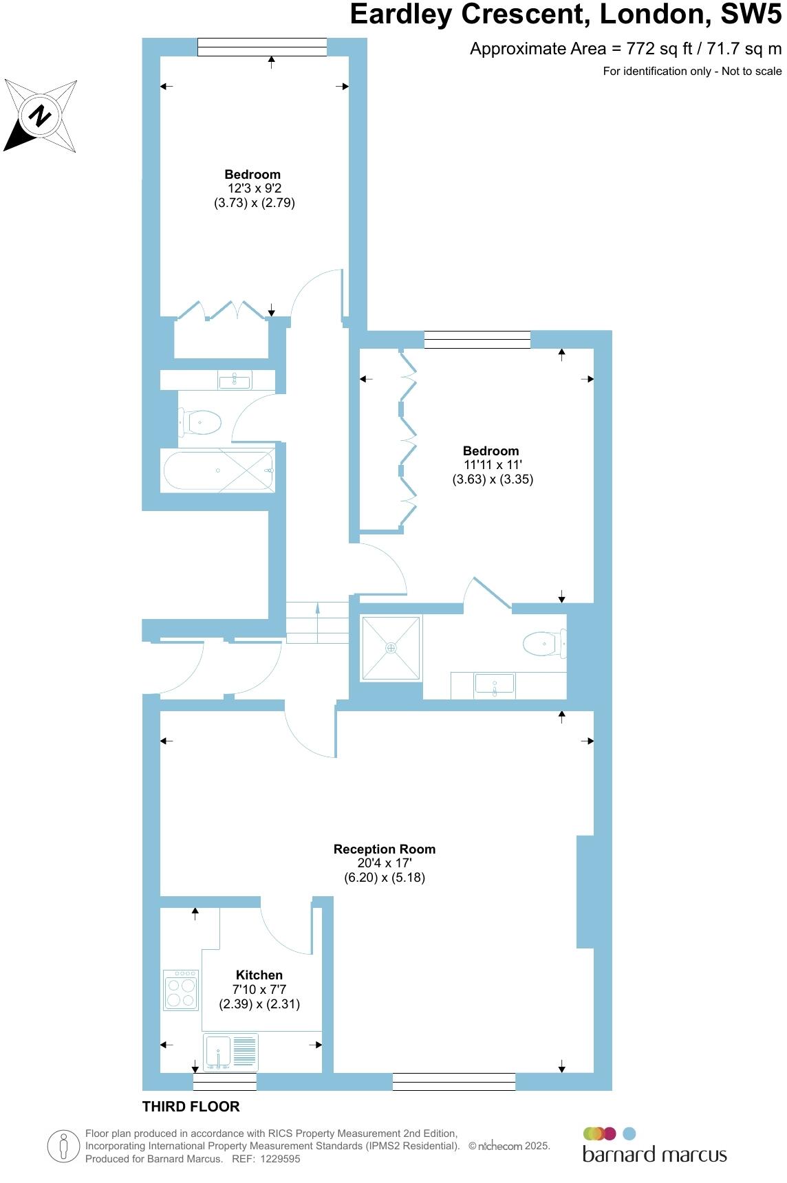
Fantastic two-bedroom two-bathroom apartment located in a well-maintained Victorian conversion.
Property Oracle says ..
This two-bedroom, two-bathroom flat is located in the sought-after Earl’s Court area of London. The property benefits from a convenient location near West Brompton Underground station, providing excellent transport links to the rest of the city. The surrounding area offers a variety of amenities, including shops, restaurants, and parks. The property itself is presented in a clean and well-maintained condition, as shown in the pictures. However, the kitchen and bathrooms look somewhat dated and could benefit from a modern update. While the flat offers a comfortable living space, a significant drawback is the lack of a garden or any substantial outdoor space. The list price of £900,000 appears to be relatively fair for Earl’s Court, but its competitiveness would improve with a provided price per sq ft for further comparison with similar properties in the area. Overall, this property would be a suitable purchase for those seeking convenience and access to amenities in a popular London location, but who are not seeking luxurious finishes or outdoor space. The absence of plot size information makes complete property analysis somewhat difficult.
Therefore, we give this property 6 / 10. *Disclaimer: This is our option and does constitute a recommendation or financial advice. Do your own research. *
- Price
- 7
- Condition
- 7
- Location
- 9
- Land
- 1
- Bedrooms
- 2
- Bathrooms
- 2
- Sqft (est)
- 771.77
The heatmap indicates the level of crime in the area. The color of the heatmap indicates the crime severity and recency.
Metrics Year-on-Year
- Average area value
- 1,927,500.00 £Increased by 42.81 %
- Est sale value
- 1,129,871.28 £Decreased by 1.94 %
- Average area rental value
- 2,284.00 £/moIncreased by 3.72 %
- Est letting value
- 771.77 £/moDecreased by 50.00 %
- Est rental Yield
- 1.42 %Decreased by 27.55 %
- Crime Rate
- 3.00 %Unchanged by 0.00 %
Agent Activity
Barnard Marcus created the listing.
Nearby Schools
| Name | Type | Ofsted | Distance |
|---|---|---|---|
| St Cuthbert With St Matthias Cofe Primary School | Voluntary Aided School | Good | 0.24 KM |
| St Cuthbert With St Matthias Ce Primary School And Earl'S Court Children'S Centre | Children's Centre | 0.24 KM | |
| Snowflake School | Other Independent Special School | Outstanding | 0.47 KM |
| Fulham Primary School | Academy Converter | Good | 0.71 KM |
| The Fulham Boys School | Free Schools | Good | 0.83 KM |
Images
Nearby Streets
| Name | Average Price | Average Sqft | Distance |
|---|---|---|---|
| Kempsford Gardens | £ 0 | 0 | 0.00 KM |
| Old Brompton Road | £ 0 | 0 | 0.00 KM |
| West Road | £ 0 | 0 | 0.00 KM |
| Wharfedale Street | £ 0 | 0 | 0.00 KM |
| Thaxton Road | £ 0 | 0 | 0.00 KM |
Nearby Transport
| Name | NLC | TLC | Distance |
|---|---|---|---|
| West Brompton | 8875 | WBP | 0.27 KM |
| Kensington (Olympia) | 3092 | KPA | 1.86 KM |
| Imperial Wharf | 9586 | IMW | 2.16 KM |
| Shepherd'S Bush | 9587 | SPB | 2.99 KM |
| Wandsworth Town | 5576 | WNT | 3.28 KM |
Nearby Listings
| Address | Price | Type | Score | Distance |
|---|---|---|---|---|
| Eardley Crescent, London | £ 900,000 | BUY | 6 / 10 | 0.00 KM |
| Eardley Crescent, London | £ 775,000 | BUY | 7 / 10 | 0.00 KM |
| Eardley Crescent, London | £ 1,000,000 | BUY | 8 / 10 | 0.00 KM |
| Eardley Crescent, Earls Court, SW5 | £ 475,000 | BUY | 7 / 10 | 0.01 KM |
| Eardley Crescent, Earls Court, London, SW5 | £ 975,000 | BUY | Unknown | 0.01 KM |
Nearby Properties
| Address | Price | Distance |
|---|---|---|
| 75a Eardley Crescent | £ 310,000 | 0.00 KM |
| 63 Eardley Crescent | £ 200,000 | 0.00 KM |
| 71 Eardley Crescent | £ 1,400,000 | 0.00 KM |
| 43a Warwick Road | £ 109,000 | 0.08 KM |
| 28h Eardley Crescent | £ 345,000 | 0.09 KM |