Acorn New Homes says ..
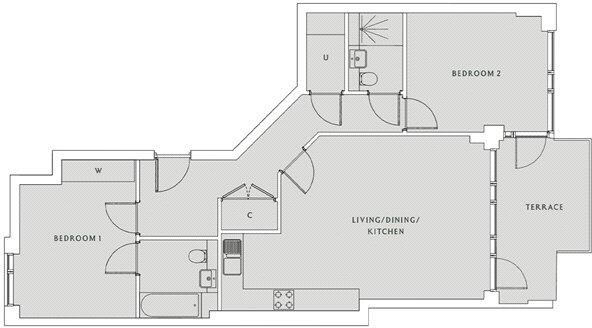
Notus Point is an exceptional new development offering this luxurious two-bedroom, two-bathroom apartment situated on the first floor. This apartment features a utility room, private terrace and an allocated parking space. Ideally situated just moments away from Bromley North Station ...
Property Oracle says ..
Therefore, we give this property 6 / 10. *Disclaimer: This is our option and does constitute a recommendation or financial advice. Do your own research. *
- Price
- 7
- Condition
- 9
- Location
- 8
- Land
- 3
- Bedrooms
- 2
- Bathrooms
- 2
- Sqft (est)
- 691.00
The heatmap indicates the level of crime in the area. The color of the heatmap indicates the crime severity and recency.
Metrics Year-on-Year
- Average area value
- 591,923.00 £Increased by 11.40 %
- Est sale value
- 415,982.00 £Increased by 7.89 %
- Average area rental value
- 1,705.00 £/moDecreased by 9.16 %
- Est letting value
- 691.00 £/moUnchanged by 0.00 %
- Est rental Yield
- 3.46 %Decreased by 18.40 %
- Crime Rate
- 20.00 %Unchanged by 0.00 %
from 531,371.00 £
from 385,578.00 £
from 1,877.00 £/mo
from 691.00 £/mo
from 4.24 %
from 20.00 %
Agent Activity
Acorn New Homes created the listing.
Nearby Schools
| Name | Type | Ofsted | Distance |
|---|---|---|---|
| Ashgrove School Ltd | Other Independent School | Requires improvement | 0.88 KM |
| The Tutorial Foundation | Other Independent Special School | Good | 0.89 KM |
| Parish Church Of England Primary School | Academy Converter | 0.97 KM | |
| St Joseph'S Catholic Primary School | Academy Converter | Good | 1.07 KM |
| St Mark'S Church Of England Primary School | Academy Converter | Good | 1.11 KM |
Images
Nearby Streets
| Name | Average Price | Average Sqft | Distance |
|---|---|---|---|
| White Hart Slip | £ 0 | 0 | 0.00 KM |
| Gordon Way | £ 0 | 0 | 0.00 KM |
| Simpsons Road | £ 340,000 | 0 | 0.00 KM |
| Glebe Knoll | £ 0 | 0 | 0.00 KM |
| St. Mark's Road | £ 0 | 0 | 0.00 KM |
Nearby Transport
| Name | NLC | TLC | Distance |
|---|---|---|---|
| Bromley North | 5096 | BMN | 0.10 KM |
| Sundridge Park | 5155 | SUP | 0.83 KM |
| Bromley South | 5064 | BMS | 0.83 KM |
| Shortlands | 5084 | SRT | 1.74 KM |
| Grove Park | 5139 | GRP | 2.65 KM |
Nearby Listings
| Address | Price | Type | Score | Distance |
|---|---|---|---|---|
| Tweedy Road, Bromley | £ 545,000 | BUY | 6 / 10 | 0.00 KM |
| Tweedy Road, Bromley | £ 435,000 | BUY | 6 / 10 | 0.00 KM |
| Tweedy Road, Bromley | £ 475,000 | BUY | 7 / 10 | 0.00 KM |
| Tweedy Road, Bromley | £ 599,995 | BUY | 7 / 10 | 0.00 KM |
| Tweedy Road, Bromley | £ 447,500 | BUY | 6 / 10 | 0.00 KM |
Nearby Properties
| Address | Price | Distance |
|---|---|---|
| 12 South Street | £ 280,000 | 0.13 KM |
| 7 South Street | £ 249,995 | 0.13 KM |
| 10 South Street | £ 412,500 | 0.13 KM |
| 14 South Street | £ 470,000 | 0.13 KM |
| 11 South Street | £ 280,000 | 0.13 KM |