Foxtons says ..
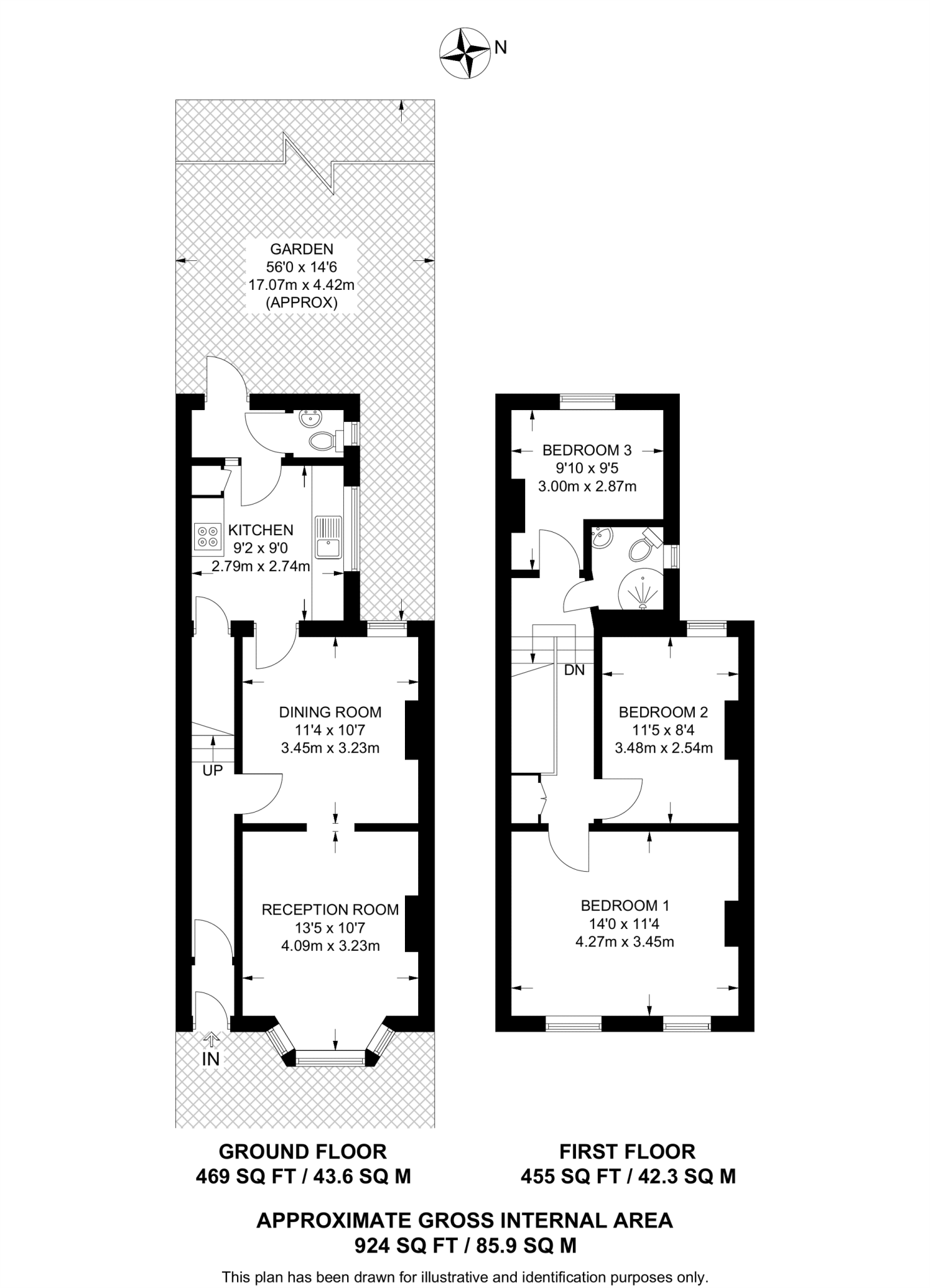
Conveniently located close to a number of transport links, this fantastic 3 bedroom house offers 2 spacious reception rooms, well-proportioned bedrooms and a private garden.
Property Oracle says ..
The property is an end-of-terrace house located in Selhurst, Croydon, with 3 bedrooms and 1 bathroom. It is conveniently located near schools and transportation. However, the property requires significant renovation and the garden needs landscaping. The price is slightly above the average price per square foot for the area, but comparable to nearby listings.
Therefore, we give this property 5 / 10. *Disclaimer: This is our option and does constitute a recommendation or financial advice. Do your own research. *
- Price
- 6
- Condition
- 3
- Location
- 7
- Land
- 5
- Bedrooms
- 3
- Bathrooms
- 1
- Sqft (est)
- 924.62
The heatmap indicates the level of crime in the area. The color of the heatmap indicates the crime severity and recency.
Metrics Year-on-Year
- Average area value
- 333,333.00 £Decreased by 1.66 %
- Est sale value
- 378,169.58 £Decreased by 4.88 %
- Average area rental value
- 1,765.00 £/moIncreased by 9.29 %
- Est letting value
- 1,849.24 £/moUnchanged by 0.00 %
- Est rental Yield
- 6.35 %Increased by 11.01 %
- Crime Rate
- 4.00 %Unchanged by 0.00 %
Agent Activity
Foxtons created the listing.
Nearby Schools
| Name | Type | Ofsted | Distance |
|---|---|---|---|
| Broadmead Primary School | Academy Sponsor Led | Requires improvement | 0.07 KM |
| The Crescent Primary School | Academy Converter | Good | 0.18 KM |
| Selhurst Children'S Centre | Children's Centre | 0.35 KM | |
| Brit School For Performing Arts And Technology | City Technology College | Good | 0.36 KM |
| Selhurst Nursery School And Children'S Centre | Local Authority Nursery School | Requires improvement | 0.36 KM |
Images
Nearby Streets
| Name | Average Price | Average Sqft | Distance |
|---|---|---|---|
| Limes Place | £ 0 | 0 | 0.00 KM |
| Tait Road | £ 310,000 | 0 | 0.00 KM |
| Amersham Road | £ 0 | 0 | 0.00 KM |
| Wisbeach Road | £ 0 | 0 | 0.00 KM |
| Rushbridge Close | £ 0 | 0 | 0.00 KM |
Nearby Transport
| Name | NLC | TLC | Distance |
|---|---|---|---|
| Selhurst | 5434 | SRS | 0.63 KM |
| East Croydon | 5355 | ECR | 1.34 KM |
| West Croydon | 5411 | WCY | 1.56 KM |
| Thornton Heath | 5388 | TTH | 1.56 KM |
| Norwood Junction | 5376 | NWD | 2.12 KM |
Nearby Listings
| Address | Price | Type | Score | Distance |
|---|---|---|---|---|
| Sydenham Road, Croydon, CR0 | £ 400,000 | BUY | 5 / 10 | 0.00 KM |
| Sydenham Road, CROYDON | £ 290,000 | BUY | 5 / 10 | 0.03 KM |
| Sydenham Road, Croydon, CR0 | £ 475,000 | BUY | Unknown | 0.04 KM |
| Burdett Road, Croydon, CR0 | £ 500,000 | BUY | 7 / 10 | 0.08 KM |
| Sydenham Road, Croydon, CR0 | £ 260,000 | BUY | 5 / 10 | 0.10 KM |
Nearby Properties
| Address | Price | Distance |
|---|---|---|
| 401 Sydenham Road | £ 207,000 | 0.03 KM |
| 369 Sydenham Road | £ 320,000 | 0.03 KM |
| 367 Sydenham Road | £ 270,000 | 0.03 KM |
| 389 Sydenham Road | £ 175,000 | 0.03 KM |
| 381a Sydenham Road | £ 375,000 | 0.03 KM |