YO
Roughwood Road, Rotherham, S61
By Yopa
£ 180,000
Yopa says ..
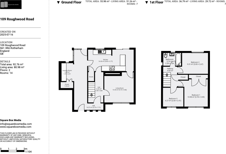
Situated in a popular residential area within walking distance of local amenities this well presented semi detached property is perfect for a first time buyer or growing family. The property benefits from a driveway and large private rear garden offering ample space both inside and out.
- Bedrooms
- 3
- Bathrooms
- 1
- Sqft (est)
- 998.46
The heatmap indicates the level of crime in the area. The color of the heatmap indicates the crime severity and recency.
Metrics Year-on-Year
- Average area value
- 1,363,333.00 £Increased by 35.76 %
- Est sale value
- 756,832.68 £Increased by 71.88 %
- Average area rental value
- 2,132.00 £/moIncreased by 10.07 %
- Est letting value
- 998.46 £/mo
- Est rental Yield
- 1.88 %Decreased by 18.61 %
- Crime Rate
- 11.00 %Unchanged by 0.00 %
from 1,004,229.00 £
from 440,320.86 £
from 1,937.00 £/mo
from 0.00 £/mo
from 2.31 %
from 11.00 %
Agent Activity
Yopa created the listing.
Nearby Schools
| Name | Type | Ofsted | Distance |
|---|---|---|---|
| Roughwood Primary School | Academy Converter | 0.49 KM | |
| Redscope Primary School | Academy Converter | 0.69 KM | |
| Park View Children'S Centre | Children's Centre | 0.74 KM | |
| St Bede'S Catholic Primary School | Academy Converter | Good | 0.95 KM |
| Rockingham Early Years | Children's Centre Linked Site | 1.05 KM |
Images
Nearby Streets
| Name | Average Price | Average Sqft | Distance |
|---|---|---|---|
| Morley Road | £ 0 | 0 | 0.00 KM |
| Clifford Road | £ 0 | 0 | 0.00 KM |
| Hampstead Green | £ 0 | 0 | 0.00 KM |
| Crane Drive | £ 340,000 | 0 | 0.00 KM |
| High Street | £ 313,750 | 0 | 0.00 KM |
Nearby Transport
| Name | NLC | TLC | Distance |
|---|---|---|---|
| Rotherham Central | 6676 | RMC | 3.79 KM |
| Meadowhall | 6663 | MHS | 3.87 KM |
| Elsecar | 6667 | ELR | 7.10 KM |
| Darnall | 6729 | DAN | 7.14 KM |
| Chapeltown (South Yorkshire) | 6664 | CLN | 8.42 KM |
Nearby Listings
| Address | Price | Type | Score | Distance |
|---|---|---|---|---|
| Roughwood Road, Rotherham, S61 | £ 180,000 | BUY | Unknown | 0.00 KM |
| Roughwood Road, Kimberworth, Rotherham, S61 | £ 170,000 | BUY | 6 / 10 | 0.00 KM |
| Roughwood Road, Rotherham | £ 220,000 | BUY | Unknown | 0.00 KM |
| Roughwood Road, Kimberworth | £ 160,000 | BUY | 6 / 10 | 0.14 KM |
| Birks Road, Rotherham | £ 80,000 | BUY | 6 / 10 | 0.16 KM |
Nearby Properties
| Address | Price | Distance |
|---|---|---|
| 107 Roughwood Road | £ 85,000 | 0.01 KM |
| 83 Roughwood Road | £ 221,000 | 0.01 KM |
| 87 Roughwood Road | £ 108,000 | 0.01 KM |
| 8 Sellars Road | £ 99,950 | 0.09 KM |
| 16 Sellars Road | £ 83,000 | 0.09 KM |