Romsey Road, Southampton, Hampshire
By Leaders Sales
£ 150,000
Reviews
2 out of 5 stars
Leaders Sales says ..
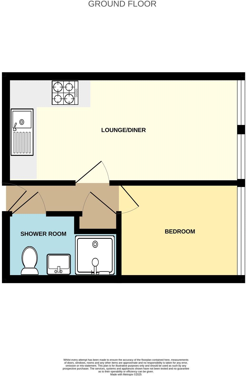
Modern and stylish, this one-bedroom apartment in Hampshire offers a contemporary living space perfect for young professionals or couples. The property boasts a spacious reception room, a well-appointed bathroom, and a sleek kitchen area. Residents can enjoy the convenience of off-street parking,...
Property Oracle says ..
This is a one-bedroom apartment located on Romsey Road, Redbridge, Southampton. Marketed by Leaders Sales, the property is listed at £150,000. The apartment appears to be in good, modern condition, with a contemporary kitchen and bathroom. It is situated in a location that offers access to local amenities and transportation, although it’s not in the immediate city center. The absence of a garden is typical for an apartment. Considering the condition, size, and location, the asking price seems to be in line with the local market. The property is near several schools, but their Ofsted ratings vary. Overall, this apartment presents a potentially attractive opportunity for first-time buyers or investors looking for a well-maintained property in Southampton.
Therefore, we give this property 5 / 10. *Disclaimer: This is our option and does constitute a recommendation or financial advice. Do your own research. *
- Price
- 7
- Condition
- 8
- Location
- 6
- Land
- 1
- Bedrooms
- 1
- Bathrooms
- 1
- Sqft (est)
- 450.00
The heatmap indicates the level of crime in the area. The color of the heatmap indicates the crime severity and recency.
Metrics Year-on-Year
- Average area value
- 175,714.00 £Decreased by 28.10 %
- Est sale value
- 137,700.00 £Increased by 15.47 %
- Average area rental value
- 1,256.00 £/moIncreased by 5.37 %
- Est letting value
- 900.00 £/moIncreased by 100.00 %
- Est rental Yield
- 8.58 %Increased by 46.67 %
- Crime Rate
- 10.00 %Unchanged by 0.00 %
Agent Activity
Leaders Sales created the listing.
Nearby Schools
| Name | Type | Ofsted | Distance |
|---|---|---|---|
| Oasis Academy Lord'S Hill | Academy Sponsor Led | Requires improvement | 0.48 KM |
| Compass School | Pupil Referral Unit | Good | 0.52 KM |
| Millbrook, Redbridge And Maybush Sure Start Cchildren'S Centre. | Children's Centre | 0.79 KM | |
| Newlands Primary School | Community School | Good | 0.84 KM |
| Lordshill, Shirley Warren And Coxford Children'S Centre. | Children's Centre | 1.04 KM |
Images
Nearby Streets
| Name | Average Price | Average Sqft | Distance |
|---|---|---|---|
| Tavistock Road | £ 280,000 | 0 | 0.00 KM |
| Coxford Drove | £ 0 | 0 | 0.00 KM |
| Cheviot Road | £ 0 | 0 | 0.00 KM |
| Colne Court | £ 150,000 | 0 | 0.00 KM |
| Stoke Road | £ 0 | 0 | 0.00 KM |
Nearby Transport
| Name | NLC | TLC | Distance |
|---|---|---|---|
| Redbridge | 5912 | RDB | 2.60 KM |
| Millbrook (Hants) | 5909 | MBK | 2.92 KM |
| Totton | 5921 | TTN | 3.90 KM |
| Southampton Central | 5932 | SOU | 4.89 KM |
| St Denys | 5914 | SDN | 6.99 KM |
Nearby Listings
| Address | Price | Type | Score | Distance |
|---|---|---|---|---|
| Romsey Road, Southampton, Hampshire | £ 150,000 | BUY | 5 / 10 | 0.00 KM |
| Romsey Road, Southampton, Hampshire, SO16 | £ 220,000 | BUY | 5 / 10 | 0.01 KM |
| Romsey Road, Southampton, Hampshire | £ 170,000 | BUY | 5 / 10 | 0.01 KM |
| Romsey Road, Southampton, Hampshire | £ 180,000 | BUY | 7 / 10 | 0.01 KM |
| Romsey Road, Southampton | £ 130,000 | BUY | 5 / 10 | 0.02 KM |
Nearby Properties
| Address | Price | Distance |
|---|---|---|
| 423 Romsey Road | £ 262,000 | 0.11 KM |
| 469 Romsey Road | £ 235,000 | 0.11 KM |
| 443 Romsey Road | £ 236,500 | 0.11 KM |
| 471 Romsey Road | £ 285,000 | 0.11 KM |
| 481 Romsey Road | £ 282,500 | 0.11 KM |