Jordan Fishwick says ..
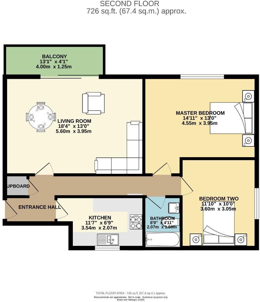
A light and spacious two double bedroom apartment situated in arguably one of Didsbury's most sought after locations just a short walk to Didsbury Village and boasting its own private balcony and garage. Positioned on the second floor of this small development, the apartments enjoy well maintaine...
Property Oracle says ..
Therefore, we give this property 6 / 10. *Disclaimer: This is our option and does constitute a recommendation or financial advice. Do your own research. *
- Price
- 8
- Condition
- 4
- Location
- 8
- Land
- 7
- Bedrooms
- 2
- Bathrooms
- 1
- Sqft (est)
- 719.32
The heatmap indicates the level of crime in the area. The color of the heatmap indicates the crime severity and recency.
Metrics Year-on-Year
- Average area value
- 533,583.00 £Increased by 11.40 %
- Est sale value
- 394,187.36 £Increased by 25.98 %
- Average area rental value
- 1,591.00 £/moIncreased by 15.54 %
- Est letting value
- 719.32 £/moUnchanged by 0.00 %
- Est rental Yield
- 3.58 %Increased by 3.77 %
- Crime Rate
- 2.00 %Unchanged by 0.00 %
from 479,000.00 £
from 312,904.20 £
from 1,377.00 £/mo
from 719.32 £/mo
from 3.45 %
from 2.00 %
Agent Activity
Jordan Fishwick marked this listing as sold.
Jordan Fishwick created the listing.
Nearby Schools
| Name | Type | Ofsted | Distance |
|---|---|---|---|
| Beaver Road Primary School | Academy Converter | 0.33 KM | |
| Didsbury Cofe Primary School | Academy Converter | 0.48 KM | |
| Didsbury Park | Children's Centre | 0.79 KM | |
| St Catherine'S Rc Primary School | Voluntary Aided School | Outstanding | 0.88 KM |
| West Didsbury Ce Primary School | Free Schools | Good | 1.06 KM |
Images
Nearby Streets
| Name | Average Price | Average Sqft | Distance |
|---|---|---|---|
| Clayton Avenue | £ 1,495,000 | 0 | 0.00 KM |
| Mere Avenue | £ 0 | 0 | 0.00 KM |
| Adria Avenue | £ 250,000 | 0 | 0.00 KM |
| King's Lynn Close | £ 448,333 | 0 | 0.00 KM |
| Redcourt Avenue | £ 0 | 0 | 0.00 KM |
Nearby Transport
| Name | NLC | TLC | Distance |
|---|---|---|---|
| East Didsbury | 2949 | EDY | 1.47 KM |
| Burnage | 2945 | BNA | 1.55 KM |
| Mauldeth Road | 2867 | MAU | 2.68 KM |
| Gatley | 2953 | GTY | 3.02 KM |
| Levenshulme | 2862 | LVM | 4.89 KM |
Nearby Listings
| Address | Price | Type | Score | Distance |
|---|---|---|---|---|
| Church Court, Didsbury | £ 279,950 | BUY | 6 / 10 | 0.00 KM |
| Clothorn Road, Manchester, Greater Manchester, M20 | £ 350,000 | BUY | 8 / 10 | 0.09 KM |
| Clothorn Road, Didsbury Village, M20 | £ 1,650,000 | BUY | Unknown | 0.09 KM |
| Clothorn Road, Didsbury Village, M20 | £ 695,000 | BUY | 7 / 10 | 0.10 KM |
| Raynham Avenue, Manchester, M20 | £ 1,300,000 | BUY | 7 / 10 | 0.13 KM |
Nearby Properties
| Address | Price | Distance |
|---|---|---|
| 17 Belfield Road | £ 787,500 | 0.04 KM |
| 9 Belfield Road | £ 1,225,000 | 0.04 KM |
| 13 Belfield Road | £ 175,000 | 0.04 KM |
| 3 Belfield Road | £ 160,000 | 0.04 KM |
| 21 Belfield Road | £ 200,000 | 0.04 KM |