Burnham Road, Knaphill, Woking, Surrey, GU21
By Seymours Estate Agents
£ 439,950
Reviews
3 out of 5 stars
Seymours Estate Agents says ..
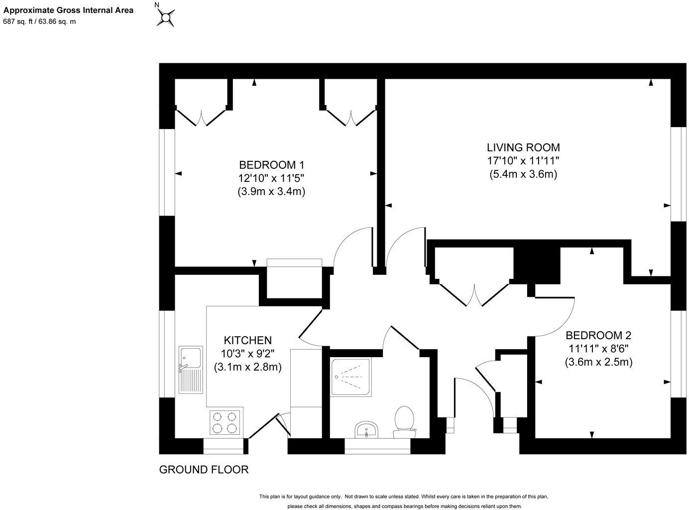
This semi-detached bungalow is located in a quiet cul de sac , conveniently located as Knaphill village is within easy reach and offers a wide range of amenities and excellent bus links. The property is offered to the market with no onward chain and offers flexible accommodation to include t...
Property Oracle says ..
This property is located in Knaphill, Woking, Surrey. Based on the provided images, the property appears to be in reasonable condition, though some updating may be desirable. The property includes a garden, which is a positive feature. The list price of £439,950 requires further analysis in comparison to local market data to determine its reasonableness. More information on the square footage of nearby properties would help to establish a price per square foot comparison, which would be beneficial in assessing the value.
Therefore, we give this property 6 / 10. *Disclaimer: This is our option and does constitute a recommendation or financial advice. Do your own research. *
- Price
- 6
- Condition
- 6
- Location
- 7
- Land
- 7
- Bedrooms
- 2
- Bathrooms
- 1
- Sqft (est)
- 687.38
The heatmap indicates the level of crime in the area. The color of the heatmap indicates the crime severity and recency.
Metrics Year-on-Year
- Average area value
- 586,400.00 £Increased by 18.76 %
- Est sale value
- 327,192.88 £Increased by 6.01 %
- Average area rental value
- 2,150.00 £/moIncreased by 9.47 %
- Est letting value
- 687.38 £/moUnchanged by 0.00 %
- Est rental Yield
- 4.40 %Decreased by 7.76 %
- Crime Rate
- 5.00 %Unchanged by 0.00 %
Agent Activity
Seymours Estate Agents created the listing.
Nearby Schools
| Name | Type | Ofsted | Distance |
|---|---|---|---|
| St John'S Primary School And Sure Start Children'S Centre | Children's Centre | 0.29 KM | |
| St John'S Primary School | Academy Sponsor Led | Requires improvement | 0.29 KM |
| St Hugh Of Lincoln Catholic Primary School | Academy Converter | Good | 0.50 KM |
| The Oaktree School | Academy Converter | 0.70 KM | |
| The Hermitage School | Academy Converter | Good | 0.79 KM |
Images
Nearby Streets
| Name | Average Price | Average Sqft | Distance |
|---|---|---|---|
| Beechwood Close | £ 0 | 0 | 0.00 KM |
| Oakway | £ 475,000 | 0 | 0.00 KM |
| Elmgrove Close | £ 425,000 | 0 | 0.00 KM |
| Oakwood Road | £ 0 | 0 | 0.00 KM |
| Rose Lodge | £ 0 | 0 | 0.00 KM |
Nearby Transport
| Name | NLC | TLC | Distance |
|---|---|---|---|
| Brookwood | 5687 | BKO | 3.19 KM |
| Worplesdon | 5686 | WPL | 4.23 KM |
| Woking | 5685 | WOK | 5.83 KM |
| Longcross | 5674 | LNG | 7.90 KM |
| Sunningdale | 5671 | SNG | 8.86 KM |
Nearby Listings
| Address | Price | Type | Score | Distance |
|---|---|---|---|---|
| Burnham Road, Knaphill, Woking, Surrey, GU21 | £ 439,950 | BUY | 6 / 10 | 0.00 KM |
| Burnham Road, Knaphill, Woking, Surrey, GU21 | £ 485,000 | BUY | 7 / 10 | 0.03 KM |
| Burnham Road, Knaphill, Woking, Surrey, GU21 | £ 525,000 | BUY | 6 / 10 | 0.04 KM |
| Victoria Road, Knaphill, Woking, Surrey, GU21 | £ 425,000 | BUY | 6 / 10 | 0.05 KM |
| Victoria Road, Woking | £ 750,000 | BUY | 8 / 10 | 0.12 KM |
Nearby Properties
| Address | Price | Distance |
|---|---|---|
| 45 Burnham Road | £ 224,950 | 0.04 KM |
| 10 Burnham Road | £ 212,500 | 0.04 KM |
| 4 Burnham Road | £ 324,950 | 0.04 KM |
| 20 Burnham Road | £ 380,000 | 0.04 KM |
| 19 Burnham Road | £ 275,000 | 0.04 KM |