Mighty House says ..
***INCOME PRODUCING HMO STUDENT PROPERTY*** ***4 LETTING BEDROOMS *** BATHROOM WITH A SHOWER CUBICLE & BATH ***CLOSE TO THE CITY CENTRE *** WELL PRESENTED *** GREAT LOCATION FOR STUDENTS *** GREAT INVESTMENT FOR PARENTS WHO HAVE STUDENTS GOING TO UNIVERSITY *** Income-Generating HMO...
Property Oracle says ..
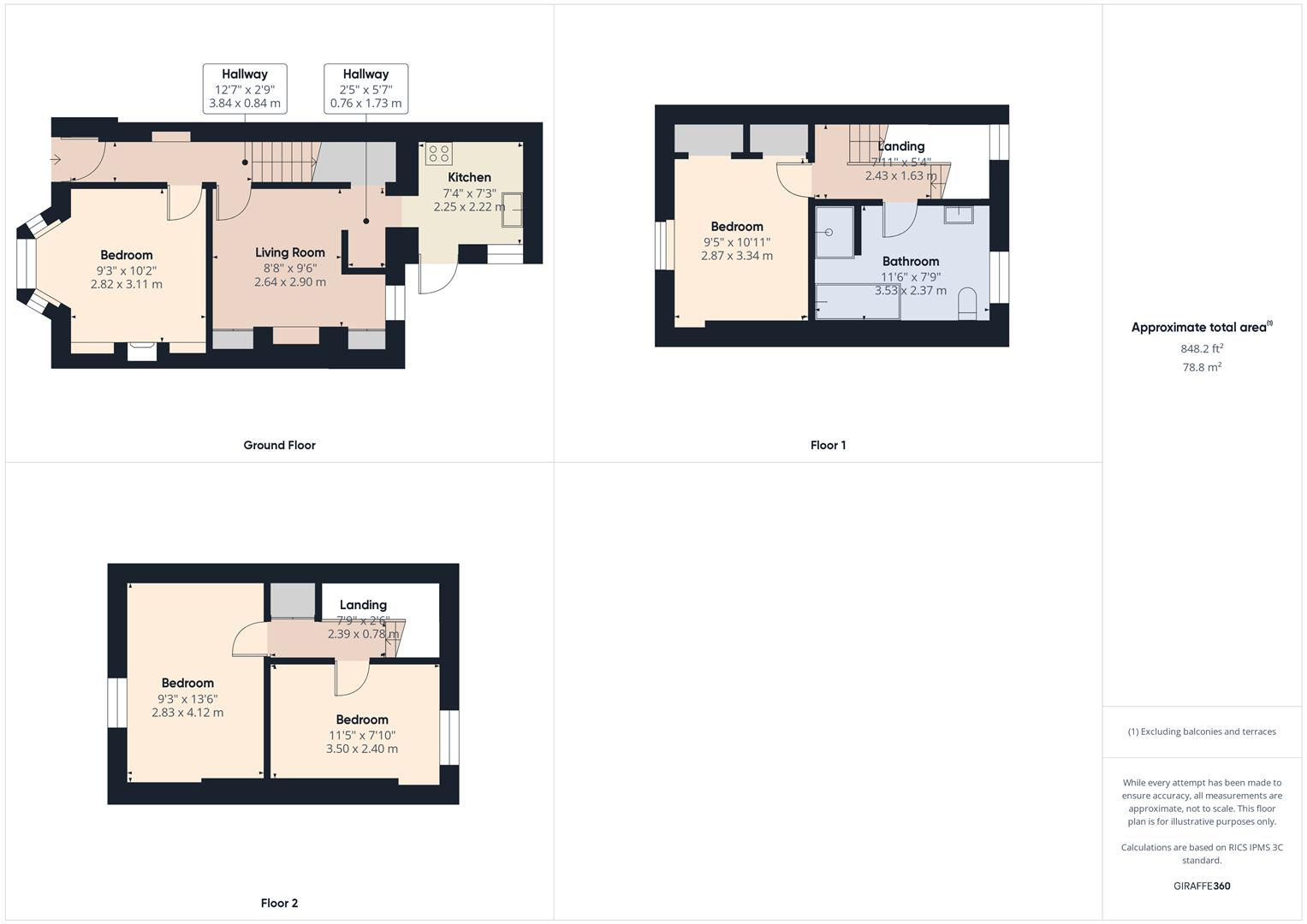
This property is a four-bedroom terraced house located on Lune Street in Lancaster. The property benefits from being close to local schools, including Chadwick High School (rated good by Ofsted) and Our Lady’s Catholic College, and is also within reasonable distance of Lancaster train station, providing convenient access to other areas. The property itself appears to be in generally good condition, although some minor cosmetic improvements could enhance its overall appeal. The kitchen has been recently modernised and the bathroom is clean. The property includes a small rear yard. While the list price is higher than the average price for the area, the larger number of bedrooms and the relatively modern kitchen may justify the higher price point. However, potential buyers should carefully consider the property’s size (706.22 sqft) in relation to its list price.
Therefore, we give this property 6 / 10. *Disclaimer: This is our option and does constitute a recommendation or financial advice. Do your own research. *
- Price
- 6
- Condition
- 7
- Location
- 8
- Land
- 3
- Bedrooms
- 4
- Bathrooms
- 1
- Sqft (est)
- 706.22
- Lot (est)
- 848.20
The heatmap indicates the level of crime in the area. The color of the heatmap indicates the crime severity and recency.
Metrics Year-on-Year
- Average area value
- 151,990.00 £Decreased by 8.99 %
- Est sale value
- 118,644.96 £Decreased by 13.85 %
- Average area rental value
- 888.00 £/moIncreased by 6.60 %
- Est letting value
- 0.00 £/mo
- Est rental Yield
- 7.01 %Increased by 17.03 %
- Crime Rate
- 9.00 %Unchanged by 0.00 %
Agent Activity
Mighty House created the listing.
Nearby Schools
| Name | Type | Ofsted | Distance |
|---|---|---|---|
| Our Lady'S Catholic College | Voluntary Aided School | Requires improvement | 0.31 KM |
| Chadwick High School | Pupil Referral Unit | Good | 0.36 KM |
| Sure Start Lune Park Children'S Centre | Children's Centre | 0.45 KM | |
| St Josephs Catholic Primary School, Lancaster | Academy Sponsor Led | 0.62 KM | |
| Lancaster Dallas Road Community Primary School | Community School | Good | 1.03 KM |
Images
Nearby Streets
| Name | Average Price | Average Sqft | Distance |
|---|---|---|---|
| Captains Row | £ 0 | 0 | 0.00 KM |
| Cable Street | £ 154,950 | 0 | 0.00 KM |
| North Road | £ 0 | 0 | 0.00 KM |
| Parliament Street | £ 0 | 0 | 0.00 KM |
| Kent Street | £ 145,000 | 0 | 0.00 KM |
Nearby Transport
| Name | NLC | TLC | Distance |
|---|---|---|---|
| Lancaster | 2685 | LAN | 1.13 KM |
| Bare Lane | 2690 | BAR | 4.59 KM |
| Morecambe | 2695 | MCM | 7.96 KM |
| Carnforth | 2640 | CNF | 8.91 KM |
Nearby Listings
| Address | Price | Type | Score | Distance |
|---|---|---|---|---|
| 29 Lune Street, Lancaster | £ 220,000 | BUY | 6 / 10 | 0.00 KM |
| Lune Street, Lancaster | £ 115,000 | BUY | Unknown | 0.05 KM |
| Derby Road, Lancaster | £ 139,950 | BUY | Unknown | 0.06 KM |
| Millennium Heights, Lune Street, Lancaster | £ 110,000 | BUY | 5 / 10 | 0.06 KM |
| Apartment , Millennium Heights, Lune Street, Lancaster | £ 99,000 | BUY | 5 / 10 | 0.06 KM |
Nearby Properties
| Address | Price | Distance |
|---|---|---|
| 77 Lune Street | £ 85,500 | 0.07 KM |
| 65 Lune Street | £ 123,000 | 0.07 KM |
| 29 Lune Street | £ 124,000 | 0.07 KM |
| 47 Lune Street | £ 102,500 | 0.07 KM |
| 43 Lune Street | £ 109,950 | 0.07 KM |