Hambledon Road, Denmead, Waterlooville, Hampshire, PO7
By Morris Dibben
£ 150,000
Reviews
2 out of 5 stars
Morris Dibben says ..
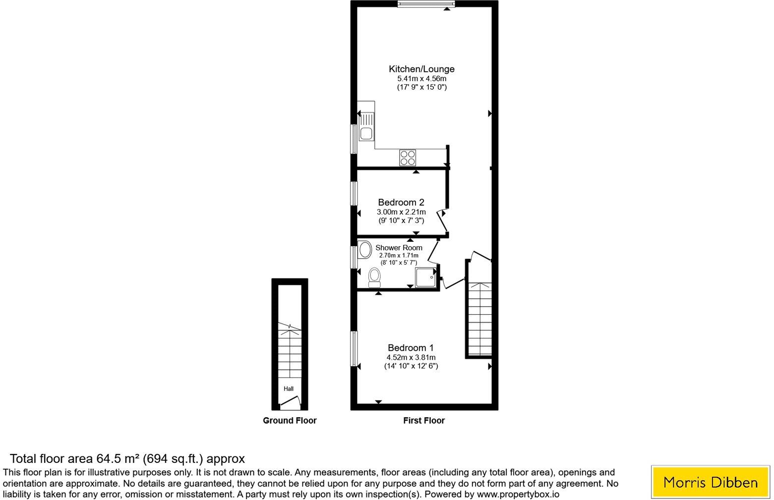
Nestled within the heart of Denmead Village being walking distance to local amenities is this tow bedroom first floor apartment that this being offered with NO FORWARD CHAIN. The property benefits a open plan lounge/kitchen diner, two bedrooms, shower room and gas central heating.
Property Oracle says ..
This is a two-bedroom flat located on Hambledon Road in Denmead. The property is listed for sale with Morris Dibben for £150,000. The flat has one bathroom. The property is located close to local schools and amenities. Cosham train station is 6.91KM away. The flat appears to be in a fair condition, but it could benefit from some modernization. The kitchen and bathroom appear functional but somewhat dated. The carpets also show some wear and tear. The property is a flat, and there is no garden or land included. The average price for similar properties in the area is £359,091. The average price per square foot in the area is £412. Given the condition of the property, the price seems reasonable.
Therefore, we give this property 5 / 10. *Disclaimer: This is our option and does constitute a recommendation or financial advice. Do your own research. *
- Price
- 8
- Condition
- 5
- Location
- 6
- Land
- 1
- Bedrooms
- 2
- Bathrooms
- 1
The heatmap indicates the level of crime in the area. The color of the heatmap indicates the crime severity and recency.
Metrics Year-on-Year
- Average area value
- 359,091.00 £Decreased by 29.86 %
- Average area rental value
- 1,545.00 £/moIncreased by 4.32 %
- Est rental Yield
- 5.16 %Increased by 48.70 %
- Crime Rate
- 39.00 %Unchanged by 0.00 %
Agent Activity
Morris Dibben created the listing.
Nearby Schools
| Name | Type | Ofsted | Distance |
|---|---|---|---|
| Denmead Infant School | Community School | Good | 0.63 KM |
| Happy Valley Children'S Centre | Children's Centre Linked Site | 0.63 KM | |
| Denmead Junior School | Community School | Good | 0.64 KM |
| Rachel Madocks School | Community Special School | Good | 3.46 KM |
| Link'S Children'S Centre | Children's Centre | 3.64 KM |
Images
Nearby Streets
| Name | Average Price | Average Sqft | Distance |
|---|---|---|---|
| Carpenters Close | £ 0 | 0 | 0.00 KM |
| The Heath | £ 0 | 0 | 0.00 KM |
| Old Farm Walk | £ 0 | 0 | 0.00 KM |
| The Pastures | £ 0 | 0 | 0.00 KM |
| River Walk | £ 0 | 0 | 0.00 KM |
Nearby Transport
| Name | NLC | TLC | Distance |
|---|---|---|---|
| Cosham | 5896 | CSA | 6.91 KM |
| Hilsea | 5539 | HLS | 8.46 KM |
| Portchester | 5928 | PTC | 8.91 KM |
| Bedhampton | 5538 | BDH | 9.54 KM |
Nearby Listings
| Address | Price | Type | Score | Distance |
|---|---|---|---|---|
| Hambledon Road, Denmead, Waterlooville, Hampshire, PO7 | £ 150,000 | BUY | 5 / 10 | 0.00 KM |
| HAMBLEDON ROAD, DENMEAD | £ 175,000 | BUY | Unknown | 0.09 KM |
| HAMBLEDON ROAD, DENMEAD | £ 155,000 | BUY | Unknown | 0.09 KM |
| Park Road, Denmead | £ 625,000 | BUY | 8 / 10 | 0.16 KM |
| LUDCOMBE, DENMEAD | £ 400,000 | BUY | 7 / 10 | 0.17 KM |
Nearby Properties
| Address | Price | Distance |
|---|---|---|
| Toora | £ 280,000 | 0.05 KM |
| Barnes Wood | £ 244,000 | 0.08 KM |
| Peartree Cottage | £ 390,000 | 0.10 KM |
| Forestside | £ 236,000 | 0.10 KM |
| 1 Park Road | £ 435,000 | 0.16 KM |