Sanderstead Road, Sanderstead, South Croydon, CR2
By Foxtons
£ 900,000
Reviews
3 out of 5 stars
Foxtons says ..
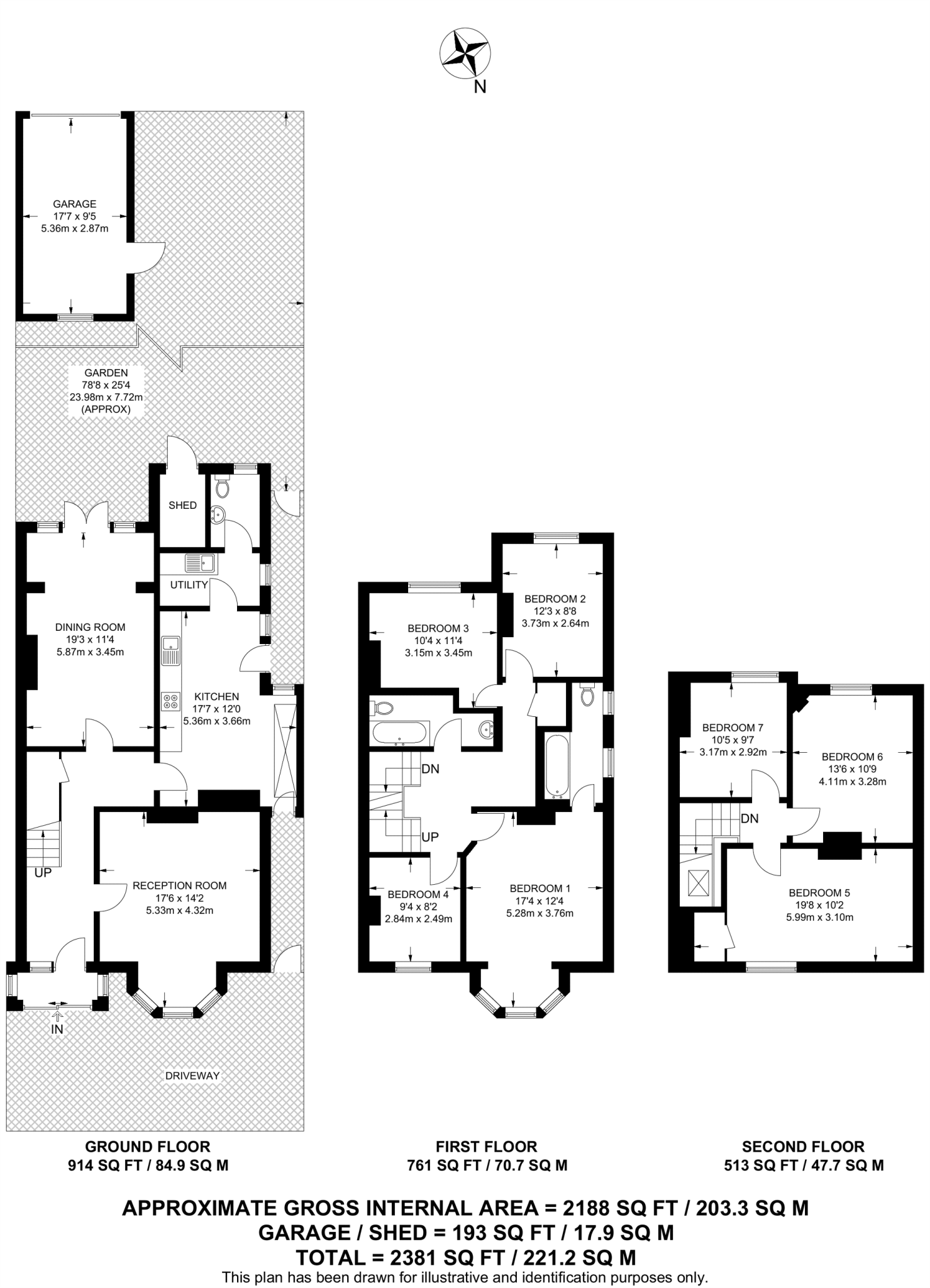
Arranged over 3 floors, this wonderful 7 bedroom house benefits from 2 bright and spacious reception rooms, fitted kitchen with breakfast area, 2 bathrooms and a lovely garden with a garage.
Property Oracle says ..
Therefore, we give this property 7 / 10. *Disclaimer: This is our option and does constitute a recommendation or financial advice. Do your own research. *
- Price
- 8
- Condition
- 6
- Location
- 8
- Land
- 7
- Bedrooms
- 7
- Bathrooms
- 2
- Sqft (est)
- 3,781.47
The heatmap indicates the level of crime in the area. The color of the heatmap indicates the crime severity and recency.
Metrics Year-on-Year
- Average area value
- 350,411.00 £Decreased by 30.71 %
- Est sale value
- 1,244,103.63 £Decreased by 20.91 %
- Average area rental value
- 1,907.00 £/moIncreased by 7.13 %
- Est letting value
- 3,781.47 £/moUnchanged by 0.00 %
- Est rental Yield
- 6.53 %Increased by 54.74 %
- Crime Rate
- 17.00 %Unchanged by 0.00 %
from 505,689.00 £
from 1,573,091.52 £
from 1,780.00 £/mo
from 3,781.47 £/mo
from 4.22 %
from 17.00 %
Agent Activity
Foxtons created the listing.
Nearby Schools
| Name | Type | Ofsted | Distance |
|---|---|---|---|
| Purley Oaks Children'S Centre | Children's Centre Linked Site | 0.50 KM | |
| Purley Oaks Primary School | Community School | Good | 0.59 KM |
| Ridgeway Primary School | Community School | Good | 1.08 KM |
| St Peter'S Primary School | Academy Converter | Good | 1.18 KM |
| Harris Primary Academy Haling Park | Academy Sponsor Led | Outstanding | 1.22 KM |
Images
Nearby Streets
| Name | Average Price | Average Sqft | Distance |
|---|---|---|---|
| White Hill | £ 0 | 0 | 0.00 KM |
| Magdala Road | £ 0 | 0 | 0.00 KM |
| Allenby Avenue | £ 0 | 0 | 0.00 KM |
| Day's Acre | £ 0 | 0 | 0.00 KM |
| Joshua Close | £ 0 | 0 | 0.00 KM |
Nearby Transport
| Name | NLC | TLC | Distance |
|---|---|---|---|
| Sanderstead | 5433 | SNR | 0.09 KM |
| Purley Oaks | 5430 | PUO | 0.49 KM |
| South Croydon | 5410 | SCY | 1.67 KM |
| Riddlesdown | 5432 | RDD | 1.81 KM |
| Purley | 5379 | PUR | 2.46 KM |
Nearby Listings
| Address | Price | Type | Score | Distance |
|---|---|---|---|---|
| Sanderstead Road, Sanderstead, South Croydon, CR2 | £ 900,000 | BUY | 7 / 10 | 0.00 KM |
| Sanderstead Road, Sanderstead, South Croydon, CR2 | £ 850,000 | BUY | 6 / 10 | 0.00 KM |
| Sanderstead Road, Sanderstead, South Croydon, CR2 | £ 920,000 | BUY | 7 / 10 | 0.00 KM |
| Sanderstead Road, South Croydon | £ 300,000 | BUY | 5 / 10 | 0.00 KM |
| 174 Sanderstead Road, Sanderstead, Surrey, CR2 0LY | £ 295,000 | BUY | 6 / 10 | 0.00 KM |
Nearby Properties
| Address | Price | Distance |
|---|---|---|
| 167 Sanderstead Road | £ 142,500 | 0.03 KM |
| 165 Sanderstead Road | £ 470,000 | 0.03 KM |
| 205a Sanderstead Road | £ 400,000 | 0.03 KM |
| 145 Sanderstead Road | £ 129,950 | 0.03 KM |
| 9 Glossop Road | £ 535,000 | 0.11 KM |