WE
The Gables, Hundleton, Pembroke
By West Wales Properties
£ 420,000
Reviews
3 out of 5 stars
West Wales Properties says ..
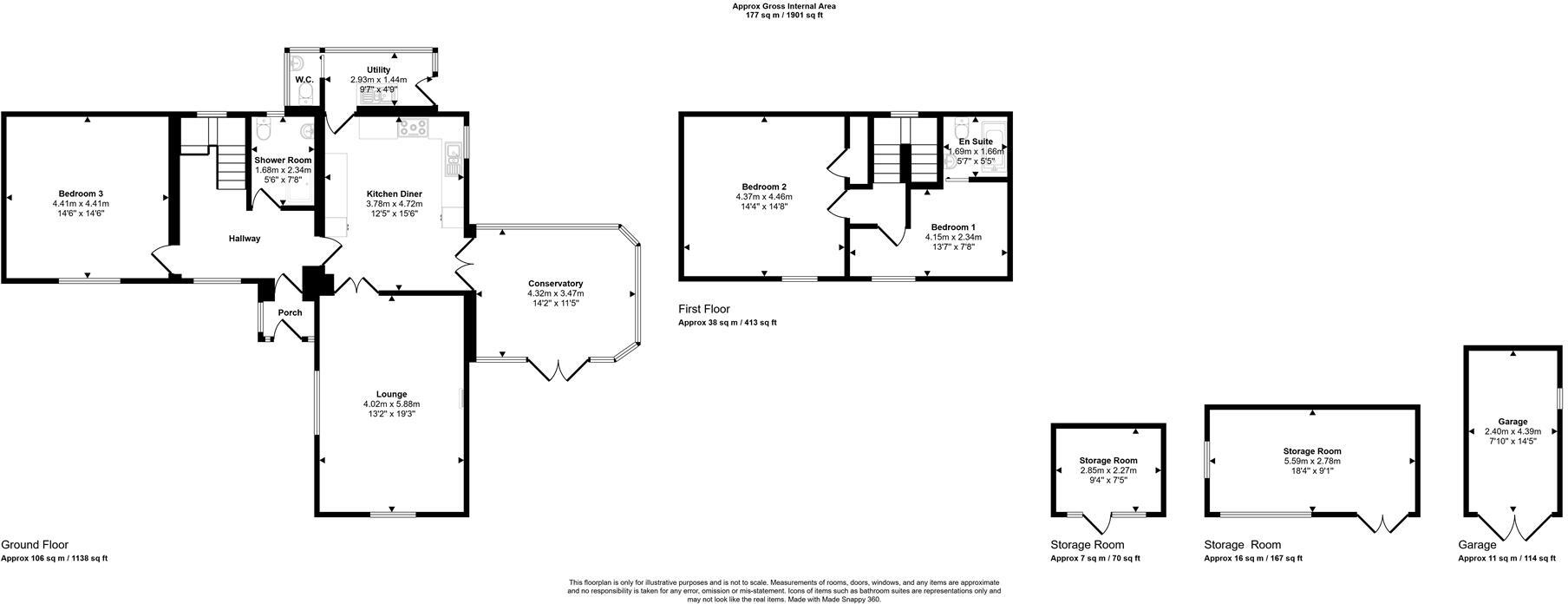
A unique opportunity to purchase a well-presented property located in the outskirts of Hundleton, just a short drive away from both Pembroke Town centre and Freshwater West Beach. The layout of the property briefly comprises entrance hall, lounge, kitchen/diner with adjoining utility room and WC,...
Property Oracle says ..
Therefore, we give this property 6 / 10. *Disclaimer: This is our option and does constitute a recommendation or financial advice. Do your own research. *
- Price
- 6
- Condition
- 7
- Location
- 6
- Land
- 8
- Bedrooms
- 3
- Bathrooms
- 3
The heatmap indicates the level of crime in the area. The color of the heatmap indicates the crime severity and recency.
Metrics Year-on-Year
- Average area value
- 278,905.00 £Increased by 2.67 %
- Average area rental value
- 800.00 £/moDecreased by 34.53 %
- Est rental Yield
- 3.44 %Decreased by 36.30 %
- Crime Rate
- 0.00 %
from 271,663.00 £
from 1,222.00 £/mo
from 5.40 %
from 0.00 %
Agent Activity
West Wales Properties created the listing.
Nearby Schools
| Name | Type | Ofsted | Distance |
|---|---|---|---|
| Pennar Community School | Welsh Establishment | 3.20 KM | |
| Monkton Priory Cp School | Welsh Establishment | 4.29 KM | |
| Pembroke Dock Cp School | Welsh Establishment | 4.74 KM | |
| Ysgol Harri Tudur/Henry Tudor School | Welsh Establishment | 5.01 KM | |
| Neyland Primary School | Welsh Establishment | 5.69 KM |
Images
Nearby Transport
| Name | NLC | TLC | Distance |
|---|---|---|---|
| Pembroke Dock | 4102 | PMD | 4.80 KM |
| Pembroke | 4101 | PMB | 6.75 KM |
Nearby Listings
| Address | Price | Type | Score | Distance |
|---|---|---|---|---|
| The Gables, Hundleton, Pembroke | £ 420,000 | BUY | 6 / 10 | 0.00 KM |
| Hundleton, Pembroke | £ 450,000 | BUY | 6 / 10 | 0.00 KM |
| Hundleton, Pembroke, Pembrokeshire, SA71 | £ 350,000 | BUY | 6 / 10 | 0.43 KM |
| Upper Castleton House, Hundleton, Nr. Pembroke, Pembroke | £ 399,950 | BUY | 6 / 10 | 1.53 KM |
| Cackleberry House, Reginald Close, Hundleton, SA71 | £ 450,000 | BUY | 8 / 10 | 1.54 KM |
Nearby Properties
| Address | Price | Distance |
|---|---|---|
| 2 Reginald Close | £ 195,000 | 1.60 KM |
| 6 Reginald Close | £ 249,950 | 1.64 KM |
| 27 Cricket Grove | £ 136,000 | 1.65 KM |
| 43 Cricket Grove | £ 147,000 | 1.65 KM |
| 7 Cricket Grove | £ 277,500 | 1.65 KM |