Southern Road, Camberley
By Knights Property Services
£ 190,000
Reviews
2 out of 5 stars
Knights Property Services says ..
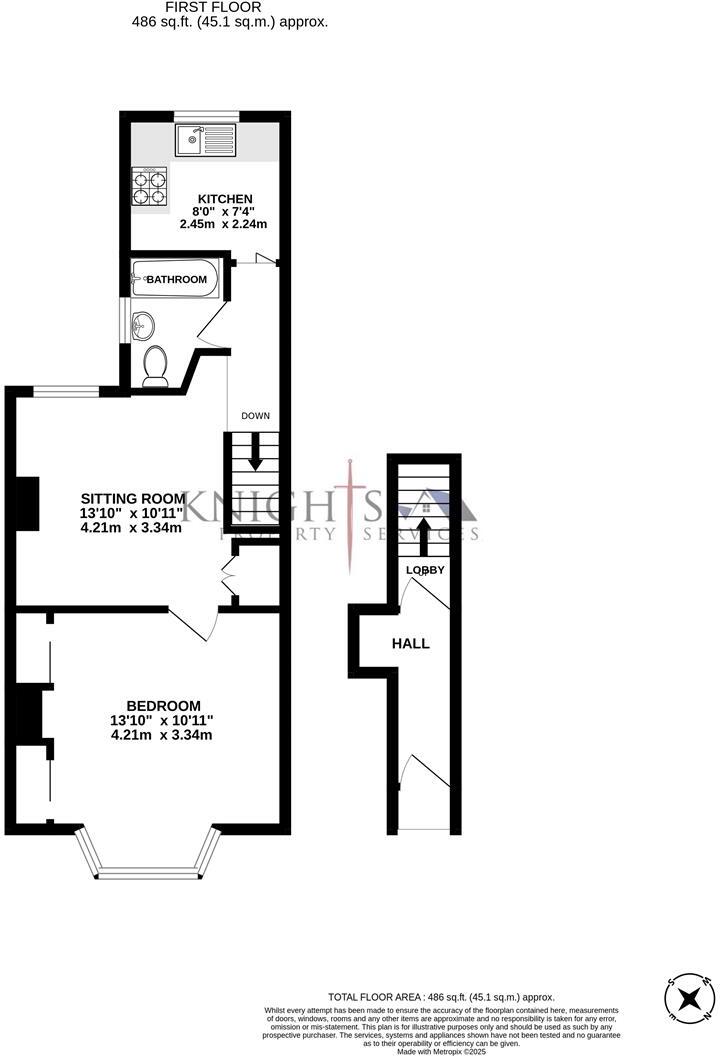
KNIGHTS PROPERTY SERVICES **NO ONWARD CHAIN** For sale is this one bedroom first floor maisonette, occupying a prime town centre position, within easy reach of all that Camberley has to offer such as The Square shopping centre, Atrium Complex, Places Leisure and train station. The property, which...
Property Oracle says ..
Therefore, we give this property 4 / 10. *Disclaimer: This is our option and does constitute a recommendation or financial advice. Do your own research. *
- Price
- 4
- Condition
- 5
- Location
- 7
- Land
- 3
- Bedrooms
- 1
- Bathrooms
- 1
- Sqft (est)
- 486.00
The heatmap indicates the level of crime in the area. The color of the heatmap indicates the crime severity and recency.
Metrics Year-on-Year
- Average area value
- 226,464.00 £Decreased by 27.05 %
- Est sale value
- 139,968.00 £Decreased by 24.61 %
- Average area rental value
- 1,243.00 £/moDecreased by 7.99 %
- Est letting value
- 486.00 £/moUnchanged by 0.00 %
- Est rental Yield
- 6.59 %Increased by 26.25 %
- Crime Rate
- 19.00 %Unchanged by 0.00 %
from 310,433.00 £
from 185,652.00 £
from 1,351.00 £/mo
from 486.00 £/mo
from 5.22 %
from 19.00 %
Agent Activity
Knights Property Services created the listing.
Nearby Schools
| Name | Type | Ofsted | Distance |
|---|---|---|---|
| Lyndhurst School | Other Independent School | 0.61 KM | |
| South Camberley Sure Start Children'S Centre | Children's Centre Linked Site | 0.72 KM | |
| Kings International College | Foundation School | Good | 1.49 KM |
| South Camberley Primary And Nursery School | Academy Converter | 1.50 KM | |
| The Orchard Sure Start Children'S Centre | Children's Centre | 1.73 KM |
Images
Nearby Streets
| Name | Average Price | Average Sqft | Distance |
|---|---|---|---|
| Charles Street cycle path | £ 185,000 | 0 | 0.00 KM |
| Shelley Court | £ 0 | 0 | 0.00 KM |
| Firlands Avenue | £ 735,000 | 0 | 0.00 KM |
| High Street | £ 140,000 | 0 | 0.00 KM |
| The Bowlings | £ 357,500 | 0 | 0.00 KM |
Nearby Transport
| Name | NLC | TLC | Distance |
|---|---|---|---|
| Camberley | 5682 | CAM | 0.59 KM |
| Frimley | 5683 | FML | 2.71 KM |
| Blackwater | 5625 | BAW | 3.04 KM |
| Farnborough North | 5688 | FNN | 3.85 KM |
| Farnborough (Main) | 5521 | FNB | 4.44 KM |
Nearby Listings
| Address | Price | Type | Score | Distance |
|---|---|---|---|---|
| Southern Road, Camberley | £ 190,000 | BUY | 4 / 10 | 0.00 KM |
| Firwood Court, Camberley | £ 140,000 | BUY | 6 / 10 | 0.07 KM |
| Southwell Park Road, Camberley, Surrey, GU15 | £ 150,000 | BUY | 6 / 10 | 0.07 KM |
| Southwell Park Road, Camberley, Surrey, GU15 | £ 100,000 | BUY | 5 / 10 | 0.08 KM |
| Southwell Park Road, Camberley, Surrey, GU15 | £ 230,000 | BUY | 6 / 10 | 0.08 KM |
Nearby Properties
| Address | Price | Distance |
|---|---|---|
| 20 Southwell Park Road | £ 634,700 | 0.01 KM |
| 7 Southwell Park Road | £ 250,000 | 0.05 KM |
| 42b Southern Road | £ 148,000 | 0.11 KM |
| 6 Southern Road | £ 219,000 | 0.11 KM |
| 18 Southern Road | £ 330,000 | 0.11 KM |