Symonds & Greenham says ..
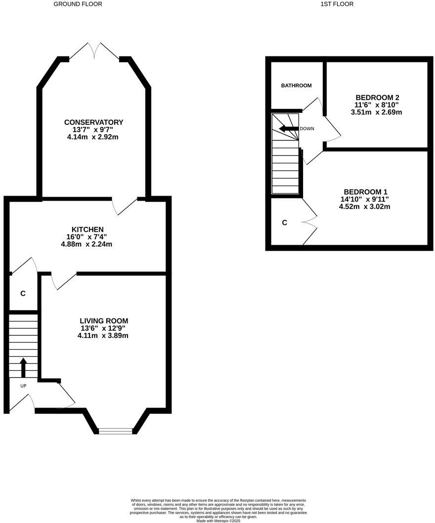
Nestled on the charming Greenwood Avenue in Hull, this delightful mid-terraced house presents an excellent opportunity for both first-time buyers and savvy investors. The property boasts two spacious reception rooms, providing ample space for relaxation and entertaining. The ground floor features...
Property Oracle says ..
This is a two-bedroom terraced house on Greenwood Avenue, Hull, listed with Symonds & Greenham. The property features a modern kitchen and bathroom, a conservatory, and a rear garden. While the house is in reasonable condition, some areas could benefit from updating. The location in Orchard Park offers proximity to schools but is somewhat removed from the city center. The asking price of £110,000 is slightly above the local average price per square foot, making it a fair but not exceptional value.
Therefore, we give this property 6 / 10. *Disclaimer: This is our option and does constitute a recommendation or financial advice. Do your own research. *
- Price
- 7
- Condition
- 6
- Location
- 6
- Land
- 7
- Bedrooms
- 2
- Bathrooms
- 1
- Sqft (est)
- 668.33
The heatmap indicates the level of crime in the area. The color of the heatmap indicates the crime severity and recency.
Metrics Year-on-Year
- Average area value
- 112,678.00 £Decreased by 19.86 %
- Est sale value
- 101,586.16 £Decreased by 10.59 %
- Average area rental value
- 680.00 £/moIncreased by 18.26 %
- Est letting value
- 0.00 £/mo
- Est rental Yield
- 7.24 %Increased by 47.45 %
- Crime Rate
- 14.00 %Unchanged by 0.00 %
Agent Activity
Symonds & Greenham created the listing.
Nearby Schools
| Name | Type | Ofsted | Distance |
|---|---|---|---|
| The Green Way Academy | Academy Sponsor Led | Good | 0.57 KM |
| Mcmillan Nursery School | Local Authority Nursery School | Good | 0.62 KM |
| Mcmillan Children'S Centre | Children's Centre Linked Site | 0.71 KM | |
| Thorpepark Academy | Academy Converter | Good | 0.74 KM |
| Frederick Holmes School | Academy Special Converter | 0.88 KM |
Images
Nearby Streets
| Name | Average Price | Average Sqft | Distance |
|---|---|---|---|
| Alexander Hutchison Court | £ 0 | 0 | 0.00 KM |
| Courtpark Road | £ 0 | 0 | 0.00 KM |
| Fraisthorpe | £ 0 | 0 | 0.00 KM |
| Jipdane | £ 0 | 0 | 0.00 KM |
| Ancourt | £ 0 | 0 | 0.00 KM |
Nearby Transport
| Name | NLC | TLC | Distance |
|---|---|---|---|
| Cottingham | 8056 | CGM | 3.44 KM |
| Hull | 8126 | HUL | 5.34 KM |
| Beverley | 8048 | BEV | 8.53 KM |
| New Holland | 6209 | NHL | 9.08 KM |
| Barrow Haven | 6212 | BAV | 9.62 KM |
Nearby Listings
| Address | Price | Type | Score | Distance |
|---|---|---|---|---|
| Greenwood Avenue, Hull | £ 110,000 | BUY | 6 / 10 | 0.00 KM |
| Greenwood Avenue, Hull, HU6 9RT | £ 105,000 | BUY | 6 / 10 | 0.08 KM |
| 6TH Avenue, Hull, HU6 9PS | £ 95,000 | BUY | Unknown | 0.08 KM |
| 12th Avenue, Hull, East Riding Of Yorkshire, HU6 | £ 85,000 | BUY | 5 / 10 | 0.20 KM |
| 25TH Avenue, Hull, HU6 8EX | £ 80,000 | BUY | 6 / 10 | 0.25 KM |
Nearby Properties
| Address | Price | Distance |
|---|---|---|
| 21 Wormley Court | £ 107,000 | 0.15 KM |
| 6 Wormley Court | £ 120,000 | 0.15 KM |
| 11 Wormley Court | £ 109,950 | 0.15 KM |
| 22 Wormley Court | £ 102,950 | 0.15 KM |
| 23 Wormley Court | £ 95,000 | 0.15 KM |