Garton Close, Appleby Magna, Swadlincote
HO

Garton Close, Appleby Magna, Swadlincote

By Howkins & Harrison Incorporating Andrew Johnson

£ 625,000

Reviews

4 out of 5 stars

Howkins & Harrison Incorporating Andrew Johnson says ..

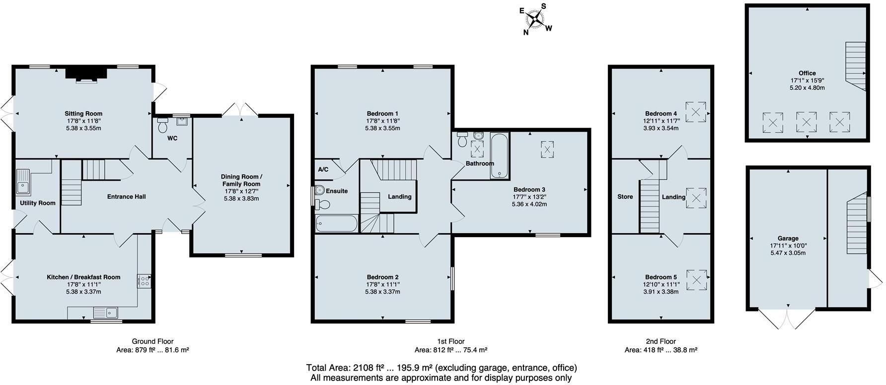
Tucked away in a private cul-de-sac in the desirable village of Appleby Magna, this impressive five bedroom detached family home offers spacious, light and airy living accommodation totalling over 2,100 sqft, arranged over three levels. The property also features a 17.1ft office/annexe above the ...

Property Oracle says ..

Appleby Magna is a desirable village location in North West Leicestershire, with good local schooling options such as Sir John Moore Church Of England Primary School, which is located just 0.18 KM away and has a good Ofsted rating. The property itself is a modern detached house, presented in excellent condition throughout. The images show a well-maintained property with a contemporary interior and a good-sized garden. The plot size is not specified, but the garden appears to be reasonably sized, offering outdoor space. The list price of £625,000 is higher than the average price for the area (£526,583), but this is justified given the property’s size (2,108.65 sqft), condition, and the fact that it is a detached property in a sought-after village location. Nearby comparable properties on Garton Close support this pricing, with several properties selling for significantly more. The average price per sqft in the area is £398, while this property is priced at approximately £296 per sqft, indicating it is potentially slightly overvalued compared to the average but within the range of similar properties in the area.

Therefore, we give this property 8 / 10. *Disclaimer: This is our option and does constitute a recommendation or financial advice. Do your own research. *

Price
7
Condition
9
Location
9
Land
7
Bedrooms
5
Bathrooms
2
Sqft (est)
2,108.65

The heatmap indicates the level of crime in the area. The color of the heatmap indicates the crime severity and recency.

Metrics Year-on-Year

Average area value
693,316.00 £
Increased by 17.15 %
from 591,814.00 £
Est sale value
794,961.05 £
Increased by 18.55 %
from 670,550.70 £
Average area rental value
1,500.00 £/mo
Decreased by 55.22 %
from 3,350.00 £/mo
Est letting value
0.00 £/mo
Decreased by 100.00 %
from 2,108.65 £/mo
Est rental Yield
2.60 %
Decreased by 61.71 %
from 6.79 %
Crime Rate
26.00 %
Unchanged by 0.00 %
from 26.00 %

Agent Activity

  • Howkins & Harrison Incorporating Andrew Johnson created the listing.

Nearby Schools

NameTypeOfstedDistance
Sir John Moore Church Of England Primary SchoolVoluntary Aided SchoolGood0.18 KM
Oakthorpe Primary SchoolAcademy ConverterGood3.66 KM
Measham Church Of England Primary SchoolAcademy ConverterGood3.91 KM
Measham Sure Start Children'S CentreChildren's Centre3.94 KM
St Charles Catholic Primary Voluntary AcademyAcademy Converter4.16 KM

Images

5 Garton Close 5 Garton Close 5 Garton Close 5 Garton Close 5 Garton Close 5 Garton Close 5 Garton Close 5 Garton Close 5 Garton Close 5 Garton Close g 5 Garton Close 5 Garton Close 5 Garton Close 5 Garton Close 5 Garton Close 5 Garton Close 5 Garton Close 5 Garton Close 5 Garton Close 5 Garton Close 5 Garton Close 5 Garton Close 5 Garton Close 5 Garton Close 5 Garton Close 5 Garton Close 5 Garton Close

Nearby Streets

NameAverage PriceAverage SqftDistance
St Helens Lane £ 217,35000.00 KM
Iris Close £ 000.00 KM
Appleby Field Close £ 800,00000.00 KM

Nearby Listings

AddressPriceTypeScoreDistance
Garton Close, Appleby Magna, Swadlincote £ 625,000BUY8 / 100.00 KM
Garton Close, Appleby Magna £ 775,000BUY9 / 100.00 KM
Garton Close, Appleby Magna £ 750,000BUY7 / 100.10 KM
Hillside, Appleby Magna £ 200,000BUY5 / 100.14 KM
Hillside, Appleby Magna £ 135,000BUY6 / 100.14 KM

Nearby Properties

AddressPriceDistance
7 Garton Close £ 445,0000.01 KM
15 Garton Close £ 285,0000.01 KM
2 Garton Close £ 345,0000.01 KM
8 Garton Close £ 412,5000.01 KM
6 Garton Close £ 284,9500.01 KM