Old Vicarage Green, Keynsham, Bristol
By Davies & Way
£ 435,000
Reviews
3 out of 5 stars
Davies & Way says ..
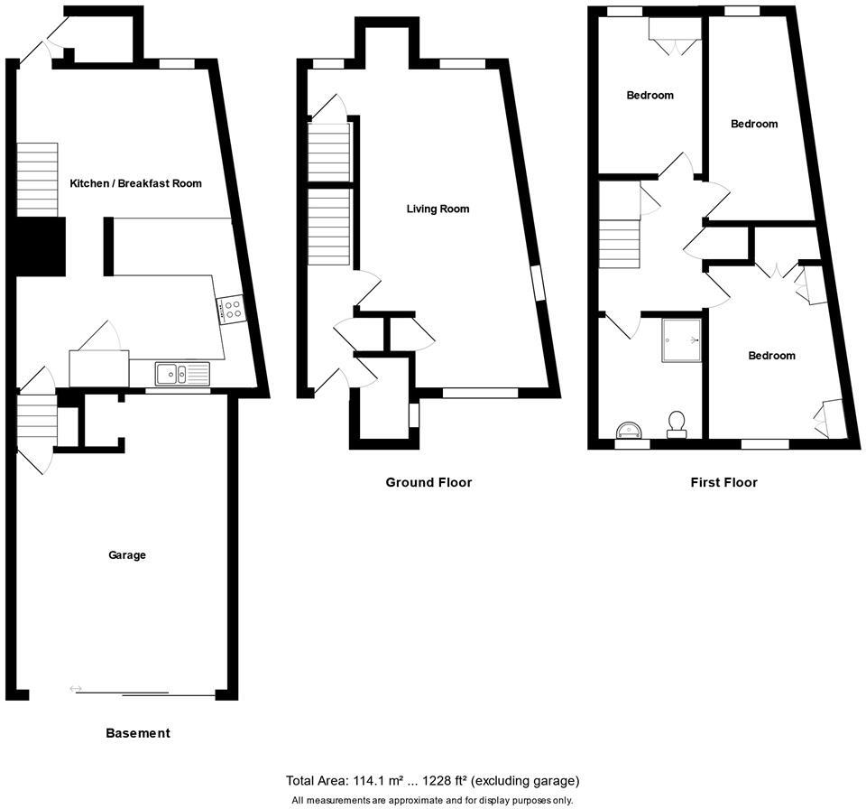
Located within the popular Old Vicarage Green complex, this larger than typical three bedroom townhouse offers bright and airy accommodation and boasts an enviable location in the centre of town while directly backing onto and overlooking delightful Resident's gardens. Internally a rai...
Property Oracle says ..
This three-bedroom property in Keynsham, Bristol, offers a convenient location close to Keynsham train station and several schools. The provided photographs showcase a well-maintained interior, although the style might be considered dated by some buyers. The property is part of a development with a shared communal garden, which is a bonus but might not appeal to everyone. The absence of a private garden is a significant point to consider. The listing price seems generally in line with comparable properties in the area, despite the lack of precise local price per sqft data. Potential buyers should carefully assess their priorities regarding the shared garden space and the property’s dated features before making an offer. Further investigation into the Ofsted ratings of nearby schools and a thorough property survey would be advisable before committing to a purchase.
Therefore, we give this property 6 / 10. *Disclaimer: This is our option and does constitute a recommendation or financial advice. Do your own research. *
- Price
- 7
- Condition
- 6
- Location
- 7
- Land
- 4
- Bedrooms
- 3
- Bathrooms
- 1
- Sqft (est)
- 1,228.00
The heatmap indicates the level of crime in the area. The color of the heatmap indicates the crime severity and recency.
Metrics Year-on-Year
- Average area value
- 620,000.00 £Increased by 61.87 %
- Est sale value
- 385,592.00 £Decreased by 15.14 %
- Average area rental value
- 1,379.00 £/moIncreased by 10.67 %
- Est letting value
- 0.00 £/moDecreased by 100.00 %
- Est rental Yield
- 2.67 %Decreased by 31.54 %
- Crime Rate
- 15.00 %Unchanged by 0.00 %
Agent Activity
Davies & Way created the listing.
Nearby Schools
| Name | Type | Ofsted | Distance |
|---|---|---|---|
| Keynsham Children'S Centre | Children's Centre | 0.48 KM | |
| Somerdale Educate Together Primary Academy | Free Schools | 0.59 KM | |
| St John'S Church Of England Primary School | Academy Converter | 0.98 KM | |
| Broadlands Academy | Academy Sponsor Led | Good | 1.05 KM |
| St Keyna Primary School | Community School | Good | 1.26 KM |
Images
Nearby Streets
| Name | Average Price | Average Sqft | Distance |
|---|---|---|---|
| Culvers Close | £ 0 | 0 | 0.00 KM |
| Market Walk | £ 199,950 | 0 | 0.00 KM |
| Park Road | £ 0 | 0 | 0.00 KM |
| St Margaret's Close | £ 0 | 0 | 0.00 KM |
| Albert Road | £ 0 | 0 | 0.00 KM |
Nearby Transport
| Name | NLC | TLC | Distance |
|---|---|---|---|
| Keynsham | 3237 | KYN | 0.48 KM |
| Lawrence Hill | 3225 | LWH | 8.37 KM |
| Stapleton Road | 3250 | SRD | 9.13 KM |
| Bristol Temple Meads | 3231 | BRI | 9.62 KM |
Nearby Listings
| Address | Price | Type | Score | Distance |
|---|---|---|---|---|
| Old Vicarage Green, Keynsham, Bristol | £ 435,000 | BUY | 6 / 10 | 0.00 KM |
| Old Vicarage Green, Keynsham, Bristol, Somerset, BS31 | £ 378,000 | BUY | 6 / 10 | 0.09 KM |
| Station Road, Keynsham | £ 290,000 | BUY | 7 / 10 | 0.14 KM |
| Station Road, Keynsham | £ 345,000 | BUY | Unknown | 0.14 KM |
| Summerleaze, Keynsham, Bristol, Somerset, BS31 | £ 430,000 | BUY | Unknown | 0.16 KM |
Nearby Properties
| Address | Price | Distance |
|---|---|---|
| 52 Old Vicarage Green | £ 350,000 | 0.04 KM |
| 47 Old Vicarage Green | £ 380,000 | 0.04 KM |
| 55 Old Vicarage Green | £ 520,000 | 0.04 KM |
| 48 Old Vicarage Green | £ 297,500 | 0.04 KM |
| 57 Old Vicarage Green | £ 250,000 | 0.04 KM |