Alex & Matteo says ..
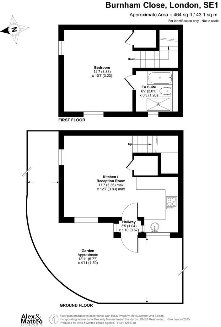
Guide Price from £375,000 to £400,000. A unique freehold semi-detached house in the heart of ever so popular Bermondsey, a short stroll from a plethora of local cafes, restaurants, grocery shops, as well as the greenery of Burgess Park. The house features a naturally bright living room with p...
Property Oracle says ..
This one bedroom flat is located in South Bermondsey, a relatively affordable area of London compared to other central locations. The property appears to be modern, recently renovated, and in excellent condition. The images show a contemporary kitchen and bathroom, and the living space is well-presented. While the plot size is zero, suggesting a lack of private garden space, the location benefits from proximity to several highly-rated schools, including Harris Academy Bermondsey (Outstanding Ofsted rating), and various transport links such as South Bermondsey train station. The list price of £375,000 is higher than the average price for the area (£294,997), but considering the property’s modern condition and convenient location, it may be considered reasonable, particularly when compared to nearby flats with similar features. The average price per sqft in the area is £262, and while the provided sqft for the property is 464, this is significantly smaller than the average, which may account for the price difference. Further analysis of comparable properties in the immediate vicinity would be beneficial to determine the accuracy of the list price.
Therefore, we give this property 6 / 10. *Disclaimer: This is our option and does constitute a recommendation or financial advice. Do your own research. *
- Price
- 7
- Condition
- 10
- Location
- 8
- Land
- 1
- Bedrooms
- 1
- Bathrooms
- 1
- Sqft (est)
- 464.00
The heatmap indicates the level of crime in the area. The color of the heatmap indicates the crime severity and recency.
Metrics Year-on-Year
- Average area value
- 460,000.00 £Decreased by 10.12 %
- Est sale value
- 352,176.00 £Increased by 4.12 %
- Average area rental value
- 2,317.00 £/moIncreased by 6.73 %
- Est letting value
- 1,392.00 £/moUnchanged by 0.00 %
- Est rental Yield
- 6.04 %Increased by 18.66 %
- Crime Rate
- 4.00 %Unchanged by 0.00 %
Agent Activity
Alex & Matteo created the listing.
Nearby Schools
| Name | Type | Ofsted | Distance |
|---|---|---|---|
| Harris Academy Bermondsey | Academy Sponsor Led | Outstanding | 0.41 KM |
| Spa School, Bermondsey | Academy Special Converter | 0.56 KM | |
| Phoenix Primary School | Community School | Outstanding | 0.56 KM |
| Boutcher Church Of England Primary School | Voluntary Aided School | Outstanding | 0.62 KM |
| Kintore Way Nursery School And Children'S Centre | Local Authority Nursery School | Outstanding | 0.66 KM |
Images
Nearby Streets
| Name | Average Price | Average Sqft | Distance |
|---|---|---|---|
| Estate Road | £ 0 | 0 | 0.00 KM |
| Mawbey Road | £ 0 | 0 | 0.00 KM |
| Keyse Road | £ 579,998 | 0 | 0.00 KM |
| Ainsdale Drive | £ 0 | 0 | 0.00 KM |
| Marlborough Grove | £ 0 | 0 | 0.00 KM |
Nearby Transport
| Name | NLC | TLC | Distance |
|---|---|---|---|
| South Bermondsey | 5425 | SBM | 1.96 KM |
| Peckham Rye | 5423 | PMR | 2.23 KM |
| London Bridge | 5148 | LBG | 2.28 KM |
| Wapping | 1085 | WPE | 2.43 KM |
| Queens Road Peckham | 5424 | QRP | 2.46 KM |
Nearby Listings
| Address | Price | Type | Score | Distance |
|---|---|---|---|---|
| Burnham Close | £ 375,000 | BUY | 6 / 10 | 0.00 KM |
| Burnell Walk, SE1 5RS | £ 425,000 | BUY | 6 / 10 | 0.04 KM |
| Burnell Walk, Bermondsey | £ 475,000 | BUY | 7 / 10 | 0.05 KM |
| Burnham Close, London, SE1 | £ 300,000 | BUY | 6 / 10 | 0.05 KM |
| Abingdon Close, Old Kent Road, SE1 | £ 270,000 | BUY | 5 / 10 | 0.06 KM |
Nearby Properties
| Address | Price | Distance |
|---|---|---|
| 7 Burnell Walk | £ 208,000 | 0.05 KM |
| 1 Burnell Walk | £ 329,950 | 0.05 KM |
| 2 Burnell Walk | £ 410,000 | 0.05 KM |
| 12 Burnham Close | £ 267,500 | 0.05 KM |
| 2 Burnham Close | £ 350,000 | 0.05 KM |