Chancellors says ..
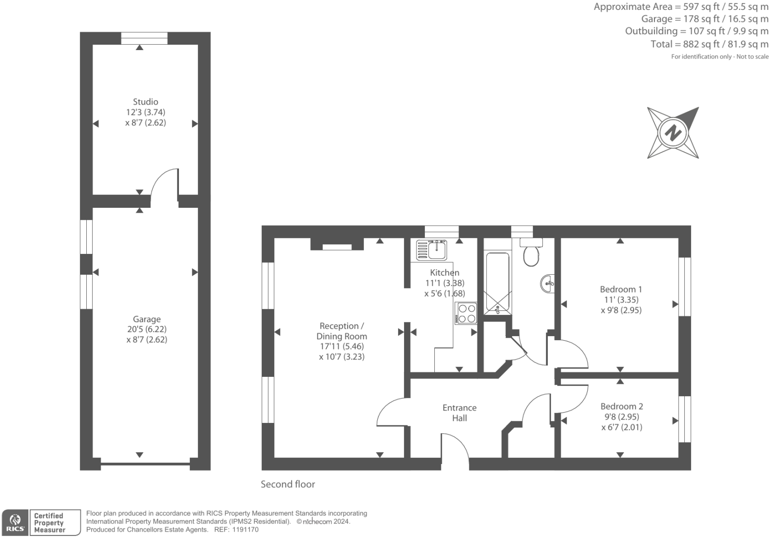
This two bedroom apartment is located in Churchward. The property boasts a garage with store room to the rear. The apartment also has a kitchen, separate lounge diner and family bathroom. Located close by to the Outlet Village. The property is being sold with no onward chain.
Property Oracle says ..
The property is a 2 bedroom flat located in Swindon, Wiltshire. The flat is presented in good condition and benefits from a modern fitted kitchen and bathroom. The property is close to local amenities and transport links, with Swindon train station approximately 1.61km away. Several primary schools are within a reasonable distance, including Robert Le Kyng Primary School (0.35km), Even Swindon Primary School (1.03km), and Ferndale Primary School & Nursery (1.55km), all rated as ‘Good’ by Ofsted.
The list price of £170,000 is slightly below the average price for the area (£223,020), however, the average price per square foot is £298 and this property is 882 sqft. Therefore, based on the average price per sqft, the property is priced slightly below the average for the area. The property’s size (882 sqft) is also larger than the average for the area (746 sqft). While the property does not have a garden (plot size 0.00 sqft), the lack of outdoor space is typical for flats in this area.
Considering the property’s condition, location, and size relative to the average for the area, the price appears reasonable. The property is presented in good order and is in a convenient location near schools and transport links.
Therefore, we give this property 6 / 10. *Disclaimer: This is our option and does constitute a recommendation or financial advice. Do your own research. *
- Price
- 8
- Condition
- 9
- Location
- 8
- Land
- 1
- Bedrooms
- 2
- Bathrooms
- 1
- Sqft (est)
- 882.00
The heatmap indicates the level of crime in the area. The color of the heatmap indicates the crime severity and recency.
Metrics Year-on-Year
- Average area value
- 245,600.00 £Increased by 19.16 %
- Est sale value
- 251,370.00 £Increased by 13.10 %
- Average area rental value
- 978.00 £/moDecreased by 9.78 %
- Est letting value
- 882.00 £/moUnchanged by 0.00 %
- Est rental Yield
- 4.78 %Decreased by 24.25 %
- Crime Rate
- 2.00 %Unchanged by 0.00 %
Agent Activity
Chancellors created the listing.
Nearby Schools
| Name | Type | Ofsted | Distance |
|---|---|---|---|
| Robert Le Kyng Primary School | Community School | Good | 0.35 KM |
| Utc Swindon | University Technical College | Requires improvement | 0.60 KM |
| Even Swindon Primary School | Community School | Good | 1.03 KM |
| Ferndale Primary School & Nursery | Academy Converter | Good | 1.55 KM |
| St Mary'S Catholic Primary School | Academy Converter | Good | 1.62 KM |
Images
Nearby Streets
| Name | Average Price | Average Sqft | Distance |
|---|---|---|---|
| Turner Street | £ 0 | 0 | 0.00 KM |
| Marlborough Street | £ 0 | 0 | 0.00 KM |
| Church Place | £ 0 | 0 | 0.00 KM |
| Joseph Street | £ 0 | 0 | 0.00 KM |
| Canal Cottages | £ 0 | 0 | 0.00 KM |
Nearby Transport
| Name | NLC | TLC | Distance |
|---|---|---|---|
| Swindon (Wilts) | 3333 | SWI | 1.61 KM |
Nearby Listings
| Address | Price | Type | Score | Distance |
|---|---|---|---|---|
| Churchward, Swindon, SN2 | £ 170,000 | BUY | 6 / 10 | 0.00 KM |
| Rodbourne, Swindon, SN2 | £ 150,000 | BUY | Unknown | 0.12 KM |
| Rodbourne, Swindon, SN2 2DH | £ 155,000 | BUY | 6 / 10 | 0.12 KM |
| Lynmouth Road, Swindon, Wiltshire, SN2 | £ 170,000 | BUY | 7 / 10 | 0.12 KM |
| Lynmouth Road, Churchward, Swindon, Wiltshire, SN2 | £ 160,000 | BUY | 6 / 10 | 0.13 KM |
Nearby Properties
| Address | Price | Distance |
|---|---|---|
| 42 Lynmouth Road | £ 106,500 | 0.13 KM |
| 40 Lynmouth Road | £ 118,000 | 0.13 KM |
| 82 Lynmouth Road | £ 138,000 | 0.13 KM |
| 128 Lynmouth Road | £ 120,000 | 0.13 KM |
| 32 Lynmouth Road | £ 150,000 | 0.13 KM |