Acorn says ..
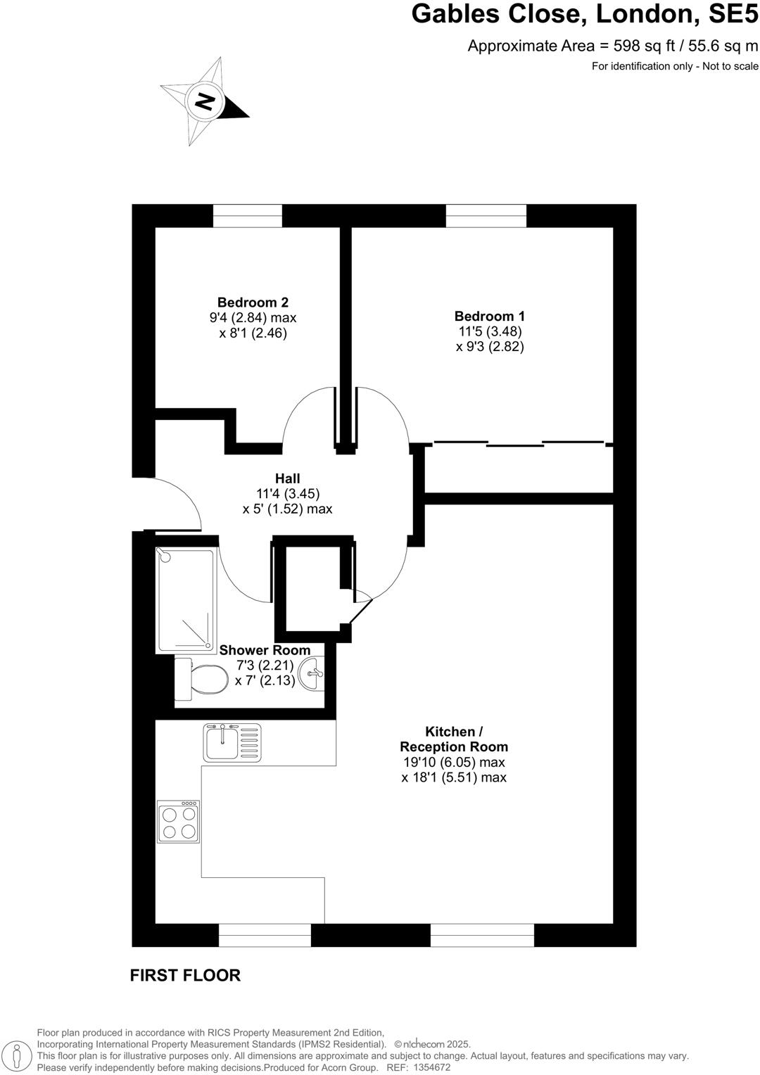
Guide Price: £400,000 to £425,000 Two bedroom, one bathroom first floor apartment situated in an attractive, yellow-brick purpose built block just a short walk from Brunswick Park. Measuring circa 598sqft of well-presented living accommodation comprising; an att...
Property Oracle says ..
This is a two-bedroom apartment located in the St Giles area of Southwark, London. The property offers 598 sqft of living space and is listed for £400,000. The apartment is situated within a residential building and benefits from proximity to local schools, parks, and transportation links, including Denmark Hill station. While the bathroom appears to be in good condition, some areas of the property may benefit from some cosmetic improvements. The price is reasonable considering the location and size, but it’s important to note that there is no private garden.
Therefore, we give this property 5 / 10. *Disclaimer: This is our option and does constitute a recommendation or financial advice. Do your own research. *
- Price
- 7
- Condition
- 6
- Location
- 7
- Land
- 3
- Bedrooms
- 2
- Bathrooms
- 1
- Sqft (est)
- 598.00
The heatmap indicates the level of crime in the area. The color of the heatmap indicates the crime severity and recency.
Metrics Year-on-Year
- Average area value
- 723,750.00 £Decreased by 4.18 %
- Est sale value
- 627,900.00 £Increased by 33.59 %
- Average area rental value
- 2,649.00 £/moIncreased by 13.89 %
- Est letting value
- 1,794.00 £/moIncreased by 50.00 %
- Est rental Yield
- 4.39 %Increased by 18.65 %
- Crime Rate
- 4.00 %Unchanged by 0.00 %
Agent Activity
Acorn created the listing.
Nearby Schools
| Name | Type | Ofsted | Distance |
|---|---|---|---|
| Spa School Camberwell | Free Schools Special | 0.34 KM | |
| Camberwell College Of Arts | Miscellaneous | 0.40 KM | |
| From Boyhood To Manhood Foundation | Other Independent School | Good | 0.50 KM |
| St George'S Church Of England Primary School | Voluntary Aided School | Good | 0.50 KM |
| Grove Children And Family Centre | Children's Centre | 0.51 KM |
Images
Nearby Streets
| Name | Average Price | Average Sqft | Distance |
|---|---|---|---|
| Peckham Grove | £ 0 | 0 | 0.00 KM |
| Harris Street | £ 0 | 0 | 0.00 KM |
| Muscatel Place | £ 0 | 0 | 0.00 KM |
| Diamond Street | £ 0 | 0 | 0.00 KM |
| Bantry Street | £ 675,000 | 0 | 0.00 KM |
Nearby Transport
| Name | NLC | TLC | Distance |
|---|---|---|---|
| Denmark Hill | 5421 | DMK | 1.06 KM |
| East Dulwich | 5358 | EDW | 1.65 KM |
| Peckham Rye | 5423 | PMR | 1.72 KM |
| Loughborough Junction | 5082 | LGJ | 2.30 KM |
| North Dulwich | 5429 | NDL | 2.43 KM |
Nearby Listings
| Address | Price | Type | Score | Distance |
|---|---|---|---|---|
| Gables Close, London | £ 400,000 | BUY | 5 / 10 | 0.00 KM |
| Havil Street, Camberwell, London, SE5 | £ 290,000 | BUY | Unknown | 0.01 KM |
| Gables Close, London, SE5 | £ 325,000 | BUY | 7 / 10 | 0.04 KM |
| Havil Street, London | £ 350,000 | BUY | 6 / 10 | 0.08 KM |
| Havil Street, London | £ 300,000 | BUY | 5 / 10 | 0.08 KM |
Nearby Properties
| Address | Price | Distance |
|---|---|---|
| 16 Gables Close | £ 256,000 | 0.01 KM |
| 29 Gables Close | £ 215,000 | 0.01 KM |
| 19 Gables Close | £ 286,000 | 0.01 KM |
| 23 Gables Close | £ 155,000 | 0.01 KM |
| 31 Gables Close | £ 34,950 | 0.01 KM |