Off Stoney Lane, Debenham, Stowmarket, Suffolk, IP14
By Savills
£ 350,000
Reviews
2 out of 5 stars
Savills says ..
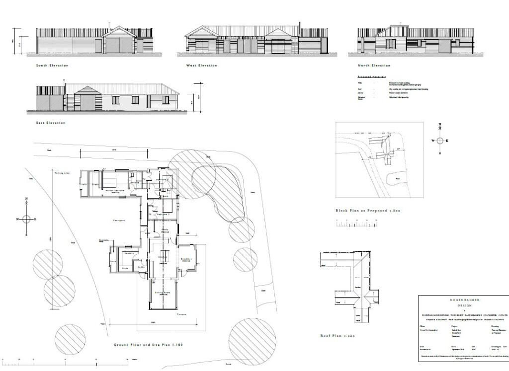
Stand alone off grid barn with planning permission for conversion in an exceptionally secluded, tranquil, rural setting.
Property Oracle says ..
This is a bungalow located in Debenham, Stowmarket, Suffolk. It features 3 bedrooms and 2 bathrooms. The property is listed for £350,000. The property is in need of complete renovation. The property is located in a rural setting, approximately 2km from the nearest school. The plot size is not specified, but appears to be a decent size. The property is being marketed by Savills.
Therefore, we give this property 5 / 10. *Disclaimer: This is our option and does constitute a recommendation or financial advice. Do your own research. *
- Price
- 7
- Condition
- 2
- Location
- 5
- Land
- 7
- Bedrooms
- 3
- Bathrooms
- 2
The heatmap indicates the level of crime in the area. The color of the heatmap indicates the crime severity and recency.
Metrics Year-on-Year
- Average area value
- 507,000.00 £Increased by 14.95 %
- Average area rental value
- 1,400.00 £/moDecreased by 6.67 %
- Est rental Yield
- 3.31 %Decreased by 18.87 %
- Crime Rate
- 0.00 %
Agent Activity
Savills created the listing.
Nearby Schools
| Name | Type | Ofsted | Distance |
|---|---|---|---|
| Debenham High School | Academy Converter | 1.88 KM | |
| High Suffolk Children'S Centre | Children's Centre | 1.94 KM | |
| Sir Robert Hitcham Church Of England Voluntary Aided School | Voluntary Aided School | Requires improvement | 2.71 KM |
| Wetheringsett Manor School | Other Independent Special School | 5.12 KM | |
| Wetheringsett Church Of England Primary School | Academy Converter | 5.38 KM |
Images
Nearby Streets
| Name | Average Price | Average Sqft | Distance |
|---|---|---|---|
| Debenham Public Brildleway 8 | £ 0 | 0 | 0.00 KM |
| Stony Lane (Debenham Public Footpath 9) | £ 1,450,000 | 0 | 0.00 KM |
| Brackhams Cottage | £ 0 | 0 | 0.00 KM |
| Greenacres | £ 180,000 | 0 | 0.00 KM |
Nearby Listings
| Address | Price | Type | Score | Distance |
|---|---|---|---|---|
| Off Stoney Lane, Debenham, Stowmarket, Suffolk, IP14 | £ 350,000 | BUY | 5 / 10 | 0.00 KM |
| Debenham, Stowmarket, Suffolk, IP14 | £ 1,150,000 | BUY | Unknown | 1.56 KM |
| Debenham Corner, IP14 | £ 179,950 | BUY | Unknown | 1.76 KM |