Rolleston Avenue, Petts Wood, Orpington, BR5
By Sinclair Hammelton
£ 550,000
Reviews
3 out of 5 stars
Sinclair Hammelton says ..
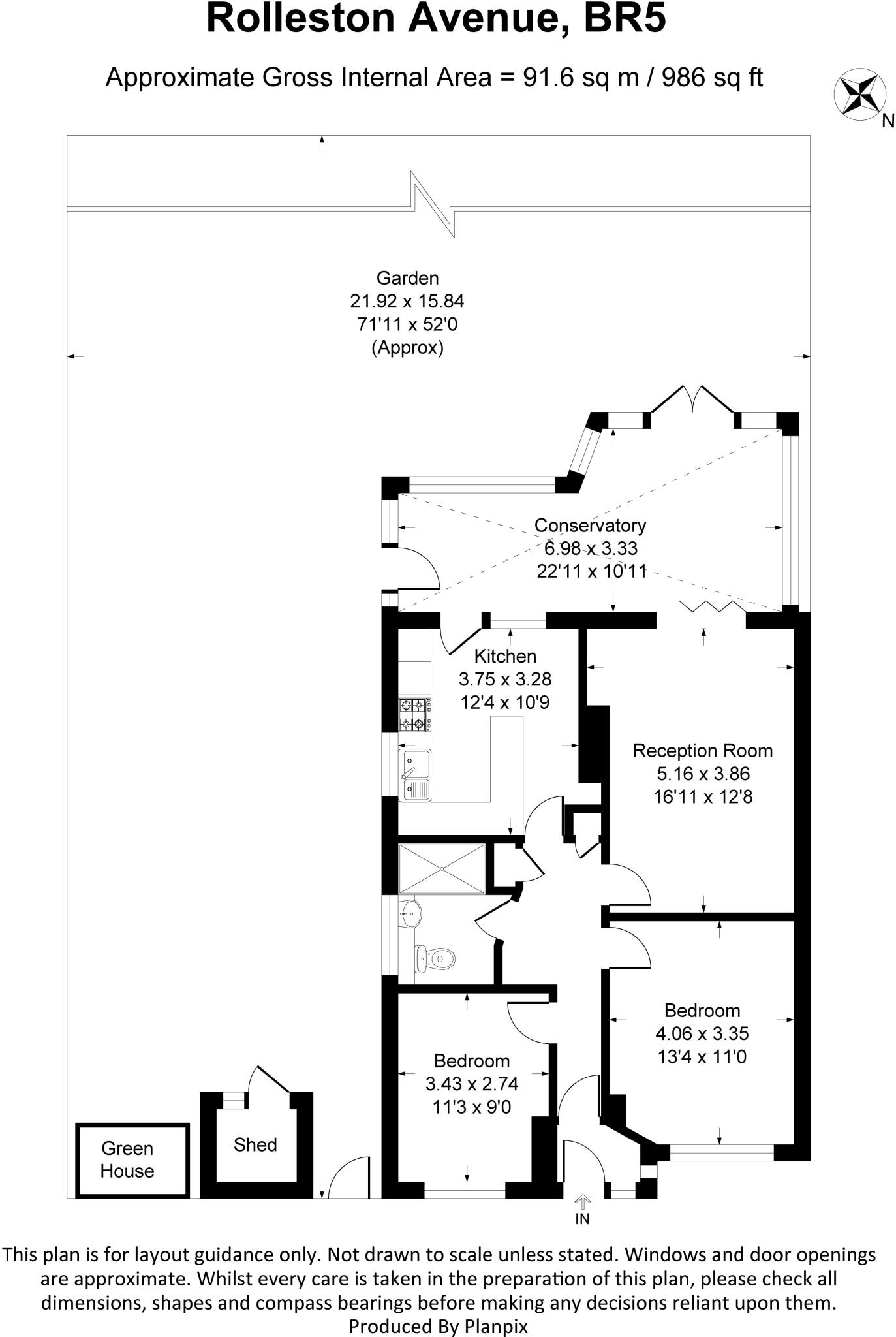
Located on one of Petts Woods most conveniently located and popular roads is this two bedroom, corner plot bungalow. Boasting 986 sq. ft. of living space, Rolleston Avenue offers two double bedrooms, a large bright and airy reception room, a kitchen/breakfast room and a spacious shower room.
Property Oracle says ..
This is a two-bedroom bungalow located on Rolleston Avenue in Petts Wood, Orpington. The property features a bathroom, a conservatory, and a garden. While the property appears to be in reasonable condition, it could benefit from some modernization. The location is desirable, with good access to transportation and schools. The asking price of £550,000 seems reasonable given the location and property size.
Therefore, we give this property 6 / 10. *Disclaimer: This is our option and does constitute a recommendation or financial advice. Do your own research. *
- Price
- 7
- Condition
- 6
- Location
- 7
- Land
- 7
- Bedrooms
- 2
- Bathrooms
- 1
- Sqft (est)
- 985.97
The heatmap indicates the level of crime in the area. The color of the heatmap indicates the crime severity and recency.
Metrics Year-on-Year
- Average area value
- 702,500.00 £Decreased by 0.79 %
- Est sale value
- 539,325.59 £Decreased by 15.59 %
- Average area rental value
- 2,388.00 £/moIncreased by 33.86 %
- Est letting value
- 985.97 £/moUnchanged by 0.00 %
- Est rental Yield
- 4.08 %Increased by 35.10 %
- Crime Rate
- 2.00 %Unchanged by 0.00 %
Agent Activity
Sinclair Hammelton created the listing.
Nearby Schools
| Name | Type | Ofsted | Distance |
|---|---|---|---|
| St James' Roman Catholic Primary School | Academy Converter | 0.68 KM | |
| Southborough Primary School | Foundation School | Good | 1.10 KM |
| Crofton Junior School | Academy Converter | Outstanding | 1.18 KM |
| Crofton Infant School | Academy Converter | Outstanding | 1.50 KM |
| Bromley High School | Other Independent School | 1.68 KM |
Images
Nearby Streets
| Name | Average Price | Average Sqft | Distance |
|---|---|---|---|
| Rolleston Close | £ 735,000 | 0 | 0.00 KM |
| Laburnum Way | £ 535,000 | 0 | 0.00 KM |
| Bramley Close | £ 0 | 0 | 0.00 KM |
| Thorn Close | £ 0 | 0 | 0.00 KM |
| Lime Grove | £ 0 | 0 | 0.00 KM |
Nearby Transport
| Name | NLC | TLC | Distance |
|---|---|---|---|
| Petts Wood | 5123 | PET | 1.09 KM |
| Chislehurst | 5099 | CIT | 2.66 KM |
| Orpington | 5122 | ORP | 2.76 KM |
| Bickley | 5063 | BKL | 2.98 KM |
| Elmstead Woods | 5135 | ESD | 4.48 KM |
Nearby Listings
| Address | Price | Type | Score | Distance |
|---|---|---|---|---|
| Rolleston Avenue, Petts Wood, Orpington, BR5 | £ 550,000 | BUY | 6 / 10 | 0.00 KM |
| Rolleston Avenue, Petts Wood, Orpington | £ 750,000 | BUY | 7 / 10 | 0.06 KM |
| Rolleston Avenue, Petts Wood, Orpington | £ 600,000 | BUY | Unknown | 0.11 KM |
| Rolleston Avenue, Petts Wood, Orpington | £ 625,000 | BUY | 7 / 10 | 0.11 KM |
| Hollingworth Road, Orpington, Kent, BR5 | £ 750,000 | BUY | 7 / 10 | 0.12 KM |
Nearby Properties
| Address | Price | Distance |
|---|---|---|
| 5 Rolleston Close | £ 542,000 | 0.05 KM |
| 76 Rolleston Avenue | £ 104,600 | 0.09 KM |
| 44 Rolleston Avenue | £ 107,500 | 0.09 KM |
| 48 Rolleston Avenue | £ 532,000 | 0.09 KM |
| 72 Rolleston Avenue | £ 450,000 | 0.09 KM |