Tiree Crescent, Newmains, Wishaw
By Momo Homes
£ 75,000
Reviews
3 out of 5 stars
Momo Homes says ..
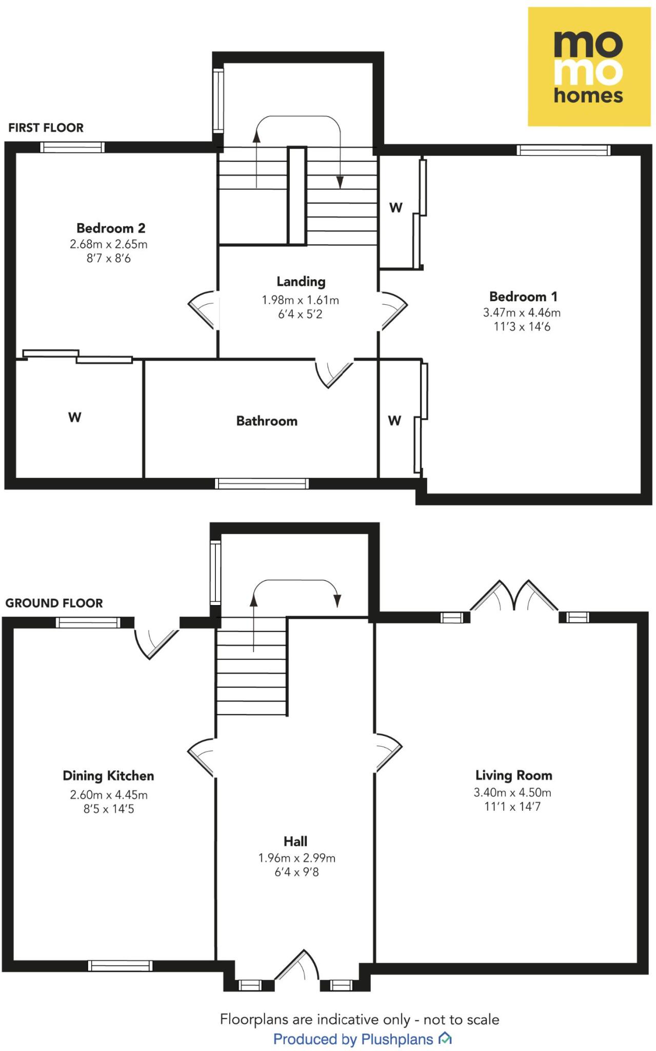
A bright and spacious two-bedroom end-terraced villa situated in a popular locale within Newmains. The property for sale boasts generous living space over two levels and would be a fantastic opportunity for the young family market.
Property Oracle says ..
This end-of-terrace property in Newmains, Wishaw, presents a good opportunity for buyers. While the kitchen has been modernised, other areas like the bathroom and carpets require updating. The property benefits from front and rear gardens and is conveniently located near transportation links. The asking price appears reasonable compared to nearby flat listings.
Therefore, we give this property 6 / 10. *Disclaimer: This is our option and does constitute a recommendation or financial advice. Do your own research. *
- Price
- 8
- Condition
- 5
- Location
- 5
- Land
- 6
- Bedrooms
- 2
- Bathrooms
- 1
The heatmap indicates the level of crime in the area. The color of the heatmap indicates the crime severity and recency.
Metrics Year-on-Year
- Average area value
- 925,000.00 £Increased by 139.51 %
- Average area rental value
- 825.00 £/moDecreased by 10.71 %
- Est rental Yield
- 1.07 %Decreased by 62.72 %
- Crime Rate
- 0.00 %
Agent Activity
Momo Homes created the listing.
Images
Nearby Streets
| Name | Average Price | Average Sqft | Distance |
|---|---|---|---|
| Branchalmuir Crescent | £ 0 | 0 | 0.00 KM |
| King Street | £ 77,000 | 0 | 0.00 KM |
| Lawrie Street | £ 0 | 0 | 0.00 KM |
| Aitken Close | £ 0 | 0 | 0.00 KM |
| Westwood Road | £ 0 | 0 | 0.00 KM |
Nearby Transport
| Name | NLC | TLC | Distance |
|---|---|---|---|
| Cleland | 9718 | CEA | 2.91 KM |
| Wishaw | 9694 | WSH | 4.85 KM |
| Hartwood | 9246 | HTW | 5.74 KM |
| Carfin | 9877 | CRF | 7.82 KM |
| Shieldmuir | 9552 | SDM | 7.87 KM |
Nearby Listings
| Address | Price | Type | Score | Distance |
|---|---|---|---|---|
| Tiree Crescent, Newmains, Wishaw | £ 75,000 | BUY | 6 / 10 | 0.00 KM |
| 3 Fiddoch Court, Wishaw, ML2 9DT | £ 50,000 | BUY | 6 / 10 | 0.03 KM |
| 5 Kildonan Court, Newmains, Wishaw, ML2 9DL | £ 61,000 | BUY | 6 / 10 | 0.10 KM |
| 2 Kildonan Court, Newmains, ML2 9DL | £ 58,000 | BUY | 5 / 10 | 0.10 KM |
| 3 Kildonan Court, Newmains, Wishaw, ML2 9DL | £ 59,000 | BUY | 5 / 10 | 0.10 KM |