Gascoigne Halman says ..
A beautifully presented Victorian 'garden apartment' conveniently situated only 0.7 miles to Wilmslow town centre in a popular South Wilmslow location. Offering two double bedrooms, two stylish bathrooms, dining kitchen and a charming and private courtyard style garden. Allocated parking ...
Property Oracle says ..
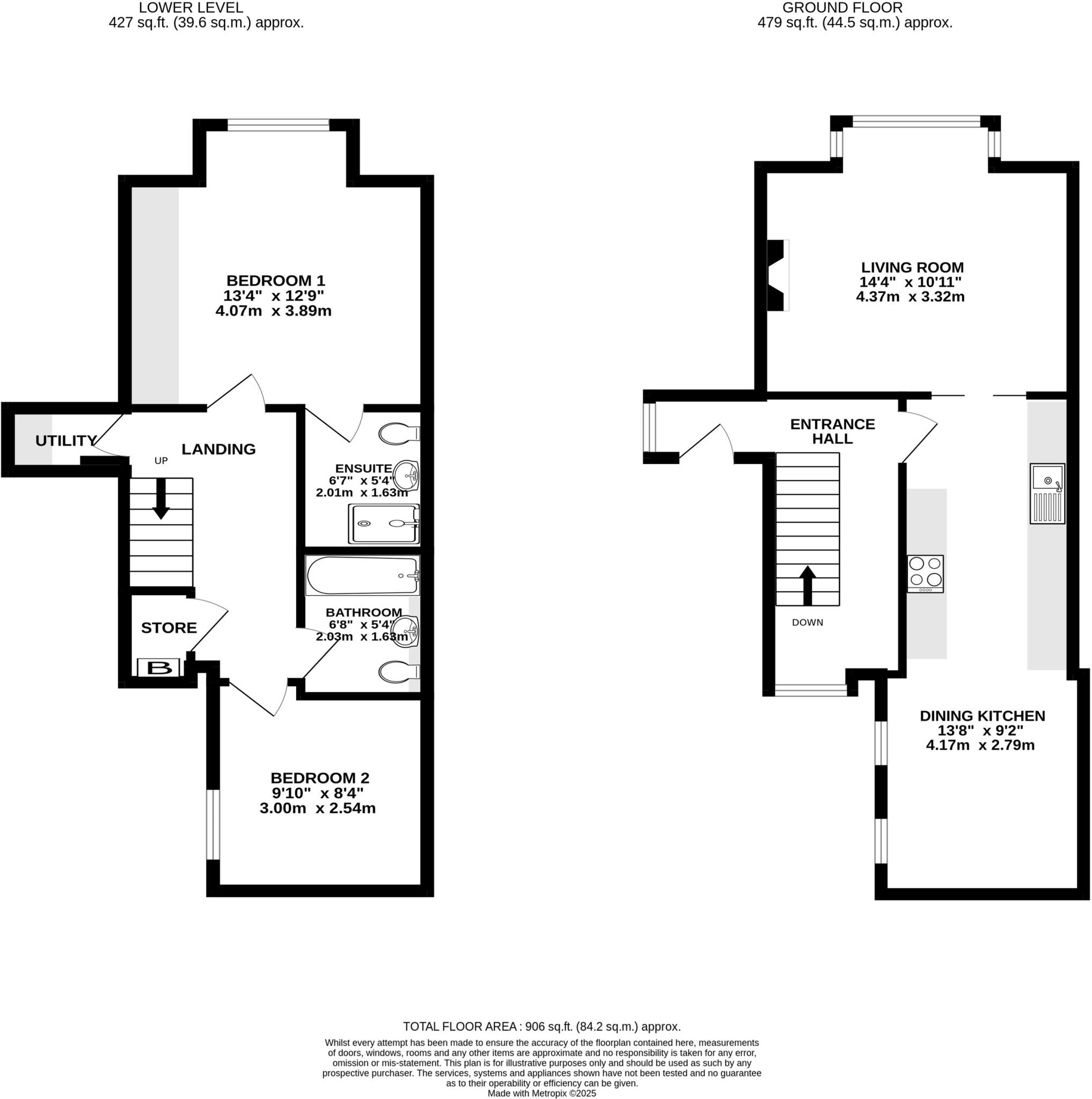
This property is located on Knutsford Road in Wilmslow East, Cheshire East. The area benefits from nearby train stations (Alderley Edge, Wilmslow, Styal, Handforth and Heald Green) and several highly-rated primary schools (Ashdene Primary School, St Anne’s Fulshaw C of E Primary School, Gorsey Bank Primary School, and Alderley Edge Community Primary School). The property itself is a two-bedroom, two-bathroom house with a total area of 906 sqft. Based on the photos, the property appears to be in excellent condition, having undergone recent renovations or refurbishment. The kitchen and bathrooms look modern and well-maintained. The property includes a small paved patio area, suitable for outdoor seating. The list price is £425,000. Considering the average house price in the area is significantly higher (£843,134), and the average price per sqft is £586, this property seems to be priced competitively, especially given its renovated condition. However, the lack of plot size information limits a complete assessment of value.
Therefore, we give this property 6 / 10. *Disclaimer: This is our option and does constitute a recommendation or financial advice. Do your own research. *
- Price
- 7
- Condition
- 9
- Location
- 8
- Land
- 3
- Bedrooms
- 2
- Bathrooms
- 2
- Sqft (est)
- 906.00
The heatmap indicates the level of crime in the area. The color of the heatmap indicates the crime severity and recency.
Metrics Year-on-Year
- Average area value
- 1,168,333.00 £Increased by 51.76 %
- Est sale value
- 534,540.00 £Increased by 37.53 %
- Average area rental value
- 8,690.00 £/moIncreased by 118.12 %
- Est letting value
- 3,624.00 £/moIncreased by 100.00 %
- Est rental Yield
- 8.93 %Increased by 43.80 %
- Crime Rate
- 12.00 %Unchanged by 0.00 %
Agent Activity
Gascoigne Halman created the listing.
Nearby Schools
| Name | Type | Ofsted | Distance |
|---|---|---|---|
| Ashdene Primary School | Community School | Outstanding | 0.35 KM |
| St Anne'S Fulshaw C Of E Primary School | Voluntary Controlled School | Good | 0.54 KM |
| Gorsey Bank Primary School | Academy Converter | Good | 1.31 KM |
| Alderley Edge Community Primary School | Community School | Outstanding | 1.49 KM |
| Alderley Edge School For Girls | Other Independent School | 1.49 KM |
Images
Nearby Streets
| Name | Average Price | Average Sqft | Distance |
|---|---|---|---|
| Ashdene Road | £ 775,000 | 0 | 0.00 KM |
| Regent Park Court | £ 0 | 0 | 0.00 KM |
| Sylvan Avenue | £ 0 | 0 | 0.00 KM |
| Heathfield | £ 750,000 | 0 | 0.00 KM |
| Hartford Avenue | £ 0 | 0 | 0.00 KM |
Nearby Transport
| Name | NLC | TLC | Distance |
|---|---|---|---|
| Alderley Edge | 2760 | ALD | 1.70 KM |
| Wilmslow | 2774 | WML | 2.29 KM |
| Styal | 2868 | SYA | 3.52 KM |
| Handforth | 2767 | HTH | 4.74 KM |
| Heald Green | 2860 | HDG | 5.90 KM |
Nearby Listings
| Address | Price | Type | Score | Distance |
|---|---|---|---|---|
| Knutsford Road, Wilmslow | £ 425,000 | BUY | 6 / 10 | 0.00 KM |
| Knutsford Road, Wilmslow | £ 325,000 | BUY | Unknown | 0.09 KM |
| Thoresway Road, Wilmslow | £ 840,000 | BUY | 8 / 10 | 0.09 KM |
| Knutsford Road, Wilmslow, SK9 | £ 1,100,000 | BUY | 7 / 10 | 0.13 KM |
| Ashcroft Close, Wilmslow, Cheshire | £ 940,000 | BUY | Unknown | 0.14 KM |
Nearby Properties
| Address | Price | Distance |
|---|---|---|
| 7 Stoney Lane | £ 372,500 | 0.11 KM |
| St Jude | £ 457,000 | 0.11 KM |
| 3 Stoney Lane | £ 115,000 | 0.11 KM |
| 13 Stoney Lane | £ 362,500 | 0.11 KM |
| 5 Ashcroft Close | £ 620,000 | 0.12 KM |