Julian Marks says ..
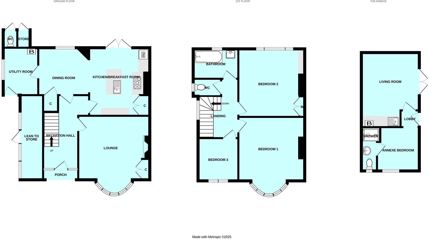
Well proportioned semi-detached house thought to have been built in 1930s which has been looked after & maintained well over the years, recently upgraded & improved, particularly with the addition of a self-contained annexe built in the rear garden, having the benefit of planning approval & build...
Property Oracle says ..
The property is a well-maintained 4-bedroom, 2-bathroom house in the desirable Mannamead area of Plymouth. The interior is presented to a high standard with modern amenities and a recently renovated kitchen and bathroom. The property includes a detached studio/annex in the garden, adding significant value. While the listed plot size is 0 sqft, photographs show a garden is present. The list price is high compared to the area average, but the property’s condition, location, and included annex justify a higher price point. Nearby comparable properties support this assessment. A more precise plot size would allow for a more accurate price per sqft analysis.
Therefore, we give this property 8 / 10. *Disclaimer: This is our option and does constitute a recommendation or financial advice. Do your own research. *
- Price
- 7
- Condition
- 9
- Location
- 9
- Land
- 7
- Bedrooms
- 4
- Bathrooms
- 2
- Sqft (est)
- 1,020.00
The heatmap indicates the level of crime in the area. The color of the heatmap indicates the crime severity and recency.
Metrics Year-on-Year
- Average area value
- 332,250.00 £Increased by 4.68 %
- Est sale value
- 336,600.00 £Increased by 22.22 %
- Average area rental value
- 769.00 £/moIncreased by 6.81 %
- Est letting value
- 0.00 £/mo
- Est rental Yield
- 2.78 %Increased by 2.21 %
- Crime Rate
- 0.00 %
Agent Activity
Julian Marks created the listing.
Nearby Schools
| Name | Type | Ofsted | Distance |
|---|---|---|---|
| Lipson Co-Operative Academy | Academy Converter | Requires improvement | 0.69 KM |
| Lipson Vale Primary School | Community School | Good | 0.69 KM |
| Sweet Peas Peverell Children'S Centre | Children's Centre | 0.84 KM | |
| Compton Cofe Primary School | Voluntary Controlled School | Good | 0.86 KM |
| Salisbury Road Primary School | Academy Converter | Requires improvement | 1.17 KM |
Images
Nearby Streets
| Name | Average Price | Average Sqft | Distance |
|---|---|---|---|
| Elm Crescent | £ 0 | 0 | 0.00 KM |
| Ashford Road Lane North | £ 0 | 0 | 0.00 KM |
| Courtfield Road | £ 0 | 0 | 0.00 KM |
| Ashford Hill | £ 0 | 0 | 0.00 KM |
| Penrose Villas | £ 0 | 0 | 0.00 KM |
Nearby Transport
| Name | NLC | TLC | Distance |
|---|---|---|---|
| Plymouth | 3580 | PLY | 2.33 KM |
| Devonport | 3579 | DPT | 5.26 KM |
| Dockyard (Devonport) | 3588 | DOC | 5.79 KM |
| Keyham | 3571 | KEY | 6.20 KM |
| St Budeaux Ferry Road | 3590 | SBF | 7.20 KM |
Nearby Listings
| Address | Price | Type | Score | Distance |
|---|---|---|---|---|
| Mannamead, Plymouth | £ 475,000 | BUY | 8 / 10 | 0.00 KM |
| Culme Road, Mannamead, Plymouth | £ 725,000 | BUY | 8 / 10 | 0.03 KM |
| Culme Road, Mannamead, Plymouth | £ 695,000 | BUY | Unknown | 0.03 KM |
| Rockingham Road, Mannamead, Plymouth. A really well presented 3 bedroomed modern semi with lovely garden and GARAGE | £ 325,000 | BUY | 7 / 10 | 0.08 KM |
| ** Mannamead - Four bedrooms, separate annexe ** | £ 575,000 | BUY | 7 / 10 | 0.08 KM |
Nearby Properties
| Address | Price | Distance |
|---|---|---|
| 11 Culme Road | £ 250,000 | 0.02 KM |
| 5 Culme Road | £ 237,500 | 0.02 KM |
| 13 Culme Road | £ 290,000 | 0.02 KM |
| 15 Culme Road | £ 278,000 | 0.02 KM |
| 20 Culme Road | £ 530,000 | 0.02 KM |