Ashtons Estate Agents says ..
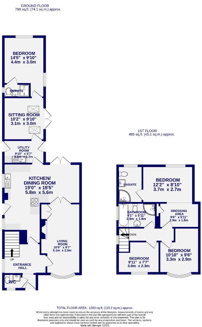
Located in the ever popular area of Rawcliffe, just off Shipton Road, is this beautifully presented and extended semi detached home. Occupying a generous plot with a south facing rear garden, this versatile property has been thoughtfully extended to suit modern family life, all while enjoying a p...
Property Oracle says ..
Therefore, we give this property 7 / 10. *Disclaimer: This is our option and does constitute a recommendation or financial advice. Do your own research. *
- Price
- 8
- Condition
- 8
- Location
- 8
- Land
- 7
- Bedrooms
- 4
- Bathrooms
- 4
- Sqft (est)
- 1,195.00
The heatmap indicates the level of crime in the area. The color of the heatmap indicates the crime severity and recency.
Metrics Year-on-Year
- Average area value
- 591,875.00 £Increased by 5.13 %
- Est sale value
- 570,015.00 £Decreased by 6.47 %
- Average area rental value
- 1,194.00 £/moDecreased by 3.63 %
- Est letting value
- 0.00 £/moDecreased by 100.00 %
- Est rental Yield
- 2.42 %Decreased by 8.33 %
- Crime Rate
- 6.00 %Unchanged by 0.00 %
from 562,987.00 £
from 609,450.00 £
from 1,239.00 £/mo
from 1,195.00 £/mo
from 2.64 %
from 6.00 %
Agent Activity
Ashtons Estate Agents created the listing.
Nearby Schools
| Name | Type | Ofsted | Distance |
|---|---|---|---|
| Clifton With Rawcliffe Primary School | Academy Converter | Good | 0.30 KM |
| Lakeside Primary Academy | Academy Converter | 1.07 KM | |
| Vale Of York Academy | Academy Sponsor Led | Good | 1.26 KM |
| Poppleton Road Primary School | Community School | Good | 1.99 KM |
| Clifton Children'S Centre | Children's Centre | 2.16 KM |
Images
Nearby Streets
| Name | Average Price | Average Sqft | Distance |
|---|---|---|---|
| Coniston Close | £ 330,000 | 0 | 0.00 KM |
| Hurricane Way | £ 0 | 0 | 0.00 KM |
| St. James Close Footpath | £ 375,000 | 0 | 0.00 KM |
| St. James Close | £ 0 | 0 | 0.00 KM |
| Hatfield Close | £ 0 | 0 | 0.00 KM |
Nearby Transport
| Name | NLC | TLC | Distance |
|---|---|---|---|
| York | 8263 | YRK | 3.17 KM |
| Poppleton | 8254 | POP | 4.13 KM |
Nearby Listings
| Address | Price | Type | Score | Distance |
|---|---|---|---|---|
| Alwyne Grove, York | £ 495,000 | BUY | 7 / 10 | 0.00 KM |
| Alwyne Grove, York | £ 495,000 | BUY | 7 / 10 | 0.04 KM |
| Alwyne Drive, York, North Yorkshire, YO30 5RS | £ 490,000 | BUY | Unknown | 0.11 KM |
| Northolme Drive, York, YO30 | £ 599,950 | BUY | 7 / 10 | 0.12 KM |
| Eastholme Drive, York | £ 285,000 | BUY | 6 / 10 | 0.18 KM |
Nearby Properties
| Address | Price | Distance |
|---|---|---|
| 23 Alwyne Grove | £ 425,000 | 0.04 KM |
| 27 Alwyne Grove | £ 207,000 | 0.04 KM |
| 9 Alwyne Grove | £ 456,500 | 0.04 KM |
| 19 Alwyne Grove | £ 88,000 | 0.04 KM |
| 28 Alwyne Grove | £ 202,500 | 0.04 KM |