Drummond View, Bishopthorpe, York YO23 2SH
By Bishops Personal Agents
£ 269,950
Reviews
3 out of 5 stars
Bishops Personal Agents says ..
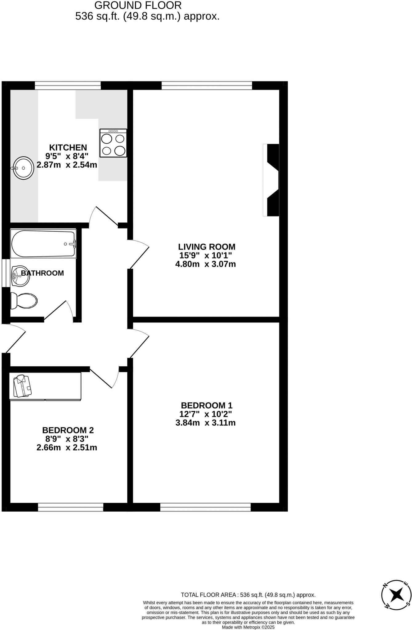
Bishops Personal Agents present to the market a fantastic opportunity to add your own stamp and style to a two-bedroom semi-detached bungalow, set in a quiet cul-de-sac position in the heart of one of York's most popular village locations of Bishopthorpe, just to the South of York, within ea...
Property Oracle says ..
This semi-detached bungalow on Drummond View, Bishopthorpe, presents a solid opportunity for buyers. The location is attractive due to its proximity to York and local amenities. While the property requires some updating, it offers a good-sized plot with front and back gardens. The price appears competitive given the area’s average price per square foot, making it a worthwhile consideration for those willing to invest in renovations.
Therefore, we give this property 6 / 10. *Disclaimer: This is our option and does constitute a recommendation or financial advice. Do your own research. *
- Price
- 7
- Condition
- 5
- Location
- 7
- Land
- 6
- Bedrooms
- 2
- Bathrooms
- 1
- Sqft (est)
- 152.52
The heatmap indicates the level of crime in the area. The color of the heatmap indicates the crime severity and recency.
Metrics Year-on-Year
- Average area value
- 591,875.00 £Increased by 5.13 %
- Est sale value
- 72,752.04 £Decreased by 6.47 %
- Average area rental value
- 1,194.00 £/moDecreased by 3.63 %
- Est letting value
- 0.00 £/moDecreased by 100.00 %
- Est rental Yield
- 2.42 %Decreased by 8.33 %
- Crime Rate
- 29.00 %Unchanged by 0.00 %
Agent Activity
Bishops Personal Agents created the listing.
Nearby Schools
| Name | Type | Ofsted | Distance |
|---|---|---|---|
| Archbishop Of York'S Cofe Voluntary Controlled Junior School, Bishopthorpe | Academy Converter | 0.90 KM | |
| Oneschool Global York Campus | Other Independent School | 1.55 KM | |
| Naburn Church Of England Primary School | Voluntary Controlled School | Outstanding | 1.98 KM |
| York College | Further Education | Outstanding | 2.46 KM |
| Knavesmire Primary School | Academy Converter | 2.75 KM |
Images
Nearby Streets
| Name | Average Price | Average Sqft | Distance |
|---|---|---|---|
| Temple Road | £ 0 | 0 | 0.00 KM |
Nearby Transport
| Name | NLC | TLC | Distance |
|---|---|---|---|
| York | 8263 | YRK | 4.25 KM |
| Poppleton | 8254 | POP | 8.71 KM |
Nearby Listings
| Address | Price | Type | Score | Distance |
|---|---|---|---|---|
| Drummond View, Bishopthorpe, York, YO23 2SH | £ 260,000 | BUY | 6 / 10 | 0.00 KM |
| Drummond View, Bishopthorpe, York YO23 2SH | £ 269,950 | BUY | 6 / 10 | 0.00 KM |
| Drummond View, Bishopthorpe | £ 340,000 | BUY | 6 / 10 | 0.03 KM |
| Drummond View, York, YO23 | £ 300,000 | BUY | 6 / 10 | 0.07 KM |
| Ramsey Avenue, Bishopthorpe, York | £ 325,000 | BUY | 7 / 10 | 0.12 KM |
Nearby Properties
| Address | Price | Distance |
|---|---|---|
| 18 Drummond View | £ 167,250 | 0.01 KM |
| 12 Drummond View | £ 245,000 | 0.01 KM |
| 23 Drummond View | £ 152,000 | 0.01 KM |
| 17 Drummond View | £ 160,000 | 0.01 KM |
| 9 Drummond View | £ 246,500 | 0.01 KM |